New Homes » Kanto » Tokyo » Nerima
 
| | Nerima-ku, Tokyo 東京都練馬区 |
| Seibu Shinjuku Line "Kami Shakujii" walk 8 minutes 西武新宿線「上石神井」歩8分 |
| ■ Holiday you wait a foot in such a little bike, Oasis of Suginami and Nerima Ward Community, Guests can enjoy a cycling of feeling the four seasons in Zenpukuji parks and Shakujii Park. ■ Kamiigusa sports center of a 9-minute walk from the local wide facility to heated pool ・ Training ・ gymnasium ・ Football ・ Is a public facility for various sports such as baseball ground are in place. ■休日は少し自転車などで足を延ばせば、杉並区や練馬区民の憩いの場、善福寺公園や石神井公園に四季を感じながらのサイクリングを楽しめます。■現地より徒歩9分の上井草スポーツセンターは広い施設に温水プール・トレーニングルーム・体育館・サッカー・野球グランドなど様々なスポーツ施設が整っている公共施設です。 |
Seller comments 売主コメント | | 4 Building 4号棟 | Features pickup 特徴ピックアップ | | Pre-ground survey / System kitchen / Bathroom Dryer / All room storage / A quiet residential area / Around traffic fewer / Shaping land / Face-to-face kitchen / Barrier-free / 2-story / IH cooking heater / Dish washing dryer / Walk-in closet / All-electric 地盤調査済 /システムキッチン /浴室乾燥機 /全居室収納 /閑静な住宅地 /周辺交通量少なめ /整形地 /対面式キッチン /バリアフリー /2階建 /IHクッキングヒーター /食器洗乾燥機 /ウォークインクロゼット /オール電化 | Event information イベント情報 | | Local sales meetings (Please be sure to ask in advance) schedule / Every Saturday and Sunday time / 10:00 ~ 17:00 現地販売会(事前に必ずお問い合わせください)日程/毎週土日時間/10:00 ~ 17:00 | Property name 物件名 | | Cypress house sale Bell herb garden Kamishakujiiminami cho Stage II 桧家の分譲 ベルハーブガーデン上石神井南町II期 | Price 価格 | | 54,800,000 yen ~ 57,800,000 yen 5480万円 ~ 5780万円 | Floor plan 間取り | | 4LDK 4LDK | Units sold 販売戸数 | | 4 units 4戸 | Total units 総戸数 | | 6 units 6戸 | Land area 土地面積 | | 100.03 sq m ~ 101.66 sq m (30.25 tsubo ~ 30.75 tsubo) (Registration) 100.03m2 ~ 101.66m2(30.25坪 ~ 30.75坪)(登記) | Building area 建物面積 | | 89.63 sq m ~ 96.41 sq m (27.11 tsubo ~ 29.16 square meters) 89.63m2 ~ 96.41m2(27.11坪 ~ 29.16坪) | Completion date 完成時期(築年月) | | 2013 end of September 2013年9月末 | Address 住所 | | Nerima-ku, Tokyo Kamishakujiiminami cho 5 東京都練馬区上石神井南町5 | Traffic 交通 | | Seibu Shinjuku Line "Kami Shakujii" walk 8 minutes 西武新宿線「上石神井」歩8分
| Related links 関連リンク | | [Related Sites of this company] 【この会社の関連サイト】 | Person in charge 担当者より | | [Regarding this property.] All six buildings of the development sale! Attic with storage of all building fixed stairs 【この物件について】全6棟の開発分譲!全棟固定階段の小屋裏収納つき | Contact お問い合せ先 | | TEL: 0800-600-0745 [Toll free] mobile phone ・ Also available from PHS Caller ID is not notified Please contact the "saw SUUMO (Sumo)" If it does not lead, If the real estate company TEL:0800-600-0745【通話料無料】携帯電話・PHSからもご利用いただけます 発信者番号は通知されません 「SUUMO(スーモ)を見た」と問い合わせください つながらない方、不動産会社の方は
| Time residents 入居時期 | | Consultation 相談 | Land of the right form 土地の権利形態 | | Ownership 所有権 | Structure and method of construction 構造・工法 | | Wooden 2-story (framing method) 木造2階建(軸組工法) | Construction 施工 | | Cypress house real estate 桧家不動産 | Use district 用途地域 | | One low-rise 1種低層 | Overview and notices その他概要・特記事項 | | Building confirmation number: No. SJK-KX1313200055 建築確認番号:第SJK-KX1313200055号 | Company profile 会社概要 | | <Seller> Minister of Land, Infrastructure and Transport (1) No. 008370 (Ltd.) cypress house real estate Tokyo branch Yubinbango202-0004 Tokyo Nishitokyo Shimohoya 4-12-21 <売主>国土交通大臣(1)第008370号(株)桧家不動産東京支店〒202-0004 東京都西東京市下保谷4-12-21 |
Rendering (appearance)完成予想図(外観)  All six buildings of the development sale is birth in a quiet residential area of an 8-minute walk from Kami Shakujii Station!
上石神井駅より徒歩8分の閑静な住宅街に全6棟の開発分譲が誕生!
Same specifications photos (living)同仕様写真(リビング)  Easy-to-use living thought the trains
同線を考え使いやすいリビング
Same specifications photo (bathroom)同仕様写真(浴室)  Spacious convenient bathroom dryer with 1 pyeong type of bath rainy day.
ゆったりとした1坪タイプのお風呂雨の日便利な浴室乾燥機つき。
Other Equipmentその他設備  Dishwasher that will also save water. What better us to to dryness.
節水もしてくれる食洗機。乾燥までしてくれる優れもの。
Same specifications photo (kitchen)同仕様写真(キッチン)  Same specifications (Cleanup ・ Klin ready)
同仕様(クリナップ・クリンレディ)
 Lead to an annual reduction utility costs of about 42%, Very economical
年間光熱費が約42%の削減に繋がり、とっても経済的
 Summer winter and cool in warm method. Insulated with foam ・ Heat shielding with aluminum! For more information, please contact us
夏涼しく冬暖かい工法。泡で断熱・アルミで遮熱!詳しくはお問合せください
Construction ・ Construction method ・ specification構造・工法・仕様  Conventional method of construction of the peace of mind
安心の在来工法
Power generation ・ Hot water equipment発電・温水設備  Eco Cute boil water use deals midnight power.
お得な深夜電力を使いお湯を沸かすエコキュート。
Construction ・ Construction method ・ specification構造・工法・仕様  Peace of mind with a guarantee
安心の保証付
Other Equipmentその他設備  Electrical floor heating of the speed of heat conduction charm. Comfortable cold winter feet
熱伝導の早さが魅力の電気床暖房。冬の冷たい足元を快適に
Construction ・ Construction method ・ specification構造・工法・仕様  Strengthen the resistance against shaking using a load-bearing wall in addition to the strength of the conventional shaft.
在来の軸の強さに加え耐力壁を使用し揺れに対する耐力を強化。
 Cut the radiant heat in the W barrier! The temperature difference between the outside air and the inside air whopping 5 degrees or more! It also becomes a building that is easy to spend in the summer.
Wバリアで輻射熱をカット!外気と内気の温度差がなんと5度以上!真夏でも過ごしやすい建物になっております。
 Airtight with foam insulation ・ Achieve a high insulated houses! Building thermal insulation effect and soundproof effect is excellent. Please experience the cypress house eco house.
泡断熱で高気密・高断熱の住宅を実現!断熱効果と防音効果が優れた建物です。桧家のエコ住宅を体感ください。
Security equipment防犯設備  Low-E pair glass + security glass adoption!
Low-Eペアガラス+防犯ガラス採用!
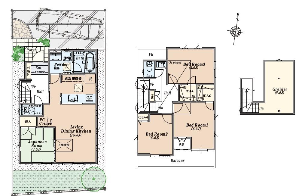
Floor plan間取り図  (4 Building), Price 57,800,000 yen, 4LDK, Land area 100.03 sq m , Building area 91.5 sq m
(4号棟)、価格5780万円、4LDK、土地面積100.03m2、建物面積91.5m2
Other Equipmentその他設備  Cookware IH cooking heater of peace of mind because without a fire
火を使わないから安心の調理器具IHクッキングヒーター
Location
|