2013March
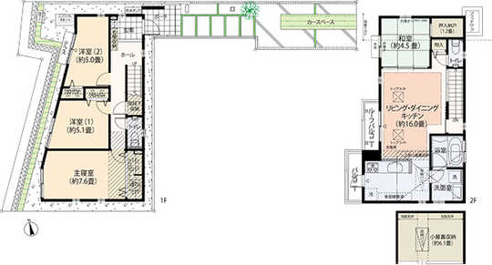
58,900,000 yen, 4LDK, 94.39 sq m
New Homes » Kanto » Tokyo » Nerima
 
| | Nerima-ku, Tokyo 東京都練馬区 |
| Seibu Yurakucho Line "Shin Sakuradai" walk 6 minutes 西武有楽町線「新桜台」歩6分 |
Price 価格 | | 58,900,000 yen 5890万円 | Floor plan 間取り | | 4LDK 4LDK | Units sold 販売戸数 | | 1 units 1戸 | Land area 土地面積 | | 107.51 sq m (registration) 107.51m2(登記) | Building area 建物面積 | | 94.39 sq m (registration) 94.39m2(登記) | Driveway burden-road 私道負担・道路 | | Nothing, West 4.9m width 無、西4.9m幅 | Completion date 完成時期(築年月) | | March 2013 2013年3月 | Address 住所 | | Nerima-ku, Tokyo Sakuradai 2 東京都練馬区桜台2 | Traffic 交通 | | Seibu Yurakucho Line "Shin Sakuradai" walk 6 minutes Seibu Ikebukuro Line "Sakuradai" walk 8 minutes 西武有楽町線「新桜台」歩6分 西武池袋線「桜台」歩8分
| Contact お問い合せ先 | | TEL: 0800-603-0230 [Toll free] mobile phone ・ Also available from PHS Caller ID is not notified Please contact the "saw SUUMO (Sumo)" If it does not lead, If the real estate company TEL:0800-603-0230【通話料無料】携帯電話・PHSからもご利用いただけます 発信者番号は通知されません 「SUUMO(スーモ)を見た」と問い合わせください つながらない方、不動産会社の方は
| Building coverage, floor area ratio 建ぺい率・容積率 | | 60% ・ 150% 60%・150% | Time residents 入居時期 | | Consultation 相談 | Land of the right form 土地の権利形態 | | Ownership 所有権 | Structure and method of construction 構造・工法 | | Wooden 2-story 木造2階建 | Use district 用途地域 | | One low-rise 1種低層 | Overview and notices その他概要・特記事項 | | Parking: car space 駐車場:カースペース | Company profile 会社概要 | | <Mediation> Minister of Land, Infrastructure and Transport (8) No. 003394 No. Taisei the back Real Estate Sales Co., Ltd. Nerima office Yubinbango176-0012 Nerima-ku, Tokyo Toyotamakita 5-17-12 Nerima Station building the fifth floor <仲介>国土交通大臣(8)第003394号大成有楽不動産販売(株)練馬営業所〒176-0012 東京都練馬区豊玉北5-17-12 練馬駅前ビル5階 |
 Local appearance photo
現地外観写真
 Floor plan
間取り図
Location
|