New Homes » Kanto » Tokyo » Nerima
 
| | Nerima-ku, Tokyo 東京都練馬区 |
| Toei Oedo Line "Nerima Kasuga-cho" walk 17 minutes 都営大江戸線「練馬春日町」歩17分 |
Features pickup 特徴ピックアップ | | Pre-ground survey / 2 along the line more accessible / Fiscal year Available / Energy-saving water heaters / Facing south / System kitchen / Bathroom Dryer / Yang per good / All room storage / Siemens south road / Or more before road 6m / Shaping land / Washbasin with shower / Face-to-face kitchen / Barrier-free / Toilet 2 places / Bathroom 1 tsubo or more / 2 or more sides balcony / South balcony / Double-glazing / Otobasu / Warm water washing toilet seat / Underfloor Storage / The window in the bathroom / TV monitor interphone / Leafy residential area / Mu front building / All living room flooring / Dish washing dryer / Water filter / Three-story or more / Living stairs / City gas / All rooms are two-sided lighting / Flat terrain / Floor heating 地盤調査済 /2沿線以上利用可 /年度内入居可 /省エネ給湯器 /南向き /システムキッチン /浴室乾燥機 /陽当り良好 /全居室収納 /南側道路面す /前道6m以上 /整形地 /シャワー付洗面台 /対面式キッチン /バリアフリー /トイレ2ヶ所 /浴室1坪以上 /2面以上バルコニー /南面バルコニー /複層ガラス /オートバス /温水洗浄便座 /床下収納 /浴室に窓 /TVモニタ付インターホン /緑豊かな住宅地 /前面棟無 /全居室フローリング /食器洗乾燥機 /浄水器 /3階建以上 /リビング階段 /都市ガス /全室2面採光 /平坦地 /床暖房 | Event information イベント情報 | | Local tours (please make a reservation beforehand) schedule / Every Saturday, Sunday and public holidays time / 11:00 ~ 16:30 and made the building more briefings. In advance to thank you for booking! Free dial 0120-767-006 現地見学会(事前に必ず予約してください)日程/毎週土日祝時間/11:00 ~ 16:30建物詳細説明会を行っております。事前に予約をお願い致します! フリーダイアル0120-767-006 | Price 価格 | | 41,600,000 yen 4160万円 | Floor plan 間取り | | 4LDK 4LDK | Units sold 販売戸数 | | 1 units 1戸 | Total units 総戸数 | | 1 units 1戸 | Land area 土地面積 | | 59.64 sq m (measured) 59.64m2(実測) | Building area 建物面積 | | 93.98 sq m (measured), Among the first floor garage 12.42 sq m 93.98m2(実測)、うち1階車庫12.42m2 | Driveway burden-road 私道負担・道路 | | Nothing, South 7.3m width 無、南7.3m幅 | Completion date 完成時期(築年月) | | February 2014 2014年2月 | Address 住所 | | Nerima-ku, Tokyo Tanihara 1-3-2 東京都練馬区谷原1-3-2 | Traffic 交通 | | Toei Oedo Line "Nerima Kasuga-cho" walk 17 minutes Seibu Ikebukuro Line "Nerima Takanodai" walk 17 minutes Seibu Ikebukuro Line "Fujimidai" walk 19 minutes 都営大江戸線「練馬春日町」歩17分 西武池袋線「練馬高野台」歩17分 西武池袋線「富士見台」歩19分
| Related links 関連リンク | | [Related Sites of this company] 【この会社の関連サイト】 | Person in charge 担当者より | | Rep Koji Ikenaga 担当者池永浩二 | Contact お問い合せ先 | | (Yes) Oasis Home TEL: 03-5984-1700 Please contact as "saw SUUMO (Sumo)" (有)オアシスホームTEL:03-5984-1700「SUUMO(スーモ)を見た」と問い合わせください | Building coverage, floor area ratio 建ぺい率・容積率 | | 60% ・ 200% 60%・200% | Time residents 入居時期 | | February 2014 schedule 2014年2月予定 | Land of the right form 土地の権利形態 | | Ownership 所有権 | Structure and method of construction 構造・工法 | | Wooden three-story (framing method) 木造3階建(軸組工法) | Other limitations その他制限事項 | | Quasi-fire zones 準防火地域 | Overview and notices その他概要・特記事項 | | Contact: Koji Ikenaga, Facilities: Public Water Supply, This sewage, City gas, Building confirmation number: No. 13UDI2T Ken 00933, Parking: Garage 担当者:池永浩二、設備:公営水道、本下水、都市ガス、建築確認番号:第13UDI2T建00933号、駐車場:車庫 | Company profile 会社概要 | | <Marketing alliance (agency)> Governor of Tokyo (3) No. 077445 (with) Oasis Home Yubinbango176-0012 Nerima-ku, Tokyo Toyotamakita 5-5-1 <販売提携(代理)>東京都知事(3)第077445号(有)オアシスホーム〒176-0012 東京都練馬区豊玉北5-5-1 |
Local appearance photo現地外観写真  Local (January 2014) Shooting
現地(2014年1月)撮影
Same specifications photos (living)同仕様写真(リビング)  Same specifications
同仕様
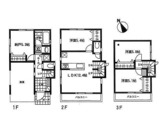
Floor plan間取り図  41,600,000 yen, 4LDK, Land area 59.64 sq m , Building area 93.98 sq m
4160万円、4LDK、土地面積59.64m2、建物面積93.98m2
Local appearance photo現地外観写真  Local (January 2014) Shooting
現地(2014年1月)撮影
Same specifications photos (living)同仕様写真(リビング)  Same specifications
同仕様
Same specifications photo (bathroom)同仕様写真(浴室)  Same specifications
同仕様
Same specifications photo (kitchen)同仕様写真(キッチン)  Same specifications
同仕様
Same specifications photos (Other introspection)同仕様写真(その他内観)  Same specifications
同仕様
Local appearance photo現地外観写真  Local (January 2014) Shooting
現地(2014年1月)撮影
Same specifications photos (Other introspection)同仕様写真(その他内観)  Same specifications
同仕様
 Same specifications
同仕様
Location
|