New Homes » Kanto » Tokyo » Nerima
 
| | Nerima-ku, Tokyo 東京都練馬区 |
| Tokyo Metro Yurakucho Line "subway Akatsuka" walk 8 minutes 東京メトロ有楽町線「地下鉄赤塚」歩8分 |
| Tagara newly all 19 buildings newly built single-family in 4-chome calm residential area will have will birth 田柄4丁目の落ち着いた住宅地に新たに全19棟新築戸建が誕生いたします |
| ■ Land area of 100 sq m ~ 112.09 There sq m ■ On site [Development road of 5M width] When [Providing park] There is ■ 4 Route 3 Station available active location ■ There a variety of Mato ------------------------------------------------------------------------------- [Local sales meeting] It will be held [Please visit] During until ⇒ "0120-1049-15", Please feel free contact us please ------------------------------------------------------------------------------- ■土地面積は100m2 ~ 112.09m2ございます■敷地内に【5M幅員の開発道路】と【提供公園】がございます■4路線3駅利用可能なアクティブな立地■多彩な間取ございます ------------------------------------------------------------------------------- 【現地販売会】を開催いたします【ご見学】の際には⇒『0120-1049-15』まで、お気軽ご連絡ください ------------------------------------------------------------------------------- |
Features pickup 特徴ピックアップ | | Corresponding to the flat-35S / 2 along the line more accessible / LDK18 tatami mats or more / Facing south / System kitchen / Face-to-face kitchen / Toilet 2 places / Bathroom 1 tsubo or more / 2-story / The window in the bathroom / Walk-in closet / City gas フラット35Sに対応 /2沿線以上利用可 /LDK18畳以上 /南向き /システムキッチン /対面式キッチン /トイレ2ヶ所 /浴室1坪以上 /2階建 /浴室に窓 /ウォークインクロゼット /都市ガス | Event information イベント情報 | | Local sales Association (please make a reservation beforehand) schedule / Every Saturday, Sunday and public holidays time / 10:00 ~ 17:00------------------------------------------------------------------------- ※ In steep guidance, etc., There may be that business is to go out. Beforehand [reservation] The able and, Certainty [Please visit] receive. Sorry to trouble you, but, Thank you very much. ------------------------------------------------------------------------- 現地販売会(事前に必ず予約してください)日程/毎週土日祝時間/10:00 ~ 17:00-------------------------------------------------------------------------※急なご案内等で、営業が外出する事があるかもしれません。事前に【ご予約】をいただけると、確実【ご見学】いただけます。お手数ですが、どうぞ宜しくお願い致します。------------------------------------------------------------------------- | Price 価格 | | 52,900,000 yen ~ 62,900,000 yen 5290万円 ~ 6290万円 | Floor plan 間取り | | 4LDK 4LDK | Units sold 販売戸数 | | 12 units 12戸 | Total units 総戸数 | | 19 units 19戸 | Land area 土地面積 | | 100 sq m ~ 112.09 sq m (30.24 tsubo ~ 33.90 square meters) 100m2 ~ 112.09m2(30.24坪 ~ 33.90坪) | Building area 建物面積 | | 93.57 sq m ~ 101.64 sq m (28.30 tsubo ~ 30.74 square meters) 93.57m2 ~ 101.64m2(28.30坪 ~ 30.74坪) | Completion date 完成時期(築年月) | | January 2014 will 2014年1月予定 | Address 住所 | | Nerima-ku, Tokyo Tagara 4 東京都練馬区田柄4 | Traffic 交通 | | Tokyo Metro Yurakucho Line "subway Akatsuka" walk 8 minutes Tobu Tojo Line "under Akatsuka" walk 11 minutes Toei Oedo Line "Hikarigaoka" walk 20 minutes 東京メトロ有楽町線「地下鉄赤塚」歩8分 東武東上線「下赤塚」歩11分 都営大江戸線「光が丘」歩20分
| Related links 関連リンク | | [Related Sites of this company] 【この会社の関連サイト】 | Person in charge 担当者より | | Taking advantage of the network that specializes in personnel Masakazu Ohashi region will be happy to support the look you live. Store is we have also installed brightly Kids Corner. Please do not hesitate contact please. 担当者大橋正和地域に特化したネットワークを生かしお客様のお住まい探しをサポートさせていただきます。店内は明るくキッズコーナーも設置しております。どうぞお気軽にご連絡下さい。 | Contact お問い合せ先 | | TEL: 0800-603-8882 [Toll free] mobile phone ・ Also available from PHS Caller ID is not notified Please contact the "saw SUUMO (Sumo)" If it does not lead, If the real estate company TEL:0800-603-8882【通話料無料】携帯電話・PHSからもご利用いただけます 発信者番号は通知されません 「SUUMO(スーモ)を見た」と問い合わせください つながらない方、不動産会社の方は
| Building coverage, floor area ratio 建ぺい率・容積率 | | Kenpei rate: 50%, Volume ratio: 100% 建ペい率:50%、容積率:100% | Time residents 入居時期 | | Consultation 相談 | Land of the right form 土地の権利形態 | | Ownership 所有権 | Use district 用途地域 | | One low-rise 1種低層 | Land category 地目 | | Residential land 宅地 | Overview and notices その他概要・特記事項 | | Contact: Masakazu Ohashi, Building confirmation number: 15646 No. other 担当者:大橋正和、建築確認番号:15646号他 | Company profile 会社概要 | | <Mediation> Governor of Tokyo (2) No. 089541 (Corporation) Tokyo Metropolitan Government Building Lots and Buildings Transaction Business Association (Corporation) metropolitan area real estate Fair Trade Council member Johoku Real Estate Co., Ltd. Hikawadai branch Yubinbango176-0003 Nerima-ku, Tokyo Hazawa 3-32-4 <仲介>東京都知事(2)第089541号(公社)東京都宅地建物取引業協会会員 (公社)首都圏不動産公正取引協議会加盟城北不動産(株)氷川台支店〒176-0003 東京都練馬区羽沢3-32-4 |
 Rendering (appearance)
完成予想図(外観)
Same specifications photos (living)同仕様写真(リビング) ![Same specifications photos (living). - It will be in the building [Same specifications Photos] It will be -](/images/tokyo/nerima/76d1050001.jpg) - It will be in the building [Same specifications Photos] It will be -
‐建築中になりますので【同仕様写真】になります‐
Same specifications photo (kitchen)同仕様写真(キッチン) ![Same specifications photo (kitchen). - It will be in the building [Same specifications Photos] It will be -](/images/tokyo/nerima/76d1050002.jpg) - It will be in the building [Same specifications Photos] It will be -
‐建築中になりますので【同仕様写真】になります‐
Same specifications photos (Other introspection)同仕様写真(その他内観) ![Same specifications photos (Other introspection). - It will be in the building [Same specifications Photos] It will be -](/images/tokyo/nerima/76d1050004.jpg) - It will be in the building [Same specifications Photos] It will be -
‐建築中になりますので【同仕様写真】になります‐
Same specifications photos (appearance)同仕様写真(外観) ![Same specifications photos (appearance). - It will be in the building [Same specifications Photos] It will be -](/images/tokyo/nerima/76d1050007.jpg) - It will be in the building [Same specifications Photos] It will be -
‐建築中になりますので【同仕様写真】になります‐
Local photos, including front road前面道路含む現地写真  - From the front road -
‐前面道路より‐
Local appearance photo現地外観写真 ![Local appearance photo. - On site [5M development road] From side -](/images/tokyo/nerima/8769650019.jpg) - On site [5M development road] From side -
‐敷地内【5M開発道路】側より‐
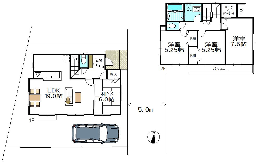
Floor plan間取り図  (18 Building), Price 61,900,000 yen, 4LDK, Land area 105.7 sq m , Building area 101.64 sq m
(18号棟)、価格6190万円、4LDK、土地面積105.7m2、建物面積101.64m2
 (12 Building), Price 58,900,000 yen, 4LDK, Land area 110.14 sq m , Building area 101.22 sq m
(12号棟)、価格5890万円、4LDK、土地面積110.14m2、建物面積101.22m2
Primary school小学校  Tagara to elementary school 200m
田柄小学校まで200m
Junior high school中学校  Tagara 530m until junior high school
田柄中学校まで530m
Kindergarten ・ Nursery幼稚園・保育園  230m to a second nursery Nerima Tatsuta pattern
練馬区立田柄第二保育園まで230m
 Tagara 370m to kindergarten
田柄幼稚園まで370m
Park公園  330m until Tagara center children's park
田柄中央児童公園まで330m
Hospital病院  170m to Morikawa clinic
森川医院まで170m
Location
|