New Homes » Kanto » Tokyo » Nerima
 
| | Nerima-ku, Tokyo 東京都練馬区 |
| Seibu Shinjuku Line "Iogi" walk 16 minutes 西武新宿線「井荻」歩16分 |
| Seibu Shinjuku Line "Kamiigusa" bright and clear of new single-family ○ south-facing first floor living room of large 4LDK nestled at the station walk 8 minutes ○ a quiet residential area a 4LDK 西武新宿線「上井草」駅徒歩8分○閑静な住宅街に佇む大型4LDKの新築戸建○南向き1階リビングの明るくゆとりある4LDK |
| ・ Living environment blessed with the richness of nature, such as rush Forest Park ・ All room storage, And a clean living space with abundant storage, such as attic storage ・ I get dressed in the morning ・ Convenient to housework second floor basin ・ bathroom ・井草森公園など自然の豊かさに恵まれた住環境・全居室収納、小屋裏収納など豊富な収納ですっきりとした住空間・朝の身支度・家事にも便利な2階洗面・浴室 |
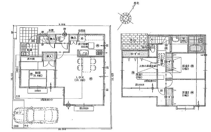
Features pickup 特徴ピックアップ | | LDK18 tatami mats or more / System kitchen / Yang per good / All room storage / Japanese-style room / Shaping land / Face-to-face kitchen / Toilet 2 places / 2-story / South balcony / Underfloor Storage / The window in the bathroom / All room 6 tatami mats or more / City gas / Attic storage LDK18畳以上 /システムキッチン /陽当り良好 /全居室収納 /和室 /整形地 /対面式キッチン /トイレ2ヶ所 /2階建 /南面バルコニー /床下収納 /浴室に窓 /全居室6畳以上 /都市ガス /屋根裏収納 | Price 価格 | | 55,800,000 yen 5580万円 | Floor plan 間取り | | 4LDK 4LDK | Units sold 販売戸数 | | 1 units 1戸 | Total units 総戸数 | | 1 units 1戸 | Land area 土地面積 | | 104.31 sq m (measured) 104.31m2(実測) | Building area 建物面積 | | 101.04 sq m (measured) 101.04m2(実測) | Driveway burden-road 私道負担・道路 | | Nothing, Southwest 5.4m width 無、南西5.4m幅 | Completion date 完成時期(築年月) | | February 2014 2014年2月 | Address 住所 | | Nerima-ku, Tokyo Shimoshakujii 2 東京都練馬区下石神井2 | Traffic 交通 | | Seibu Shinjuku Line "Iogi" walk 16 minutes Seibu Shinjuku Line "Kamiigusa" walk 8 minutes Seibu Ikebukuro Line "Shakujii Park" walk 25 minutes 西武新宿線「井荻」歩16分 西武新宿線「上井草」歩8分 西武池袋線「石神井公園」歩25分
| Related links 関連リンク | | [Related Sites of this company] 【この会社の関連サイト】 | Person in charge 担当者より | | Person in charge of real-estate and building Nishioka Seondeok Age: 30s firmly ask the request of the Building Lots and Buildings Transaction chief qualified customers, Looking for the best of my home together. 担当者宅建西岡 善徳年齢:30代宅地建物取引主任資格者お客様のご要望をしっかり伺い、最高のマイホームを一緒にお探しします。 | Contact お問い合せ先 | | TEL: 0800-603-0512 [Toll free] mobile phone ・ Also available from PHS Caller ID is not notified Please contact the "saw SUUMO (Sumo)" If it does not lead, If the real estate company TEL:0800-603-0512【通話料無料】携帯電話・PHSからもご利用いただけます 発信者番号は通知されません 「SUUMO(スーモ)を見た」と問い合わせください つながらない方、不動産会社の方は
| Building coverage, floor area ratio 建ぺい率・容積率 | | Fifty percent ・ Hundred percent 50%・100% | Time residents 入居時期 | | Consultation 相談 | Land of the right form 土地の権利形態 | | Ownership 所有権 | Structure and method of construction 構造・工法 | | Wooden 2-story 木造2階建 | Use district 用途地域 | | One low-rise 1種低層 | Overview and notices その他概要・特記事項 | | Contact: Nishioka Virtue, Facilities: Public Water Supply, This sewage, City gas, Building confirmation number: No. 13ABNT-01-0409, Parking: car space 担当者:西岡 善徳、設備:公営水道、本下水、都市ガス、建築確認番号:第13ABNT-01-0409号、駐車場:カースペース | Company profile 会社概要 | | <Mediation> Governor of Tokyo (9) No. 041553 (Corporation) All Japan Real Estate Association (Corporation) metropolitan area real estate Fair Trade Council member Showa building (Ltd.) Yubinbango167-0053 Suginami-ku, Tokyo Nishiogiminami 3-18-15 <仲介>東京都知事(9)第041553号(公社)全日本不動産協会会員 (公社)首都圏不動産公正取引協議会加盟昭和建物(株)〒167-0053 東京都杉並区西荻南3-18-15 |
Same specifications photos (appearance)同仕様写真(外観)  Seller construction cases: Appearance
売主施工例:外観
Floor plan間取り図  55,800,000 yen, 4LDK, Land area 104.31 sq m , Building area 101.04 sq m
5580万円、4LDK、土地面積104.31m2、建物面積101.04m2
Same specifications photos (living)同仕様写真(リビング)  Seller construction cases: Living
売主施工例:リビング
Same specifications photos (Other introspection)同仕様写真(その他内観)  Seller construction cases: Japanese-style room
売主施工例:和室
 Seller construction example: Western-style
売主施工例:洋室
 Other Equipment
その他設備
 Other Equipment
その他設備
 Other Equipment
その他設備
 Other Equipment
その他設備
 Local appearance photo
現地外観写真
 Local appearance photo
現地外観写真
 Local appearance photo
現地外観写真
 Local photos, including front road
前面道路含む現地写真
 Local photos, including front road
前面道路含む現地写真
Supermarketスーパー  York Mart until Shakujii shop 610m
ヨークマート 石神井店まで610m
Junior high school中学校  653m to Nerima Shakujii Minami Junior High School
練馬区立石神井南中学校まで653m
Primary school小学校  416m to Nerima Shimoshakujii Elementary School
練馬区立下石神井小学校まで416m
Kindergarten ・ Nursery幼稚園・保育園  Shakujii to south kindergarten 453m
石神井南幼稚園まで453m
 Shimoshakujii 691m to the third nursery school
下石神井第三保育園まで691m
Park公園  600m to rush Forest Park
井草森公園まで600m
Station駅  640m to Kami-Igusa Station
上井草駅まで640m
Location
|