New Homes » Kanto » Tokyo » Nerima
 
| | Nerima-ku, Tokyo 東京都練馬区 |
| Seibu Ikebukuro Line "Ekoda" walk 8 minutes 西武池袋線「江古田」歩8分 |
| Two-story plan with rooftop roof balcony. Storage with a convenient loft. Top light in the living room. "Ekoda" Station 8-minute walk, Yurakucho ・ Fukutoshin line "Kotake Mukaihara" station walk 9 minutes. Flat 35S corresponding. 屋上ルーフバルコニー付きの2階建てプラン。収納便利なロフト付き。リビングにトップライト。「江古田」駅徒歩8分、有楽町線・副都心線「小竹向原」駅徒歩9分。フラット35S対応。 |
| Corresponding to the flat-35S, 2 along the line more accessible, Super close, System kitchen, Bathroom Dryer, Yang per good, All room storage, A quiet residential area, LDK15 tatami mats or more, Washbasin with shower, Face-to-face kitchen, Toilet 2 places, Bathroom 1 tsubo or more, 2-story, Double-glazing, Warm water washing toilet seat, loft, Underfloor Storage, The window in the bathroom, TV monitor interphone, Ventilation good, All living room flooring, Water filter, City gas フラット35Sに対応、2沿線以上利用可、スーパーが近い、システムキッチン、浴室乾燥機、陽当り良好、全居室収納、閑静な住宅地、LDK15畳以上、シャワー付洗面台、対面式キッチン、トイレ2ヶ所、浴室1坪以上、2階建、複層ガラス、温水洗浄便座、ロフト、床下収納、浴室に窓、TVモニタ付インターホン、通風良好、全居室フローリング、浄水器、都市ガス |
Features pickup 特徴ピックアップ | | Corresponding to the flat-35S / 2 along the line more accessible / Super close / System kitchen / Bathroom Dryer / Yang per good / All room storage / A quiet residential area / LDK15 tatami mats or more / Washbasin with shower / Face-to-face kitchen / Toilet 2 places / Bathroom 1 tsubo or more / 2-story / Double-glazing / Warm water washing toilet seat / loft / Underfloor Storage / The window in the bathroom / TV monitor interphone / Ventilation good / All living room flooring / Water filter / City gas フラット35Sに対応 /2沿線以上利用可 /スーパーが近い /システムキッチン /浴室乾燥機 /陽当り良好 /全居室収納 /閑静な住宅地 /LDK15畳以上 /シャワー付洗面台 /対面式キッチン /トイレ2ヶ所 /浴室1坪以上 /2階建 /複層ガラス /温水洗浄便座 /ロフト /床下収納 /浴室に窓 /TVモニタ付インターホン /通風良好 /全居室フローリング /浄水器 /都市ガス | Price 価格 | | 51,900,000 yen ~ 56,800,000 yen 5190万円 ~ 5680万円 | Floor plan 間取り | | 1LDK + 2S (storeroom) ~ 2LDK + 2S (storeroom) 1LDK+2S(納戸) ~ 2LDK+2S(納戸) | Units sold 販売戸数 | | 3 units 3戸 | Total units 総戸数 | | 3 units 3戸 | Land area 土地面積 | | 80 sq m ~ 86.36 sq m 80m2 ~ 86.36m2 | Building area 建物面積 | | 85.75 sq m ~ 95.17 sq m 85.75m2 ~ 95.17m2 | Driveway burden-road 私道負担・道路 | | Road width: the north side about 4m public road 道路幅:北側約4m公道 | Completion date 完成時期(築年月) | | February 2014 schedule 2014年2月予定 | Address 住所 | | Nerima-ku, Tokyo Asahigaoka 2 東京都練馬区旭丘2 | Traffic 交通 | | Seibu Ikebukuro Line "Ekoda" walk 8 minutes Tokyo Metro Yurakucho Line "Kotake Mukaihara" walk 9 minutes Tokyo Metro Fukutoshin line "Senkawa" walk 15 minutes 西武池袋線「江古田」歩8分 東京メトロ有楽町線「小竹向原」歩9分 東京メトロ副都心線「千川」歩15分
| Related links 関連リンク | | [Related Sites of this company] 【この会社の関連サイト】 | Person in charge 担当者より | | Person in charge of real-estate and building FP Nakamura Tetsuya Age: 30 Daigyokai experience: You try your suggestions of total house hunting in 10 years smile and compassion. We are looking for your one-of-a-kind house! Real-estate and building chief ・ Grade 2 Financial ・ As a planning professional skills, We've got a wealth of information in earnest! 担当者宅建FP中村 哲也年齢:30代業界経験:10年笑顔と思いやりでトータルな家探しのご提案を心掛けます。お客様のオンリーワンの家お探しいたします!宅建主任者・2級ファイナンシャル・プランニング技能士として、豊富な情報を本気でお伝えします! | Contact お問い合せ先 | | TEL: 0800-603-3141 [Toll free] mobile phone ・ Also available from PHS Caller ID is not notified Please contact the "saw SUUMO (Sumo)" If it does not lead, If the real estate company TEL:0800-603-3141【通話料無料】携帯電話・PHSからもご利用いただけます 発信者番号は通知されません 「SUUMO(スーモ)を見た」と問い合わせください つながらない方、不動産会社の方は
| Expenses 諸費用 | | Other expenses: Flat 35S conformity certification acquisition costs 100000 yen その他諸費用:フラット35S適合証明取得費用:100000円 | Building coverage, floor area ratio 建ぺい率・容積率 | | Kenpei rate: 50%, Volume ratio: 150% 建ペい率:50%、容積率:150% | Time residents 入居時期 | | March 2014 schedule 2014年3月予定 | Land of the right form 土地の権利形態 | | Ownership 所有権 | Structure and method of construction 構造・工法 | | Wooden 2-story 木造2階建 | Use district 用途地域 | | One low-rise 1種低層 | Overview and notices その他概要・特記事項 | | Contact: Nakamura Tetsuya, Building confirmation number: No. 13UDI3S Ken 01410 other 担当者:中村 哲也、建築確認番号:第13UDI3S建01410号他 | Company profile 会社概要 | | <Mediation> Governor of Tokyo (3) No. 079417 (stock) assist home Yubinbango165-0032 Nakano-ku, Tokyo Saginomiya 2-1-3 <仲介>東京都知事(3)第079417号(株)アシストホーム〒165-0032 東京都中野区鷺宮2-1-3 |
Same specifications photos (living)同仕様写真(リビング)  Living example of construction
リビング施工例
Same specifications photo (kitchen)同仕様写真(キッチン)  Kitchen construction cases
キッチン施工例
Same specifications photo (bathroom)同仕様写真(浴室)  Bathroom construction cases
浴室施工例
Floor plan間取り図  (Building 2), Price 51,900,000 yen, 1LDK+2S, Land area 86.36 sq m , Building area 87.87 sq m
(2号棟)、価格5190万円、1LDK+2S、土地面積86.36m2、建物面積87.87m2
High school ・ College高校・高専  964m to Tokyo Metropolitan Chihaya High School
東京都立千早高校まで964m
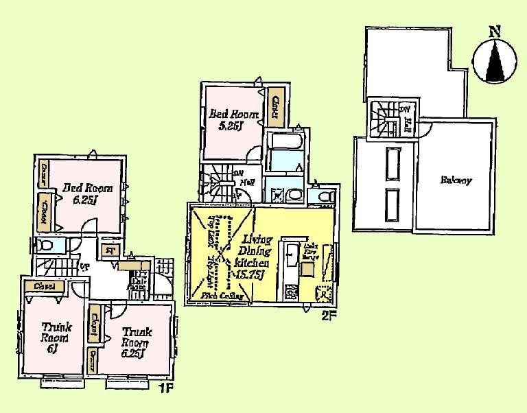
Floor plan間取り図  (1 Building), Price 56,800,000 yen, 2LDK+2S, Land area 80 sq m , Building area 95.17 sq m
(1号棟)、価格5680万円、2LDK+2S、土地面積80m2、建物面積95.17m2
Junior high school中学校  306m to Nerima Asahigaoka Junior High School
練馬区立旭丘中学校まで306m
Floor plan間取り図  (3 Building), Price 51,900,000 yen, 1LDK+2S, Land area 85.68 sq m , Building area 85.75 sq m
(3号棟)、価格5190万円、1LDK+2S、土地面積85.68m2、建物面積85.75m2
Primary school小学校  292m to Nerima Asahigaoka Elementary School
練馬区立旭丘小学校まで292m
Hospital病院  Tokyo Foundation Metropolitan Medical Health Association to Nerimasogobyoin 824m
公益財団法人東京都医療保健協会練馬総合病院まで824m
 Hiroshiseikai until Suzuki hospital 1039m
浩生会スズキ病院まで1039m
Library図書館  574m to the Nihon University College of Art Library
日本大学芸術学部図書館まで574m
 Musashino Academia Musicae library Ekoda 1095m to campus
武蔵野音楽大学図書館江古田キャンパスまで1095m
Station駅  640m until ekoda station
江古田駅まで640m
 720m to Kotake Mukaihara Station
小竹向原駅まで720m
Location
|