New Homes » Kanto » Tokyo » Nerima
 
| | Nerima-ku, Tokyo 東京都練馬区 |
| Toei Oedo Line "Hikarigaoka" walk 15 minutes 都営大江戸線「光が丘」歩15分 |
| Site area 34 square meters! Living 16 Pledge, Large 4LDK first is the public car spaces of bedrooms 9 quires also offers two. In Zenshitsuminami orientation, Day is also good per the south side is a parking space. 敷地面積34坪!リビング16帖、寝室9帖の大型4LDK初公開ですカースペースも2台ございます。全室南向きで、南側が駐車スペースにつき日当たりも良好です。 |
| ■ Toei Oedo Line starting station is the nearest! Commute to the city center ・ School convenient ■ Two clear of car spaces. Relative, It is safe to come friends in car! ■ Land area, 2-story more than 30 square meters in building area both. Clear there is wide. ■ Gas floor heating is standard equipment ■都営大江戸線始発駅が最寄り!都心への通勤・通学便利■ゆとりのカースペース2台。親戚、友人が車で来ても安心です!■土地面積、建物面積共に30坪以上の2階建て。ゆとりある広さです。■ガス式床暖房が標準装備 |
Features pickup 特徴ピックアップ | | Pre-ground survey / Parking two Allowed / Facing south / System kitchen / Bathroom Dryer / Yang per good / All room storage / Flat to the station / A quiet residential area / LDK15 tatami mats or more / Japanese-style room / Starting station / Shaping land / Washbasin with shower / Toilet 2 places / Bathroom 1 tsubo or more / 2-story / Warm water washing toilet seat / Underfloor Storage / The window in the bathroom / TV monitor interphone / Water filter / City gas / Flat terrain / Floor heating 地盤調査済 /駐車2台可 /南向き /システムキッチン /浴室乾燥機 /陽当り良好 /全居室収納 /駅まで平坦 /閑静な住宅地 /LDK15畳以上 /和室 /始発駅 /整形地 /シャワー付洗面台 /トイレ2ヶ所 /浴室1坪以上 /2階建 /温水洗浄便座 /床下収納 /浴室に窓 /TVモニタ付インターホン /浄水器 /都市ガス /平坦地 /床暖房 | Price 価格 | | 53,800,000 yen 5380万円 | Floor plan 間取り | | 4LDK 4LDK | Units sold 販売戸数 | | 1 units 1戸 | Total units 総戸数 | | 1 units 1戸 | Land area 土地面積 | | 112.59 sq m (34.05 tsubo) (Registration) 112.59m2(34.05坪)(登記) | Building area 建物面積 | | 101.84 sq m (30.80 tsubo) (Registration) 101.84m2(30.80坪)(登記) | Driveway burden-road 私道負担・道路 | | Nothing, East 4m width (contact the road width 9.5m) 無、東4m幅(接道幅9.5m) | Completion date 完成時期(築年月) | | January 2014 2014年1月 | Address 住所 | | Nerima-ku, Tokyo Tanihara 3 東京都練馬区谷原3 | Traffic 交通 | | Toei Oedo Line "Hikarigaoka" walk 15 minutes 都営大江戸線「光が丘」歩15分
| Person in charge 担当者より | | [Regarding this property.] Site area 34 square meters! Living 16 Pledge, Large 4LDK first is the public car spaces of bedrooms 9 quires also offers two. Day is also good per the south side is a parking space. 【この物件について】敷地面積34坪!リビング16帖、寝室9帖の大型4LDK初公開ですカースペースも2台ございます。南側が駐車スペースにつき日当たりも良好です。 | Contact お問い合せ先 | | Century 21 (stock) here ・ House net TEL: 03-5905-0412 Please contact as "saw SUUMO (Sumo)" センチュリー21(株)ココ・ハウスネットTEL:03-5905-0412「SUUMO(スーモ)を見た」と問い合わせください | Building coverage, floor area ratio 建ぺい率・容積率 | | Fifty percent ・ Hundred percent 50%・100% | Time residents 入居時期 | | January 2014 2014年1月 | Land of the right form 土地の権利形態 | | Ownership 所有権 | Structure and method of construction 構造・工法 | | Wooden 2-story (framing method) 木造2階建(軸組工法) | Use district 用途地域 | | One low-rise 1種低層 | Other limitations その他制限事項 | | Height district, Quasi-fire zones, Site area minimum Yes, Building area maximum Yes, Shade limit Yes 高度地区、準防火地域、敷地面積最低限度有、建物面積最高限度有、日影制限有 | Overview and notices その他概要・特記事項 | | Facilities: Public Water Supply, This sewage, City gas, Building confirmation number: No. 13UDI3T Ken 02108, Parking: car space 設備:公営水道、本下水、都市ガス、建築確認番号:第13UDI3T建02108号、駐車場:カースペース | Company profile 会社概要 | | <Marketing alliance (agency)> Governor of Tokyo (4) No. 063455 (Corporation) All Japan Real Estate Association (Corporation) metropolitan area real estate Fair Trade Council member Century 21 (stock) here ・ House net Yubinbango178-0064 Nerima-ku, Tokyo Minamiōizumi 5-35-23 Moamemu second floor <販売提携(代理)>東京都知事(4)第063455号(公社)全日本不動産協会会員 (公社)首都圏不動産公正取引協議会加盟センチュリー21(株)ココ・ハウスネット〒178-0064 東京都練馬区南大泉5-35-23 モアメーム2階 |
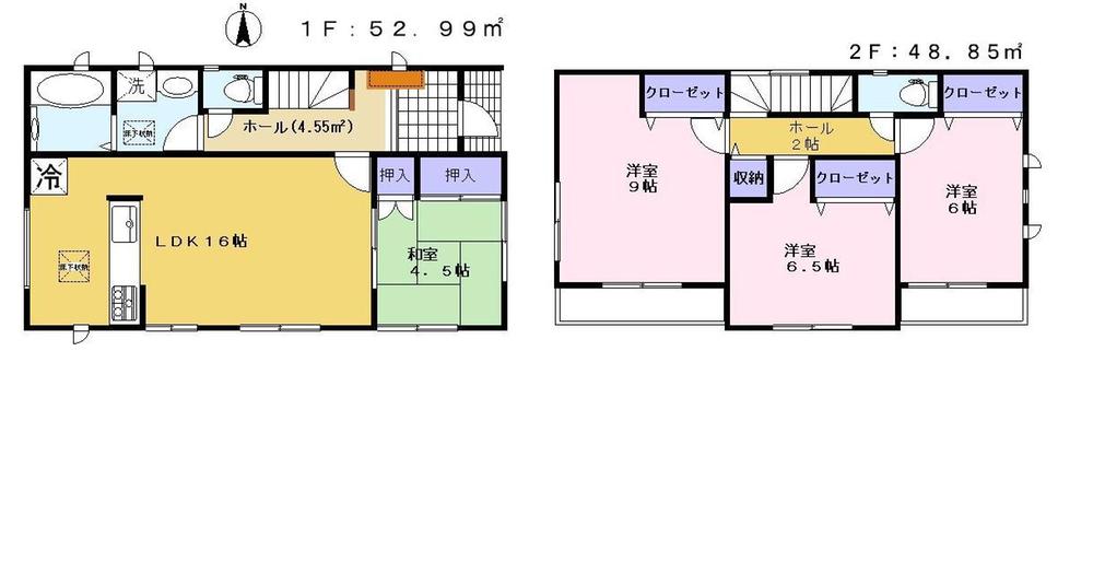
Floor plan間取り図  53,800,000 yen, 4LDK, Land area 112.59 sq m , LDK16 Pledge bedroom of building area 101.84 sq m room is taken between spacious of 9 quires. Zenshitsuminami facing attractive ☆
5380万円、4LDK、土地面積112.59m2、建物面積101.84m2 ゆとりのLDK16帖寝室は9帖の広々とした間取です。全室南向きも魅力☆
The entire compartment Figure全体区画図  Garage space is 2 cars! Also up indoor lighting by providing a garage space on the south side!
車庫スペースは2台分!南側に車庫スペースを設けることにより室内の採光もアップ!
 Other
その他
Bathroom浴室  Bus specification
バス仕様書
Kitchenキッチン  Kitchen Specification
キッチン仕様書
Same specifications photos (Other introspection)同仕様写真(その他内観)  Interior joinery specifications
室内建具仕様書
Local photos, including front road前面道路含む現地写真  It is a flat-shaped land. Local (11 May 2013) Shooting
平坦な整形地です。現地(2013年11月)撮影
 Facing the east side 4m public roads. Local (11 May 2013) Shooting
東側4m公道に面しています。現地(2013年11月)撮影
 34 square meters of land. Local (11 May 2013) Shooting
34坪の土地。現地(2013年11月)撮影
Other localその他現地  It is a photograph that was seen from the west side
西側から見た写真です
Local photos, including front road前面道路含む現地写真  Front road as seen from the south side
南側から見た前面道路
Other localその他現地  Local as seen from the east side
東側から見た現地
Location
|