New Homes » Kanto » Tokyo » Nerima
 
| | Nerima-ku, Tokyo 東京都練馬区 |
| Seibu Shinjuku Line "Kami Shakujii" walk 17 minutes 西武新宿線「上石神井」歩17分 |
| ☆ Seller direct sales ☆ Seibu Shinjuku Line "Kami Shakujii" station Walk 17 minutes! Seibu Ikebukuro Line "Shakujii Park" station Walk 20 minutes! Walk up to Shakujii Park 4 minutes ☆ Living environment is ◎! ☆売主直売☆西武新宿線『上石神井』駅 徒歩17分!西武池袋線『石神井公園』駅 徒歩20分!石神井公園まで徒歩4分☆住環境◎です! |
| ☆ Seller direct sales ☆ All four buildings of new construction condominiums! ○ Seibu Shinjuku Line "Kami Shakujii" station Walk 17 minutes! Seibu Ikebukuro Line "Shakujii Park" station! All 4 buildings imposing appearance in 20 minutes ○ quiet residential street walk! Living environment ◎ ○ 4-minute walk from the lush Shakujii Park. ○ floor plan is of living in stairs 3LDK! Adopt the popular face-to-face kitchen in all buildings wife! Document request ・ Please feel free to contact us local's guide. Inquiries accepted, [Request button] [Visitors reservation button] I will your gun at. When you call [Idasangyo Head office the second sales department Property in charge] Please contact! ☆売主直売☆ 全4棟の新築分譲住宅!○西武新宿線『上石神井』駅 徒歩17分! 西武池袋線『石神井公園』駅!徒歩20分○閑静な住宅街に全4棟堂々登場です!住環境◎○緑豊かな石神井公園まで徒歩4分。○間取りはリビングイン階段の3LDK! 全棟奥様に人気の対面キッチンを採用!資料請求・現地のご案内はお気軽にお問い合わせください。お問い合わせの受付は、【資料請求ボタン】【来場予約ボタン】にてお願致します。お電話の際は【飯田産業 本店第二営業部 物件担当】までお問い合わせ下さい! |
Features pickup 特徴ピックアップ | | Construction housing performance with evaluation / Design house performance with evaluation / Measures to conserve energy / Corresponding to the flat-35S / Pre-ground survey / Vibration Control ・ Seismic isolation ・ Earthquake resistant / Parking two Allowed / 2 along the line more accessible / Energy-saving water heaters / Facing south / System kitchen / Yang per good / All room storage / A quiet residential area / Shaping land / garden / Washbasin with shower / Face-to-face kitchen / Barrier-free / Toilet 2 places / Bathroom 1 tsubo or more / 2-story / South balcony / Double-glazing / loft / Nantei / Underfloor Storage / The window in the bathroom / TV monitor interphone / Leafy residential area / Ventilation good / All living room flooring / Water filter / Living stairs / City gas / All rooms are two-sided lighting 建設住宅性能評価付 /設計住宅性能評価付 /省エネルギー対策 /フラット35Sに対応 /地盤調査済 /制震・免震・耐震 /駐車2台可 /2沿線以上利用可 /省エネ給湯器 /南向き /システムキッチン /陽当り良好 /全居室収納 /閑静な住宅地 /整形地 /庭 /シャワー付洗面台 /対面式キッチン /バリアフリー /トイレ2ヶ所 /浴室1坪以上 /2階建 /南面バルコニー /複層ガラス /ロフト /南庭 /床下収納 /浴室に窓 /TVモニタ付インターホン /緑豊かな住宅地 /通風良好 /全居室フローリング /浄水器 /リビング階段 /都市ガス /全室2面採光 | Event information イベント情報 | | (Please be sure to ask in advance) Our property is, It has acquired the entire building housing performance evaluation ☆ It is the property of the third party endorsement ☆ Not only the details of the property, Other If you have any questions, etc. Please feel free to contact us. Local your tour, When the document request is, Sorry to trouble you, but [Email] I will you gun your reservation in advance at. When you call [Idasangyo Head office the second sales department] Until thank you. (事前に必ずお問い合わせください)弊社の物件は、全棟住宅性能評価を取得しています☆第三者機関お墨付きの物件です☆ 物件の詳細だけでなく、その他ご不明点等ございましたらお気軽にご相談下さい。現地ご見学、資料請求の際は、お手数ですが【メール】にて事前にご予約をお願致します。お電話の際は【飯田産業 本店第二営業部】迄お願い致します。 | Property name 物件名 | | Heart full Town Nerima Shakujiidai 1-chome [New premiere properties !! new construction all four buildings] ハートフルタウン 練馬石神井台1丁目【新規初公開物件!!新築全4棟】 | Price 価格 | | 43,300,000 yen ~ 50,300,000 yen 4330万円 ~ 5030万円 | Floor plan 間取り | | 3LDK 3LDK | Units sold 販売戸数 | | 4 units 4戸 | Total units 総戸数 | | 4 units 4戸 | Land area 土地面積 | | 88.78 sq m ~ 115.09 sq m (measured) 88.78m2 ~ 115.09m2(実測) | Building area 建物面積 | | 71.93 sq m ~ 75.97 sq m (measured) 71.93m2 ~ 75.97m2(実測) | Driveway burden-road 私道負担・道路 | | Road width: 4.0m, Asphaltic pavement 道路幅:4.0m、アスファルト舗装 | Completion date 完成時期(築年月) | | 2014 end of January schedule 2014年1月末予定 | Address 住所 | | Nerima-ku, Tokyo Shakujiidai 1 東京都練馬区石神井台1 | Traffic 交通 | | Seibu Shinjuku Line "Kami Shakujii" walk 17 minutes Seibu Ikebukuro Line "Shakujii Park" walk 20 minutes 西武新宿線「上石神井」歩17分 西武池袋線「石神井公園」歩20分
| Related links 関連リンク | | [Related Sites of this company] 【この会社の関連サイト】 | Person in charge 担当者より | | Rep Iijima Kazuya 担当者飯島 和也 | Contact お問い合せ先 | | (Ltd.) Idasangyo head office the second Sales Department TEL: 0800-805-3547 [Toll free] mobile phone ・ Also available from PHS Caller ID is not notified Please contact the "saw SUUMO (Sumo)" If it does not lead, If the real estate company (株)飯田産業本店第二営業部TEL:0800-805-3547【通話料無料】携帯電話・PHSからもご利用いただけます 発信者番号は通知されません 「SUUMO(スーモ)を見た」と問い合わせください つながらない方、不動産会社の方は
| Building coverage, floor area ratio 建ぺい率・容積率 | | Kenpei rate: 40% ・ 45% ・ Fifty percent, Volume ratio: 100% 建ペい率:40%・45%・50%、容積率:100% | Time residents 入居時期 | | 2014 end of January schedule 2014年1月末予定 | Land of the right form 土地の権利形態 | | Ownership 所有権 | Structure and method of construction 構造・工法 | | Wooden siding paste roofing roofing 2-story (panel method) 木造サイディング貼りルーフィング葺き2階建(パネル工法) | Construction 施工 | | CO., LTD Idasangyo [Peace of mind and reliability of its own design ・ House construction ・ House sales] 株式会社 飯田産業【安心と信頼の自社設計・自社施工・自社販売】 | Use district 用途地域 | | One low-rise 1種低層 | Land category 地目 | | Residential land 宅地 | Other limitations その他制限事項 | | Regulations have by the Landscape Act, Quasi-fire zones 景観法による規制有、準防火地域 | Overview and notices その他概要・特記事項 | | Contact: Iijima Kazuya, Building confirmation number: No. HPA-13-06454-1 other 担当者:飯島 和也、建築確認番号:第HPA-13-06454-1号他 | Company profile 会社概要 | | <Seller> Minister of Land, Infrastructure and Transport (8) No. 003306 (Corporation) Tokyo Metropolitan Government Building Lots and Buildings Transaction Business Association (Corporation) metropolitan area real estate Fair Trade Council member (Ltd.) Idasangyo head office the second sales department Yubinbango180-0022 Musashino-shi, Tokyo Sakai 2-2-2 <売主>国土交通大臣(8)第003306号(公社)東京都宅地建物取引業協会会員 (公社)首都圏不動産公正取引協議会加盟(株)飯田産業本店第二営業部〒180-0022 東京都武蔵野市境2-2-2 |
Local appearance photo現地外観写真  Site photo (November 24, 2013) Shooting
現場写真(2013年11月24日)撮影
Local photos, including front road前面道路含む現地写真  Front road photo (November 24, 2013) Shooting
前面道路写真(2013年11月24日)撮影
Local appearance photo現地外観写真  Local (November 24, 2013) Shooting
現地(2013年11月24日)撮影
Floor plan間取り図  (A Building), Price 50,300,000 yen, 3LDK, Land area 88.78 sq m , Building area 75.76 sq m
(A号棟)、価格5030万円、3LDK、土地面積88.78m2、建物面積75.76m2
Local appearance photo現地外観写真  East side adjacent land photos (11 May 2013 24) shooting
東側隣地写真(2013年11月24)撮影
Construction ・ Construction method ・ specification構造・工法・仕様  The building is also causing the assumed sway the Great Hanshin-Awaji Earthquake grade earthquake that does not collapse has been proven by experiments.
阪神淡路大震災級の大地震を想定した揺れを起こしても建物が倒壊しないことが実験によって立証されました。
Other Equipmentその他設備  It is your description of our panel construction.
当社パネル工法のご説明です。
Primary school小学校  Shakujii until elementary school 630m
石神井小学校まで630m
Floor plan間取り図  (B Building), Price 46,300,000 yen, 3LDK, Land area 99.8 sq m , Building area 75.97 sq m
(B号棟)、価格4630万円、3LDK、土地面積99.8m2、建物面積75.97m2
Construction ・ Construction method ・ specification構造・工法・仕様 ![Construction ・ Construction method ・ specification. Our building, You can change the future floor plan [SI housing] is. Depending on the family-like living environment, You can change the floor plan.](/images/tokyo/nerima/3905bf0007.jpg) Our building, You can change the future floor plan [SI housing] is. Depending on the family-like living environment, You can change the floor plan.
当社の建物は、将来間取りを変更できる【SI住宅】です。ご家族様の生活環境に応じて、間取りの変更ができます。
Other Equipmentその他設備  Earthquake resistant ・ Wind, of course, Other 4 to get the highest grade in the item.
耐震・耐風はもちろん、その他4項目において最高等級を取得しています。
Junior high school中学校  Shakujii 1040m until junior high school
石神井中学校まで1040m
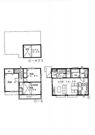
Floor plan間取り図  (C Building), Price 43,300,000 yen, 3LDK, Land area 110.78 sq m , Building area 71.93 sq m
(C号棟)、価格4330万円、3LDK、土地面積110.78m2、建物面積71.93m2
Construction ・ Construction method ・ specification構造・工法・仕様  It is the site photo of the panel construction method that enables the SI housing. Because to get the seismic performance only in almost outer wall, You can expand the space in the building free.
SI住宅を可能にするパネル工法の現場写真です。ほぼ外壁だけで耐震性能を取得しているので、建物内の空間を自由に広げることができます。
Park公園  Until Shakujii Park 280m
石神井公園まで280m
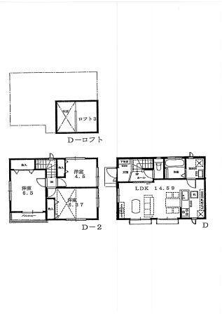
Floor plan間取り図  (D Building), Price 45,300,000 yen, 3LDK, Land area 115.09 sq m , Building area 74.16 sq m
(D号棟)、価格4530万円、3LDK、土地面積115.09m2、建物面積74.16m2
Supermarketスーパー  Until Life 730m
ライフまで730m
Location
|