New Homes » Kanto » Tokyo » Nerima
 
| | Nerima-ku, Tokyo 東京都練馬区 |
| Seibu Ikebukuro Line "Oizumigakuen" 10 minutes Oizumigakuen 4-chome, walk 4 minutes by bus 西武池袋線「大泉学園」バス10分大泉学園4丁目歩4分 |
| Limited Building 1 Master Bedroom 8.2 Pledge wood utilization point object properties 限定1棟 主寝室8.2帖 木材利用ポイント対象物件 |
| Corresponding to the flat-35S, System kitchen, Bathroom Dryer, A quiet residential areaese-style room, Shaping land, Washbasin with shower, Face-to-face kitchen, Toilet 2 places, 2-story, Underfloor Storage, Leafy residential area, Water filter, City gas, A large gap between the neighboring house フラット35Sに対応、システムキッチン、浴室乾燥機、閑静な住宅地、和室、整形地、シャワー付洗面台、対面式キッチン、トイレ2ヶ所、2階建、床下収納、緑豊かな住宅地、浄水器、都市ガス、隣家との間隔が大きい |
Features pickup 特徴ピックアップ | | Corresponding to the flat-35S / System kitchen / Bathroom Dryer / A quiet residential area / Japanese-style room / Shaping land / Washbasin with shower / Face-to-face kitchen / Toilet 2 places / 2-story / Underfloor Storage / Leafy residential area / Water filter / City gas / A large gap between the neighboring house フラット35Sに対応 /システムキッチン /浴室乾燥機 /閑静な住宅地 /和室 /整形地 /シャワー付洗面台 /対面式キッチン /トイレ2ヶ所 /2階建 /床下収納 /緑豊かな住宅地 /浄水器 /都市ガス /隣家との間隔が大きい | Event information イベント情報 | | Local tours (please visitors to direct local) schedule / Every Saturday, Sunday and public holidays time / 10:00 ~ 17:00 現地見学会(直接現地へご来場ください)日程/毎週土日祝時間/10:00 ~ 17:00 | Price 価格 | | 40,800,000 yen 4080万円 | Floor plan 間取り | | 4LDK 4LDK | Units sold 販売戸数 | | 1 units 1戸 | Total units 総戸数 | | 1 units 1戸 | Land area 土地面積 | | 101.74 sq m (registration) 101.74m2(登記) | Building area 建物面積 | | 94.76 sq m 94.76m2 | Driveway burden-road 私道負担・道路 | | Nothing, West 4m width 無、西4m幅 | Completion date 完成時期(築年月) | | February 2013 2013年2月 | Address 住所 | | Nerima-ku, Tokyo Oizumi 3-29-10 東京都練馬区大泉町3-29-10 | Traffic 交通 | | Seibu Ikebukuro Line "Oizumigakuen" 10 minutes Oizumigakuen 4-chome, walk 4 minutes by bus 西武池袋線「大泉学園」バス10分大泉学園4丁目歩4分
| Related links 関連リンク | | [Related Sites of this company] 【この会社の関連サイト】 | Contact お問い合せ先 | | . Livin (Ltd.) TEL: 0800-603-8499 [Toll free] mobile phone ・ Also available from PHS Caller ID is not notified Please contact the "saw SUUMO (Sumo)" If it does not lead, If the real estate company livin.(株)TEL:0800-603-8499【通話料無料】携帯電話・PHSからもご利用いただけます 発信者番号は通知されません 「SUUMO(スーモ)を見た」と問い合わせください つながらない方、不動産会社の方は
| Building coverage, floor area ratio 建ぺい率・容積率 | | Fifty percent ・ Hundred percent 50%・100% | Time residents 入居時期 | | Consultation 相談 | Land of the right form 土地の権利形態 | | Ownership 所有権 | Structure and method of construction 構造・工法 | | Wooden 2-story 木造2階建 | Use district 用途地域 | | One low-rise 1種低層 | Other limitations その他制限事項 | | Quasi-fire zones, Scenic zone, Shade limit Yes 準防火地域、風致地区、日影制限有 | Overview and notices その他概要・特記事項 | | Facilities: Public Water Supply, This sewage, City gas, Parking: car space 設備:公営水道、本下水、都市ガス、駐車場:カースペース | Company profile 会社概要 | | <Mediation> Governor of Tokyo (2) No. 088993 livin. (Ltd.) Yubinbango176-0021 Nerima-ku, Tokyo Nukui 1-29-10 <仲介>東京都知事(2)第088993号livin.(株)〒176-0021 東京都練馬区貫井1-29-10 |
Local appearance photo現地外観写真  Local (11 May 2013) Shooting
現地(2013年11月)撮影
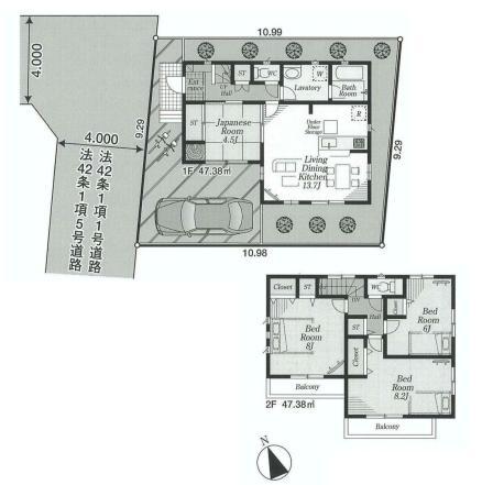
Floor plan間取り図  40,800,000 yen, 4LDK, Land area 101.74 sq m , Building area 94.76 sq m
4080万円、4LDK、土地面積101.74m2、建物面積94.76m2
Local photos, including front road前面道路含む現地写真  Local (11 May 2013) Shooting
現地(2013年11月)撮影
Local appearance photo現地外観写真  Local (11 May 2013) Shooting
現地(2013年11月)撮影
Primary school小学校  550m to Nerima Oizumi first elementary school
練馬区立大泉第一小学校まで550m
Junior high school中学校  870m to Nerima Oizumikita Junior High School
練馬区立大泉北中学校まで870m
Location
|