New Homes » Kanto » Tokyo » Nerima
 
| | Nerima-ku, Tokyo 東京都練馬区 |
| Tokyo Metro Yurakucho Line "Heiwadai" walk 8 minutes 東京メトロ有楽町線「平和台」歩8分 |
| Lottery new price! Price Cuts to 45.8 million yen from 47 million yen! January 4 ・ First selling open room held on 5 days! January in consumer electronics with 500,000 yen to those who contract! A positive per good on the south-facing, Parking with your Niwazuke お年玉新価格!4700万円から4580万円に値下げしました! 1月4日・5日に初売りオープンルーム開催!1月中契約の方には家電50万円付! 南向きで陽当り良好で、駐車場とお庭付 |
| . ○ modern one units denominated in a quiet residential area we have proudly completed ○. Stylish designer properties of architectural designer "Akio Nagayama" Mr. design. 3-wire 2 stations available, Heiwadai an 8-minute walk from the train station. To Ikebukuro 12 minutes, Smooth access to the city center! The interior is elegant white keynote. It is shades stylish furniture shine. Of electric in the front door [Smart Key] The adopted. Even if you have luggage you can Ease opening and closing time and effort without door in both hands. Kitchens [Built-in dishwashing dryer] In addition to, Sliding large storage of [Slide stocker] In can be stored and refreshing. 。○閑静な住宅街にモダンな一戸建が堂々完成いたしました○。 建築デザイナー「永山明男」氏設計のお洒落なデザイナーズ物件です。 3線2駅利用可能、平和台駅まで徒歩8分。池袋まで12分と、都心までスムーズアクセス! 内装はエレガントな白基調。お洒落な家具が映える色調です。 玄関ドアには電動の【スマートキー】を採用しました。両手に荷物を持っていても手間なくドアをラクラク開閉出来ます。 キッチンには【ビルトイン式の食器洗浄乾燥機】に加え、スライド式の大型収納【スライドストッカー】でスッキリと収納可能です。 |
Features pickup 特徴ピックアップ | | Pre-ground survey / 2 along the line more accessible / Energy-saving water heaters / Super close / It is close to the city / Facing south / System kitchen / Yang per good / All room storage / Flat to the station / Siemens south road / A quiet residential area / Around traffic fewer / garden / Washbasin with shower / Security enhancement / South balcony / Double-glazing / Otobasu / Warm water washing toilet seat / Underfloor Storage / The window in the bathroom / TV monitor interphone / Leafy residential area / Urban neighborhood / Ventilation good / All living room flooring / Dish washing dryer / All room 6 tatami mats or more / Three-story or more / Living stairs / City gas / Storeroom / All rooms are two-sided lighting / Maintained sidewalk / terrace / Readjustment land within 地盤調査済 /2沿線以上利用可 /省エネ給湯器 /スーパーが近い /市街地が近い /南向き /システムキッチン /陽当り良好 /全居室収納 /駅まで平坦 /南側道路面す /閑静な住宅地 /周辺交通量少なめ /庭 /シャワー付洗面台 /セキュリティ充実 /南面バルコニー /複層ガラス /オートバス /温水洗浄便座 /床下収納 /浴室に窓 /TVモニタ付インターホン /緑豊かな住宅地 /都市近郊 /通風良好 /全居室フローリング /食器洗乾燥機 /全居室6畳以上 /3階建以上 /リビング階段 /都市ガス /納戸 /全室2面採光 /整備された歩道 /テラス /区画整理地内 | Event information イベント情報 | | Open Room (please visitors to direct local) schedule / January 4 (Saturday) ・ January 5 (Sunday) time / 10:00 ~ 18:00 Come, Please come directly to the local. In charge of who will be happy to guide you on site. January's first sale held! We will conduct a grab bag gift! ( ※ No longer is up to the end) オープンルーム(直接現地へご来場ください)日程/1月4日(土曜日)・1月5日(日曜日)時間/10:00 ~ 18:00是非、直接現地にお越しください。現地にて担当の者がご案内させていただきます。1月初売り開催!福袋プレゼントを実施致します!(※なくなり次第終了です) | Property name 物件名 | | . ○ Tagara chome designer House ○. 。○田柄一丁目 デザイナーズハウス○。 | Price 価格 | | 45,800,000 yen 4580万円 | Floor plan 間取り | | 1LDK + S (storeroom) 1LDK+S(納戸) | Units sold 販売戸数 | | 1 units 1戸 | Total units 総戸数 | | 1 units 1戸 | Land area 土地面積 | | 59.08 sq m (measured) 59.08m2(実測) | Building area 建物面積 | | 72.03 sq m (measured) 72.03m2(実測) | Driveway burden-road 私道負担・道路 | | Nothing 無 | Completion date 完成時期(築年月) | | October 2013 2013年10月 | Address 住所 | | Nerima-ku, Tokyo Tagara 1-19-8 東京都練馬区田柄1-19-8 | Traffic 交通 | | Tokyo Metro Yurakucho Line "Heiwadai" walk 8 minutes Tokyo Metro Fukutoshin line "Heiwadai" walk 8 minutes Tobu Tojo Line "under Akatsuka" walk 14 minutes 東京メトロ有楽町線「平和台」歩8分 東京メトロ副都心線「平和台」歩8分 東武東上線「下赤塚」歩14分
| Related links 関連リンク | | [Related Sites of this company] 【この会社の関連サイト】 | Contact お問い合せ先 | | TEL: 0120-204755 [Toll free] Please contact the "saw SUUMO (Sumo)" TEL:0120-204755【通話料無料】「SUUMO(スーモ)を見た」と問い合わせください | Building coverage, floor area ratio 建ぺい率・容積率 | | Fifty percent ・ Hundred percent 50%・100% | Time residents 入居時期 | | Immediate available 即入居可 | Land of the right form 土地の権利形態 | | Ownership 所有権 | Structure and method of construction 構造・工法 | | Wooden three-story 木造3階建 | Construction 施工 | | KutsuSawa Construction Co., Ltd. 沓澤建設(株) | Use district 用途地域 | | One low-rise 1種低層 | Other limitations その他制限事項 | | Quasi-fire zones, Height ceiling Yes, Site area maximum Yes, Shade limit Yes 準防火地域、高さ最高限度有、敷地面積最高限度有、日影制限有 | Overview and notices その他概要・特記事項 | | Facilities: Public Water Supply, This sewage, City gas 設備:公営水道、本下水、都市ガス | Company profile 会社概要 | | <Seller> Governor of Tokyo (3) No. 081518 (Corporation) All Japan Real Estate Association (Corporation) metropolitan area real estate Fair Trade Council member environment station Co., Ltd., Chuo-ku, Tokyo 104-0061 Ginza 1-8-14 Ginza YOMIKO building 7th floor <売主>東京都知事(3)第081518号(公社)全日本不動産協会会員 (公社)首都圏不動産公正取引協議会加盟環境ステーション(株)〒104-0061 東京都中央区銀座1-8-14 銀座YOMIKOビル7階 |
Non-living roomリビング以外の居室  Designer's property by using waste without a space to insert a warm light architect
あたたかな光の差し込む空間を無駄なく利用した建築家によるデザイナーズ物件
It is imposing complete modern designer property of the building designer "Akio Nagayama" Mr. design. Please join us feel free to because it is during the open house held! 建築デザイナー「永山明男」氏設計のモダンなデザイナーズ物件が堂々完成です。オープンハウス開催中なのでお気軽にお越しください!  Architectural designer "Akio Nagayama" in the design Mr.
建築デザイナー「永山明男」氏設計の
Because there is a parking and garden, Spread the fun of life. Hobby nor living with pets, Enjoy the reunion with family, You can make a warm private space. 駐車場とお庭があるので、生活の楽しみが広がります。趣味もペットとの生活も、家族との団らんも楽しめる、あたたかなプライベート空間をつくれます。  Because there is a parking and garden, Spread the fun of life.
駐車場とお庭があるので、生活の楽しみが広がります。
Kitchenキッチン  ■ 2F: adopt a slide stocker of kitchen kitchen is easy-to-use large storage. Since we are using the built-in dishwashing dryer, No doubt that is cooking fun!
■2F:キッチンキッチンは使い勝手の良い大型収納のスライドストッカーを採用。ビルトイン式の食器洗浄乾燥機を使用しているので、お料理が楽しくなること間違いなし!
Non-living roomリビング以外の居室  ■ 1F: it has been designed without waste a lot of storage to the free space any room. Under-floor storage and shelves, Such as stairs under storage and outlet housing, Only a variety of ideas because designer property was meticulous!
■1F:フリースペースどの部屋にも多くの収納を無駄なく設計してあります。床下収納や棚、階段下収納やコンセント収納など、様々な工夫はこだわりぬいたデザイナーズ物件だからこそ!
 ■ 3F: it can also will be separated into two rooms a large space of Western-style third floor from 1 room. Each room has a leading piping so that air conditioning can be installed. Time of construction does not take from the post.
■3F:洋室3階の大空間を1部屋から2部屋に区切ることも出来ます。各部屋にエアコンが設置出来るように先行配管をしています。後からの工事の手間がかかりません。
Livingリビング  ■ 2F: a living-dining large windows are designed to think the sense of openness and daylighting. The window is incorporating the multi-layer glass, Cool in summer in winter you can keep warm room.
■2F:リビングダイニング大きな窓は開放感と採光を考えて設計されています。窓は複層ガラスを取り入れており、夏は涼しく冬は暖かく部屋を保つことが出来ます。
Supermarketスーパー  Large supermarket to life Heiwadai shop in the 640m Heiwadai Station. Hours 9:00 ~ 25:00 and, very convenient!
ライフ平和台店まで640m 平和台駅前にある大型スーパーマーケット。営業時間は9:00 ~ 25:00と、とても便利です!
Power generation ・ Hot water equipment発電・温水設備  ■ Facilities: it is Reheating function with remote control Reheating function with a remote control. Nor can reheating without going to the bathroom because it is installed in the kitchen, You can also call.
■設備:追い焚き機能付リモコン追い焚き機能付きのリモコンです。キッチンにも設置されているので浴室まで行かなくても追い焚きができ、通話も出来ます。
Security equipment防犯設備  ■ Facilities: it is possible to look out of state while are in the intercom second floor with monitor, You can verify who came to without leaving to the entrance at the time of visitor.
■設備:モニター付ドアホン2階にいながら外の様子を見ることができ、来客時には玄関へ出ることなく誰が来たのか確認できます。
Other Equipmentその他設備  ■ Equipment; you can wash to clean up the corner of the wash basin so with shower faucet faucet is extended. This is useful when you put the water in the vase!
■設備;シャワー付き水栓蛇口が伸びるので洗面台の角までキレイに洗い流すことが出来ます。花瓶に水を入れる時などに便利です!
 ■ Facilities: Since the depth type of dish washing and drying machine built-in contains a lot of things. Also it comes with the ability to prevent an increase in the temperature of the kitchen.
■設備:食器洗浄乾燥機ビルトインの深型なので沢山のものが入ります。キッチンの温度上昇を防止する機能もついています。
Toiletトイレ  ■ toilet
■トイレ
Bathroom浴室  ■ bathroom
■浴室
Wash basin, toilet洗面台・洗面所  ■ Washroom
■洗面所
Other introspectionその他内観  ■ Entrance
■玄関
Non-living roomリビング以外の居室  ■ 3F: Western-style
■3F:洋室
Balconyバルコニー  ■ balcony
■バルコニー
Garden庭  ■ Garden
■お庭
Livingリビング  ■ 2F: a living-dining
■2F:リビングダイニング
Other introspectionその他内観  ■ Stairs
■階段
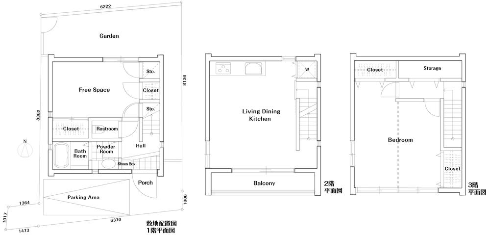
Floor plan間取り図  45,800,000 yen, 1LDK + S (storeroom), Land area 59.08 sq m , Building area 72.03 sq m
4580万円、1LDK+S(納戸)、土地面積59.08m2、建物面積72.03m2
Location
|