New Homes » Kanto » Tokyo » Nerima
 
| | Nerima-ku, Tokyo 東京都練馬区 |
| Seibu Ikebukuro Line "Shakujii Park" walk 7 minutes 西武池袋線「石神井公園」歩7分 |
| It will be the location of a 2-minute walk from the Shakujii Park. Do not you see the fun with your family aboard the boat on the weekend? , You can luxury of one person per room. 石神井公園まで徒歩2分の立地になります。週末にはご家族でボートを乗って楽しんではみませんか?間取りもゆとりの4LDKございますので、一人一部屋の贅沢が出来ます。 |
| ■ Super close, It is conveniently located in a little buy forget. ■ And between the neighboring building is firmly secured, Exposure to the sun ・ Ventilation is good. ■ bicycle ・ You can also the whole family minute bicycle or bike. ■ 3 floor wide balcony, you can enjoy a wide variety to. Maybe Nante's also a good beer garden in a plastic pool and summer of children. ■ Since the monthly payment example is also located on the following, Please try compared with the current of your rent. ■ Other, Please feel free to contact us if you have any questions, etc.. ■スーパーが近く、ちょっとした買い忘れにも便利な立地です。■隣棟間がしっかり確保されており、陽当り・通風良好です。■自転車・バイク等もご家族全員分駐輪出来ます。■3階のワイドバルコニーは多種多様に楽しめます。 お子様のビニールプールや夏にはビアガーデンなんてのも良いかもしれませんね。■月々の支払い例も下記にございますので、現在のお家賃と比べてみてください。■その他、ご質問等がございましたらお気軽にご相談くださいませ。 |
Features pickup 特徴ピックアップ | | Measures to conserve energy / Corresponding to the flat-35S / Pre-ground survey / 2 along the line more accessible / Energy-saving water heaters / Super close / Facing south / System kitchen / Bathroom Dryer / Yang per good / All room storage / Flat to the station / A quiet residential area / LDK15 tatami mats or more / Around traffic fewer / Or more before road 6m / Corner lot / Shaping land / Washbasin with shower / Face-to-face kitchen / Wide balcony / Barrier-free / Toilet 2 places / Bathroom 1 tsubo or more / South balcony / Double-glazing / Warm water washing toilet seat / The window in the bathroom / TV monitor interphone / Leafy residential area / Ventilation good / All living room flooring / Dish washing dryer / Water filter / Three-story or more / City gas / All rooms are two-sided lighting / A large gap between the neighboring house / Maintained sidewalk / roof balcony / Flat terrain / Floor heating 省エネルギー対策 /フラット35Sに対応 /地盤調査済 /2沿線以上利用可 /省エネ給湯器 /スーパーが近い /南向き /システムキッチン /浴室乾燥機 /陽当り良好 /全居室収納 /駅まで平坦 /閑静な住宅地 /LDK15畳以上 /周辺交通量少なめ /前道6m以上 /角地 /整形地 /シャワー付洗面台 /対面式キッチン /ワイドバルコニー /バリアフリー /トイレ2ヶ所 /浴室1坪以上 /南面バルコニー /複層ガラス /温水洗浄便座 /浴室に窓 /TVモニタ付インターホン /緑豊かな住宅地 /通風良好 /全居室フローリング /食器洗乾燥機 /浄水器 /3階建以上 /都市ガス /全室2面採光 /隣家との間隔が大きい /整備された歩道 /ルーフバルコニー /平坦地 /床暖房 | 住宅ローン情報 住宅ローン情報 | | We have adapted to the flat 35 criteria in the following item. <Compatibility condition> ● earthquake resistance 以下の項目でフラット35基準に適合しております。<適合条件>●耐震性 | Event information イベント情報 | | ━━ ◇ RerealCo..Ltd. ◇ ━━━━━━━━━━━━━━━━━━━━━━━━━━━━━━ ● ○ ● weekdays ・ Holiday visit of both will be possible. (Staff does not reside in the local) ● ○ ● When you visits will pick you up at the eco-friendly cars such as the Prius. Please tell us, such as do not hesitate to meeting place. ※ In addition to the property, Other properties that have been posted on the Internet is also available for your tour. Please tell together when there is hope. ■ In addition to your tour available upon a number of consultation ■ □ Consultation of the mortgage □ Introduction of finalists Shall planning □ Live search of hope conditions ・ Introduction □ Assessment of your home (you can assessment of the sale price and the purchase price of the market) If you feel that you need to know to other, First of all, please contact us! ━━━━━━━━━━━━━━━━━━━━━━━━━━━━━━ ◇ RerealCo..Ltd. ◇ ━━ ━━◇RerealCo..Ltd.◇━━━━━━━━━━━━━━━━━━━━━━━━━━━━━━●○●平日・休日共にご見学は可能となります。(スタッフは現地に常駐していません)●○●ご見学の際はプリウス等のエコカーでお迎えに上がります。お気軽に待ち合わせ場所などお申し付け下さい。※本物件の他に、インターネット上で掲載されている他の物件もご見学可能です。ご希望がございましたら併せてお伝え下さい。■ご見学以外にも多数のご相談承ります■ □住宅ローンのご相談 □ファイナシャルプランニングのご紹介 □ご希望条件のお住まい検索・ご紹介 □ご自宅の査定(市場の売却価格と買取価格の査定ができます) その他にもお知りになりたいことがございましたら、まずはご相談ください!━━━━━━━━━━━━━━━━━━━━━━━━━━━━━━◇RerealCo..Ltd.◇━━ | Price 価格 | | 45,800,000 yen 4580万円 | Floor plan 間取り | | 4LDK 4LDK | Units sold 販売戸数 | | 1 units 1戸 | Total units 総戸数 | | 1 units 1戸 | Land area 土地面積 | | 92.59 sq m (measured) 92.59m2(実測) | Building area 建物面積 | | 97.38 sq m (registration) 97.38m2(登記) | Driveway burden-road 私道負担・道路 | | Nothing, North 8m width (contact the road width 12.3m) 無、北8m幅(接道幅12.3m) | Completion date 完成時期(築年月) | | April 2014 2014年4月 | Address 住所 | | Nerima-ku, Tokyo Shakujii cho 5 東京都練馬区石神井町5 | Traffic 交通 | | Seibu Ikebukuro Line "Shakujii Park" walk 7 minutes Seibu Ikebukuro Line "Nerima Takanodai" walk 13 minutes Seibu Shinjuku Line "Kamiigusa" walk 26 minutes 西武池袋線「石神井公園」歩7分 西武池袋線「練馬高野台」歩13分 西武新宿線「上井草」歩26分
| Related links 関連リンク | | [Related Sites of this company] 【この会社の関連サイト】 | Person in charge 担当者より | | Rep Sugawara Yosuke 担当者菅原 洋介 | Contact お問い合せ先 | | (Ltd.) lilial TEL: 0800-601-6128 [Toll free] mobile phone ・ Also available from PHS Caller ID is not notified Please contact the "saw SUUMO (Sumo)" If it does not lead, If the real estate company (株)リリアルTEL:0800-601-6128【通話料無料】携帯電話・PHSからもご利用いただけます 発信者番号は通知されません 「SUUMO(スーモ)を見た」と問い合わせください つながらない方、不動産会社の方は
| Building coverage, floor area ratio 建ぺい率・容積率 | | Fifty percent ・ 150% 50%・150% | Time residents 入居時期 | | April 2014 schedule 2014年4月予定 | Land of the right form 土地の権利形態 | | Ownership 所有権 | Structure and method of construction 構造・工法 | | Wooden three-story 木造3階建 | Use district 用途地域 | | One middle and high 1種中高 | Other limitations その他制限事項 | | Height district, Quasi-fire zones, Scenic zone, There Notices 高度地区、準防火地域、風致地区、告知事項あり | Overview and notices その他概要・特記事項 | | Contact: Sugawara Yosuke, Facilities: Public Water Supply, This sewage, City gas, Building confirmation number: No. 13UDI2T Ken 01547, Parking: car space 担当者:菅原 洋介、設備:公営水道、本下水、都市ガス、建築確認番号:第13UDI2T建01547号、駐車場:カースペース | Company profile 会社概要 | | <Mediation> Governor of Tokyo (1) No. 094991 (Ltd.) lilial Yubinbango168-0063 Suginami-ku, Tokyo Izumi 3-3-11 <仲介>東京都知事(1)第094991号(株)リリアル〒168-0063 東京都杉並区和泉3-3-11 |
Local photos, including front road前面道路含む現地写真  Frontage Dawn and 12.3M reserved 8M public road and refreshing. It is safe because there is a sidewalk even pop out children from the front door.
スッキリとした8M公道に間口ドーンと12.3M確保。玄関からお子様が飛び出しても歩道があるから安心です。
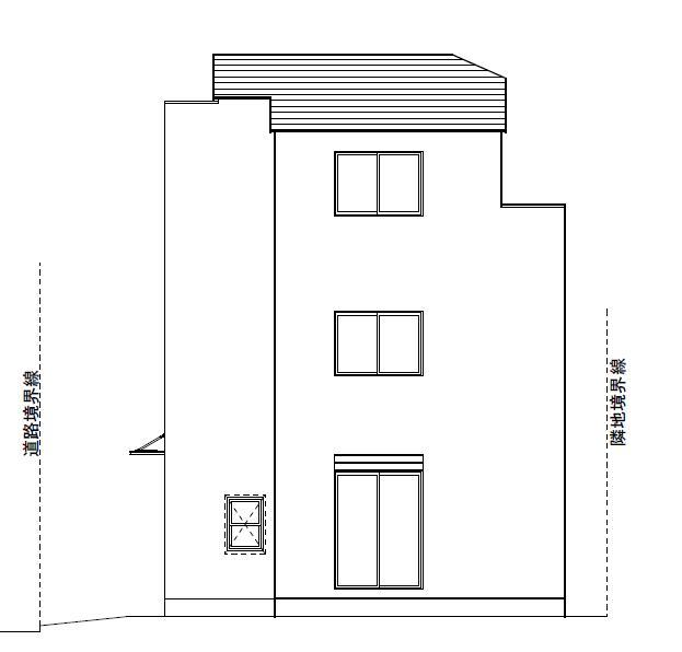
Rendering (appearance)完成予想図(外観)  Elevational view from the north Still color select mid-December in time ~ It can accommodate up to around the late.
北側からの立面図 まだ間に合うカラーセレクト12月中旬 ~ 下旬頃まで対応可能です。
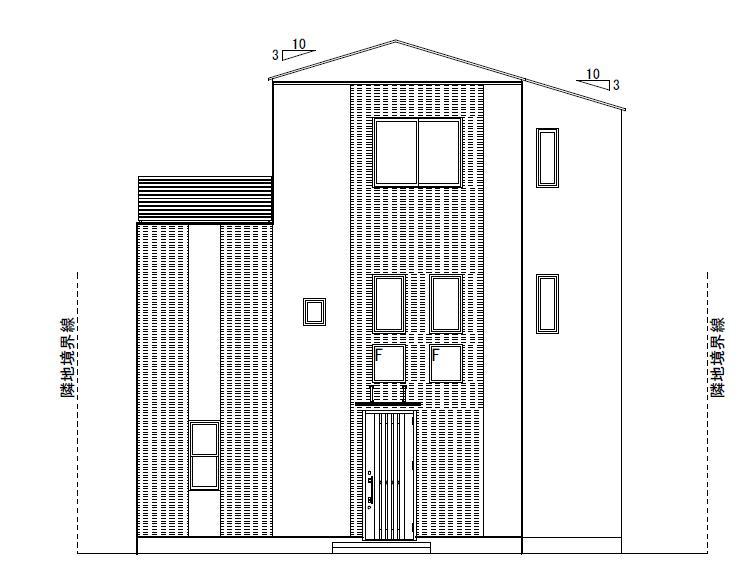
 Elevational view from the south side Do not you seen enjoying the color select?
南側からの立面図 カラーセレクトを楽しんではみませんか??
 Elevational view from the east side It may every day of returning home is to look forward to in your favorite color.
東側からの立面図 自分好みの色で毎日の帰宅が楽しみになるかもしれません。
Floor plan間取り図  45,800,000 yen, 4LDK, Land area 92.59 sq m , Building area 97.38 sq m floor plan
4580万円、4LDK、土地面積92.59m2、建物面積97.38m2 間取図
Rendering (appearance)完成予想図(外観)  Elevational view from the west Other questions, etc. Please feel free to contact us if you have.
西側からの立面図 その他ご質問等がございましたらお気軽にご相談くださいませ。
Same specifications photos (living)同仕様写真(リビング)  Same specifications
同仕様
Same specifications photo (bathroom)同仕様写真(浴室)  Same specifications
同仕様
Same specifications photo (kitchen)同仕様写真(キッチン)  Same specifications
同仕様
Local photos, including front road前面道路含む現地写真  Selling local front road Children can be safe because there is a sidewalk even jumped out of the front door.
販売現地前面道路 お子様が玄関から飛び出しても歩道があるから安心できますよ。
Supermarketスーパー  Akore Shakujii 77m up to 5-chome
アコレ石神井5丁目店まで77m
Same specifications photos (Other introspection)同仕様写真(その他内観)  Same specifications
同仕様
Same specifications photos (living)同仕様写真(リビング)  Same specifications
同仕様
Supermarketスーパー  599m to Mana Mart Shakujii Ekimae
まなマート石神井駅前店まで599m
Same specifications photos (Other introspection)同仕様写真(その他内観)  Same specifications
同仕様
Same specifications photos (living)同仕様写真(リビング)  Same specifications
同仕様
Supermarketスーパー  603m until the Queen's Isetan Shakujii Park shop
クイーンズ伊勢丹石神井公園店まで603m
Same specifications photos (Other introspection)同仕様写真(その他内観)  Same specifications
同仕様
Convenience storeコンビニ  105m to Seven-Eleven Nerima Shakujii 5-chome
セブンイレブン練馬石神井5丁目店まで105m
Same specifications photos (Other introspection)同仕様写真(その他内観)  Same specifications
同仕様
Kindergarten ・ Nursery幼稚園・保育園  Shakujii 543m to nursery school
石神井保育園まで543m
Same specifications photos (Other introspection)同仕様写真(その他内観)  Same specifications
同仕様
Location
|