New Homes » Kanto » Tokyo » Nerima
 
| | Nerima-ku, Tokyo 東京都練馬区 |
| Seibu Ikebukuro Line "Hoya" walk 13 minutes 西武池袋線「保谷」歩13分 |
| Lush quiet residential area surrounded by nature. Functional floor plan design! LDK is a floor heating with designer housing. Enhance the equipment specifications to comfortable living! Heal you tired of the day with a mist sauna 自然に囲まれた緑溢れる閑静な住宅街。機能的な間取り設計!LDK床暖房付きのデザイナーズ住宅です。暮らしを快適にする設備仕様が充実!ミストサウナで一日の疲れを癒せます |
| Corresponding to the flat-35S, 2 along the line more accessible, Energy-saving water heaters, Super close, System kitchen, Bathroom Dryer, Yang per good, All room storage, A quiet residential area, LDK15 tatami mats or more, Starting station, Shaping land, Mist sauna, Washbasin with shower, Face-to-face kitchen, Toilet 2 places, 2-story, Double-glazing, Warm water washing toilet seat, loft, TV with bathroom, Underfloor Storage, The window in the bathroom, Atrium, TV monitor interphone, Leafy residential area, Ventilation good, All living room flooring, Dish washing dryer, Water filter, Living stairs, City gas, All rooms are two-sided lighting, roof balcony, Flat terrain, Floor heating フラット35Sに対応、2沿線以上利用可、省エネ給湯器、スーパーが近い、システムキッチン、浴室乾燥機、陽当り良好、全居室収納、閑静な住宅地、LDK15畳以上、始発駅、整形地、ミストサウナ、シャワー付洗面台、対面式キッチン、トイレ2ヶ所、2階建、複層ガラス、温水洗浄便座、ロフト、TV付浴室、床下収納、浴室に窓、吹抜け、TVモニタ付インターホン、緑豊かな住宅地、通風良好、全居室フローリング、食器洗乾燥機、浄水器、リビング階段、都市ガス、全室2面採光、ルーフバルコニー、平坦地、床暖房 |
Features pickup 特徴ピックアップ | | Corresponding to the flat-35S / 2 along the line more accessible / Energy-saving water heaters / Super close / System kitchen / Bathroom Dryer / Yang per good / All room storage / A quiet residential area / LDK15 tatami mats or more / Starting station / Shaping land / Mist sauna / Washbasin with shower / Face-to-face kitchen / Toilet 2 places / 2-story / Double-glazing / Warm water washing toilet seat / loft / TV with bathroom / Underfloor Storage / The window in the bathroom / Atrium / TV monitor interphone / Leafy residential area / Ventilation good / All living room flooring / Dish washing dryer / Water filter / Living stairs / City gas / All rooms are two-sided lighting / roof balcony / Flat terrain / Floor heating フラット35Sに対応 /2沿線以上利用可 /省エネ給湯器 /スーパーが近い /システムキッチン /浴室乾燥機 /陽当り良好 /全居室収納 /閑静な住宅地 /LDK15畳以上 /始発駅 /整形地 /ミストサウナ /シャワー付洗面台 /対面式キッチン /トイレ2ヶ所 /2階建 /複層ガラス /温水洗浄便座 /ロフト /TV付浴室 /床下収納 /浴室に窓 /吹抜け /TVモニタ付インターホン /緑豊かな住宅地 /通風良好 /全居室フローリング /食器洗乾燥機 /浄水器 /リビング階段 /都市ガス /全室2面採光 /ルーフバルコニー /平坦地 /床暖房 | Price 価格 | | 44,800,000 yen ・ 45,300,000 yen 4480万円・4530万円 | Floor plan 間取り | | 3LDK 3LDK | Units sold 販売戸数 | | 4 units 4戸 | Total units 総戸数 | | 7 units 7戸 | Land area 土地面積 | | 81.08 sq m ~ 81.1 sq m (measured) 81.08m2 ~ 81.1m2(実測) | Building area 建物面積 | | 80.59 sq m ・ 81 sq m (measured) 80.59m2・81m2(実測) | Driveway burden-road 私道負担・道路 | | Road width: about 5.25m ~ About 6.0m, Asphaltic pavement 道路幅:約5.25m ~ 約6.0m、アスファルト舗装 | Completion date 完成時期(築年月) | | December 2013 2013年12月 | Address 住所 | | Nerima-ku, Tokyo Minamiōizumi 3 東京都練馬区南大泉3 | Traffic 交通 | | Seibu Ikebukuro Line "Hoya" walk 13 minutes Seibu Shinjuku Line "Higashifushimi" walk 24 minutes Seibu Ikebukuro Line "Oizumigakuen" walk 25 minutes 西武池袋線「保谷」歩13分 西武新宿線「東伏見」歩24分 西武池袋線「大泉学園」歩25分
| Related links 関連リンク | | [Related Sites of this company] 【この会社の関連サイト】 | Person in charge 担当者より | | The person in charge Tanaka Kota Age: 20's My Home Purchase, It is the highest shopping in my life. That's why, Standing in your eyes, We will help to heartfelt sincerity of for the dream to form. Every day the motto "we want our customers to smile.", We will continue to devote! ! 担当者田中 康太年齢:20代マイホーム購入は、人生の中で最も高い買い物です。だからこそ、お客様の目線に立ち、夢を形にするためのお手伝いを誠心誠意させて頂きます。「お客様を笑顔にしたい」をモットーに日々、精進していきます!! | Contact お問い合せ先 | | TEL: 0120-948007 [Toll free] Please contact the "saw SUUMO (Sumo)" TEL:0120-948007【通話料無料】「SUUMO(スーモ)を見た」と問い合わせください | Most price range 最多価格帯 | | 44 million yen ・ 45 million yen 4480 (each 2 units) 4400万円台・4500万円台4480(各2戸) | Building coverage, floor area ratio 建ぺい率・容積率 | | Kenpei rate: 50%, Volume ratio: 100% 建ペい率:50%、容積率:100% | Time residents 入居時期 | | 2014 early January 2014年1月初旬 | Land of the right form 土地の権利形態 | | Ownership 所有権 | Structure and method of construction 構造・工法 | | Wooden 2-story 木造2階建 | Use district 用途地域 | | One low-rise 1種低層 | Land category 地目 | | Residential land 宅地 | Other limitations その他制限事項 | | Quasi-fire zones 準防火地域 | Overview and notices その他概要・特記事項 | | Contact: Tanaka Kota, Building confirmation number: H25SHC56000 other 担当者:田中 康太、建築確認番号:H25SHC56000他 | Company profile 会社概要 | | <Mediation> Minister of Land, Infrastructure and Transport (1) No. 008439 (Ltd.) My Town Hoya shop Yubinbango202-0012 Tokyo Nishitokyo Azumacho 4-15-13-101 <仲介>国土交通大臣(1)第008439号(株)マイタウン保谷店〒202-0012 東京都西東京市東町4-15-13-101 |
Rendering (appearance)完成予想図(外観)  Rendering Perth
完成予想パース
Livingリビング  B Building Living (November 30, 2013) Shooting
B号棟リビング(2013年11月30日)撮影
Kitchenキッチン  B Building Kitchen (November 30, 2013) Shooting
B号棟キッチン(2013年11月30日)撮影
Receipt収納  B Building shoes cloak (November 30, 2013) Shooting
B号棟シューズクローク(2013年11月30日)撮影
Local appearance photo現地外観写真  Local (November 30, 2013) Shooting
現地(2013年11月30日)撮影
Local photos, including front road前面道路含む現地写真  Local (November 30, 2013) Shooting
現地(2013年11月30日)撮影
Local appearance photo現地外観写真  Local (November 30, 2013) Shooting
現地(2013年11月30日)撮影
Floor plan間取り図  (B Building), Price 45,300,000 yen, 3LDK, Land area 81.1 sq m , Building area 81 sq m
(B号棟)、価格4530万円、3LDK、土地面積81.1m2、建物面積81m2
Non-living roomリビング以外の居室  B Building Western-style (November 30, 2013) Shooting
B号棟洋室(2013年11月30日)撮影
Entrance玄関  B Building entrance (November 30, 2013) Shooting
B号棟玄関(2013年11月30日)撮影
Wash basin, toilet洗面台・洗面所  B Building basin (November 30, 2013) Shooting
B号棟洗面(2013年11月30日)撮影
Bathroom浴室  B Building bathroom (November 30, 2013) Shooting
B号棟浴室(2013年11月30日)撮影
Supermarketスーパー  Commodities Iida 891m to Oizumi shop
コモディイイダ大泉店まで891m
The entire compartment Figure全体区画図  Compartment figure
区画図
Floor plan間取り図  (C Building), Price 45,300,000 yen, 3LDK, Land area 81.08 sq m , Building area 81 sq m
(C号棟)、価格4530万円、3LDK、土地面積81.08m2、建物面積81m2
Livingリビング  B Building Living (November 30, 2013) Shooting
B号棟リビング(2013年11月30日)撮影
Primary school小学校  475m to Nerima Oizumi second elementary school
練馬区立大泉第二小学校まで475m
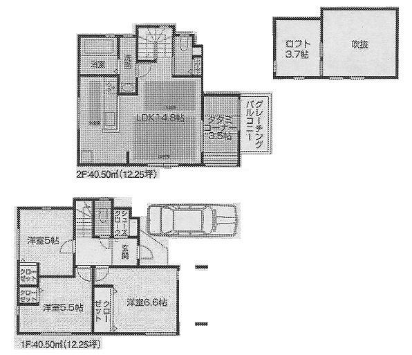
Floor plan間取り図  (D Building), Price 44,800,000 yen, 3LDK, Land area 81.1 sq m , Building area 80.59 sq m
(D号棟)、価格4480万円、3LDK、土地面積81.1m2、建物面積80.59m2
Kindergarten ・ Nursery幼稚園・保育園  205m up to the Flip color nursery Minamiōizumi
南大泉にじのいろ保育園まで205m
Floor plan間取り図  (E Building), Price 44,800,000 yen, 3LDK, Land area 81.09 sq m , Building area 80.59 sq m
(E号棟)、価格4480万円、3LDK、土地面積81.09m2、建物面積80.59m2
Kindergarten ・ Nursery幼稚園・保育園  305m to Oizumi Fuji kindergarten
大泉富士幼稚園まで305m
Location
|