New Homes » Kanto » Tokyo » Nerima
 
| | Nerima-ku, Tokyo 東京都練馬区 |
| Seibu Ikebukuro Line "Hoya" walk 21 minutes 西武池袋線「保谷」歩21分 |
| Siemens south road, Yang per good, A quiet residential area, Shaping land, Leafy residential area, Flat terrain, Facing south, LDK15 tatami mats or more, Around traffic fewer, Face-to-face kitchen, 2-story, The window in the bathroom, Ventilation good 南側道路面す、陽当り良好、閑静な住宅地、整形地、緑豊かな住宅地、平坦地、南向き、LDK15畳以上、周辺交通量少なめ、対面式キッチン、2階建、浴室に窓、通風良好 |
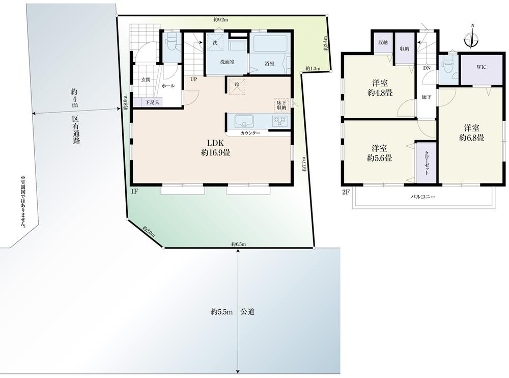
Features pickup 特徴ピックアップ | | Facing south / Yang per good / Siemens south road / A quiet residential area / LDK15 tatami mats or more / Around traffic fewer / Shaping land / Face-to-face kitchen / 2-story / The window in the bathroom / Leafy residential area / Ventilation good / Walk-in closet / Flat terrain 南向き /陽当り良好 /南側道路面す /閑静な住宅地 /LDK15畳以上 /周辺交通量少なめ /整形地 /対面式キッチン /2階建 /浴室に窓 /緑豊かな住宅地 /通風良好 /ウォークインクロゼット /平坦地 | Price 価格 | | 39,800,000 yen 3980万円 | Floor plan 間取り | | 3LDK 3LDK | Units sold 販売戸数 | | 1 units 1戸 | Total units 総戸数 | | 1 units 1戸 | Land area 土地面積 | | 83.75 sq m (25.33 tsubo) (Registration) 83.75m2(25.33坪)(登記) | Building area 建物面積 | | 79.59 sq m (24.07 square meters) 79.59m2(24.07坪) | Driveway burden-road 私道負担・道路 | | Nothing, South 5m width (contact the road width 6.5m) 無、南5m幅(接道幅6.5m) | Completion date 完成時期(築年月) | | March 2014 2014年3月 | Address 住所 | | Nerima-ku, Tokyo Nishiōizumi 6 東京都練馬区西大泉6 | Traffic 交通 | | Seibu Ikebukuro Line "Hoya" walk 21 minutes 西武池袋線「保谷」歩21分
| Person in charge 担当者より | | [Regarding this property.] South about 5.0m, Since facing the east side about 4.0m District Yes passage, Sunny, There is a sense of open. 【この物件について】南側約5.0m、東側約4.0m区有通路に面するため、日当たり良好、開放感あり。 | Contact お問い合せ先 | | Mitsubishi UFJ Real Estate Sales Co., Ltd. Oizumi Center TEL: 0800-603-1078 [Toll free] mobile phone ・ Also available from PHS Caller ID is not notified Please contact the "saw SUUMO (Sumo)" If it does not lead, If the real estate company 三菱UFJ不動産販売(株)大泉センターTEL:0800-603-1078【通話料無料】携帯電話・PHSからもご利用いただけます 発信者番号は通知されません 「SUUMO(スーモ)を見た」と問い合わせください つながらない方、不動産会社の方は
| Building coverage, floor area ratio 建ぺい率・容積率 | | Fifty percent ・ Hundred percent 50%・100% | Time residents 入居時期 | | March 2014 schedule 2014年3月予定 | Land of the right form 土地の権利形態 | | Ownership 所有権 | Structure and method of construction 構造・工法 | | Wooden 2-story 木造2階建 | Use district 用途地域 | | One low-rise 1種低層 | Overview and notices その他概要・特記事項 | | Facilities: Public Water Supply, This sewage, City gas, Building confirmation number: H25A-JK.eM00669-01, Parking: car space 設備:公営水道、本下水、都市ガス、建築確認番号:H25A-JK.eM00669-01、駐車場:カースペース | Company profile 会社概要 | | <Mediation> Minister of Land, Infrastructure and Transport (7) No. 003890 Mitsubishi UFJ Real Estate Sales Co., Ltd. Oizumi center Yubinbango178-0063 Nerima-ku, Tokyo Higashioizumi 1-29-1 Oizumigakuen Yumeria 1 10 floor <仲介>国土交通大臣(7)第003890号三菱UFJ不動産販売(株)大泉センター〒178-0063 東京都練馬区東大泉1-29-1 大泉学園ゆめりあ1 10階 |
Floor plan間取り図  39,800,000 yen, 3LDK, Land area 83.75 sq m , Building area 79.59 sq m
3980万円、3LDK、土地面積83.75m2、建物面積79.59m2
Local appearance photo現地外観写真  Local (12 May 2013) Shooting
現地(2013年12月)撮影
Local photos, including front road前面道路含む現地写真  Local (12 May 2013) Shooting
現地(2013年12月)撮影
Local appearance photo現地外観写真  Local (12 May 2013) Shooting
現地(2013年12月)撮影
Otherその他  About 20 minutes to municipal Oizumi West Junior High School
区立大泉西中学校まで約20分
 Up to about Jason Nerima Nishiōizumi shop 920m
ジェーソン練馬西大泉店まで約920m
Supermarketスーパー  Up to about Summit Niiza Katayama shop 340m
サミット新座片山店まで約340m
Park公園  Municipal Musashino Square Park
区立むさしの広場公園
Location
|