|
|
Nerima-ku, Tokyo
東京都練馬区
|
|
Seibu Ikebukuro Line "Oizumigakuen" walk 11 minutes
西武池袋線「大泉学園」歩11分
|
|
Antifouling outer wall used to remove the dirt in the rain! With bathroom dryer ☆ All rooms have double-glazing! Intercom with TV monitor!
雨で汚れを落とす防汚外壁使用!浴室乾燥機付き☆全室ペアガラス!TVモニター付インターホン!
|
|
2 line 3 Station Available! It is convenient to commute ☆ Supermarket ・ school, Etc. near, Living environment is good station has a shopping center and the Hall, Life you can enjoy
2路線3駅利用可!通勤通学に便利です☆スーパー・学校、等近く、生活環境良好です駅前はショッピングセンターやホールがあり、生活が楽しめます
|
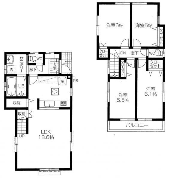
Features pickup 特徴ピックアップ | | Corresponding to the flat-35S / 2 along the line more accessible / Super close / Facing south / System kitchen / Bathroom Dryer / Yang per good / All room storage / A quiet residential area / LDK15 tatami mats or more / Around traffic fewer / Washbasin with shower / Face-to-face kitchen / Barrier-free / Toilet 2 places / 2-story / South balcony / Warm water washing toilet seat / Underfloor Storage / The window in the bathroom / TV monitor interphone / Ventilation good / All living room flooring / Living stairs / City gas / All rooms are two-sided lighting / Flat terrain フラット35Sに対応 /2沿線以上利用可 /スーパーが近い /南向き /システムキッチン /浴室乾燥機 /陽当り良好 /全居室収納 /閑静な住宅地 /LDK15畳以上 /周辺交通量少なめ /シャワー付洗面台 /対面式キッチン /バリアフリー /トイレ2ヶ所 /2階建 /南面バルコニー /温水洗浄便座 /床下収納 /浴室に窓 /TVモニタ付インターホン /通風良好 /全居室フローリング /リビング階段 /都市ガス /全室2面採光 /平坦地 |
Price 価格 | | 53,800,000 yen 5380万円 |
Floor plan 間取り | | 4LDK 4LDK |
Units sold 販売戸数 | | 1 units 1戸 |
Total units 総戸数 | | 1 units 1戸 |
Land area 土地面積 | | 95.01 sq m (measured) 95.01m2(実測) |
Building area 建物面積 | | 92.73 sq m (measured) 92.73m2(実測) |
Driveway burden-road 私道負担・道路 | | Nothing, East 3.7m width 無、東3.7m幅 |
Completion date 完成時期(築年月) | | January 2014 2014年1月 |
Address 住所 | | Nerima-ku, Tokyo Higashioizumi 7 東京都練馬区東大泉7 |
Traffic 交通 | | Seibu Ikebukuro Line "Oizumigakuen" walk 11 minutes Seibu Ikebukuro Line "Hoya" walk 16 minutes Seibu Shinjuku Line "Kami Shakujii" 15 minutes Oizumigakuen walk 11 minutes by bus 西武池袋線「大泉学園」歩11分 西武池袋線「保谷」歩16分 西武新宿線「上石神井」バス15分大泉学園駅歩11分
|
Person in charge 担当者より | | Person in charge of real-estate and building Motegi Born in Nerima Hideaki Minamiōizumi, Thereafter living in Seibu line railroad. Features and changes in the region ・ I know all the good places and bad place is "Seibu line wayside Specialist"! Anything please feel free to contact us! 担当者宅建茂木 秀章練馬区南大泉で生まれ、以後西武線沿線で生活しています。地域の特徴や変化・良いところや悪いところも全て把握している『西武線沿線のスペシャリスト』です!何でもお気軽にご相談下さい! |
Contact お問い合せ先 | | TEL: 0800-603-1421 [Toll free] mobile phone ・ Also available from PHS Caller ID is not notified Please contact the "saw SUUMO (Sumo)" If it does not lead, If the real estate company TEL:0800-603-1421【通話料無料】携帯電話・PHSからもご利用いただけます 発信者番号は通知されません 「SUUMO(スーモ)を見た」と問い合わせください つながらない方、不動産会社の方は
|
Building coverage, floor area ratio 建ぺい率・容積率 | | Fifty percent ・ Hundred percent 50%・100% |
Time residents 入居時期 | | Consultation 相談 |
Land of the right form 土地の権利形態 | | Ownership 所有権 |
Structure and method of construction 構造・工法 | | Wooden 2-story 木造2階建 |
Use district 用途地域 | | One middle and high 1種中高 |
Overview and notices その他概要・特記事項 | | Contact: Motegi Hideaki, Facilities: Public Water Supply, This sewage, City gas, Building confirmation number: TKK 確済 No. 13-1136, Parking: car space 担当者:茂木 秀章、設備:公営水道、本下水、都市ガス、建築確認番号:TKK確済13-1136号、駐車場:カースペース |
Company profile 会社概要 | | <Mediation> Governor of Tokyo (5) No. 071012 (Corporation) All Japan Real Estate Association (Corporation) metropolitan area real estate Fair Trade Council member (Ltd.) living living 販本 shop Yubinbango167-0022 Suginami-ku, Tokyo Shimo Igusa 3-39-17 <仲介>東京都知事(5)第071012号(公社)全日本不動産協会会員 (公社)首都圏不動産公正取引協議会加盟(株)リビング住販本店〒167-0022 東京都杉並区下井草3-39-17 |