New Homes » Kanto » Tokyo » Nerima
 
| | Nerima-ku, Tokyo 東京都練馬区 |
| Tokyo Metro Yurakucho Line "Heiwadai" walk 9 minutes 東京メトロ有楽町線「平和台」歩9分 |
| LDK18 tatami mats or more, Siemens south road, Shaping land, Yang per good, Flat terrain, Pre-ground survey, 2 along the line more accessible, Facing south, System kitchen, Bathroom Dryer, Flat to the station, A quiet residential area, Barrier-free, LDK18畳以上、南側道路面す、整形地、陽当り良好、平坦地、地盤調査済、2沿線以上利用可、南向き、システムキッチン、浴室乾燥機、駅まで平坦、閑静な住宅地、バリアフリー、 |
Features pickup 特徴ピックアップ | | Pre-ground survey / 2 along the line more accessible / LDK18 tatami mats or more / Facing south / System kitchen / Bathroom Dryer / Yang per good / Flat to the station / Siemens south road / A quiet residential area / Shaping land / Barrier-free / Toilet 2 places / Bathroom 1 tsubo or more / 2-story / Water filter / City gas / Flat terrain 地盤調査済 /2沿線以上利用可 /LDK18畳以上 /南向き /システムキッチン /浴室乾燥機 /陽当り良好 /駅まで平坦 /南側道路面す /閑静な住宅地 /整形地 /バリアフリー /トイレ2ヶ所 /浴室1坪以上 /2階建 /浄水器 /都市ガス /平坦地 | Price 価格 | | 59,800,000 yen 5980万円 | Floor plan 間取り | | 4LDK 4LDK | Units sold 販売戸数 | | 1 units 1戸 | Total units 総戸数 | | 1 units 1戸 | Land area 土地面積 | | 95.07 sq m (measured) 95.07m2(実測) | Building area 建物面積 | | 95 sq m (measured) 95m2(実測) | Driveway burden-road 私道負担・道路 | | Nothing, South 4m width (contact the road width 8.3m) 無、南4m幅(接道幅8.3m) | Completion date 完成時期(築年月) | | March 2014 2014年3月 | Address 住所 | | Nerima-ku, Tokyo Kitamachi 7 東京都練馬区北町7 | Traffic 交通 | | Tokyo Metro Yurakucho Line "Heiwadai" walk 9 minutes Tokyo Metro Yurakucho Line "subway Akatsuka" walk 15 minutes Tobu Tojo Line "under Akatsuka" walk 16 minutes 東京メトロ有楽町線「平和台」歩9分 東京メトロ有楽町線「地下鉄赤塚」歩15分 東武東上線「下赤塚」歩16分
| Person in charge 担当者より | | Personnel Kohei Taniguchi Age: 30 Daigyokai experience: Customers are looking for a six-year real estate, one time, Not please visit us in our company. To organize together your condition, On the basis of the wealth of information, Let's First go to see the property. 担当者谷口浩平年齢:30代業界経験:6年不動産をお探しのお客様、一度、弊社にご来店下さいませ。一緒にご条件を整理し、豊富な情報をもとに、まずは物件を見に行きましょう。 | Contact お問い合せ先 | | TEL: 0800-603-3215 [Toll free] mobile phone ・ Also available from PHS Caller ID is not notified Please contact the "saw SUUMO (Sumo)" If it does not lead, If the real estate company TEL:0800-603-3215【通話料無料】携帯電話・PHSからもご利用いただけます 発信者番号は通知されません 「SUUMO(スーモ)を見た」と問い合わせください つながらない方、不動産会社の方は
| Building coverage, floor area ratio 建ぺい率・容積率 | | Fifty percent ・ Hundred percent 50%・100% | Time residents 入居時期 | | April 2014 schedule 2014年4月予定 | Land of the right form 土地の権利形態 | | Ownership 所有権 | Structure and method of construction 構造・工法 | | Wooden 2-story (framing method) 木造2階建(軸組工法) | Use district 用途地域 | | One low-rise 1種低層 | Other limitations その他制限事項 | | Regulations have by the Landscape Act, Quasi-fire zones, Shade limit Yes 景観法による規制有、準防火地域、日影制限有 | Overview and notices その他概要・特記事項 | | Contact: Kohei Taniguchi, Facilities: Public Water Supply, This sewage, City gas, Building confirmation number: No. 201310137, Parking: Garage 担当者:谷口浩平、設備:公営水道、本下水、都市ガス、建築確認番号:第201310137号、駐車場:車庫 | Company profile 会社概要 | | <Mediation> Governor of Tokyo (3) No. 081033 (Corporation) All Japan Real Estate Association (Corporation) metropolitan area real estate Fair Trade Council member fit House Twenty One (Ltd.) Yubinbango176-0023 Nerima-ku, Tokyo Nakamurakita 4-5-13 Aiwabiru third floor <仲介>東京都知事(3)第081033号(公社)全日本不動産協会会員 (公社)首都圏不動産公正取引協議会加盟フィットハウストゥエンティーワン(株)〒176-0023 東京都練馬区中村北4-5-13 アイワビル3階 |
Same specifications photos (appearance)同仕様写真(外観)  Same specifications
同仕様
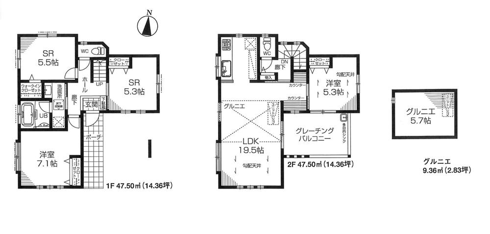
Floor plan間取り図  59,800,000 yen, 4LDK, Land area 95.07 sq m , Building area 95 sq m
5980万円、4LDK、土地面積95.07m2、建物面積95m2
Compartment figure区画図  59,800,000 yen, 4LDK, Land area 95.07 sq m , Building area 95 sq m
5980万円、4LDK、土地面積95.07m2、建物面積95m2
Local appearance photo現地外観写真  Local (12 May 2014) Shooting
現地(2014年12月)撮影
Primary school小学校  408m to Nerima Tatsukita-cho, Nishi Elementary School
練馬区立北町西小学校まで408m
Kindergarten ・ Nursery幼稚園・保育園  Saishoji Minori to nursery school 561m
最勝寺みのり保育園まで561m
Supermarketスーパー  Until Life Heiwadai shop 582m
ライフ平和台店まで582m
Location
|