New Homes » Kanto » Tokyo » Ota City
 
| | Ota-ku, Tokyo 東京都大田区 |
| Tokyu Ikegami Line "Ontakesan" walk 9 minutes 東急池上線「御嶽山」歩9分 |
| Location in close proximity to the cherry blossoms "Sakurazaka". The first kind low-rise exclusive residential area ・ 2-story ・ LDK20 quires more 桜の名所 “桜坂” に近接したロケーション。第一種低層住居専用地域・2階建・LDK20帖以上 |
Features pickup 特徴ピックアップ | | Pre-ground survey / Year Available / LDK20 tatami mats or more / System kitchen / Bathroom Dryer / Yang per good / A quiet residential area / Around traffic fewer / Or more before road 6m / Shaping land / Bathroom 1 tsubo or more / 2-story / Double-glazing / Leafy residential area / Ventilation good / All living room flooring / Good view / City gas / Located on a hill / roof balcony / Flat terrain / Floor heating 地盤調査済 /年内入居可 /LDK20畳以上 /システムキッチン /浴室乾燥機 /陽当り良好 /閑静な住宅地 /周辺交通量少なめ /前道6m以上 /整形地 /浴室1坪以上 /2階建 /複層ガラス /緑豊かな住宅地 /通風良好 /全居室フローリング /眺望良好 /都市ガス /高台に立地 /ルーフバルコニー /平坦地 /床暖房 | Price 価格 | | 75,800,000 yen ~ 95,800,000 yen 7580万円 ~ 9580万円 | Floor plan 間取り | | 3LDK ~ 4LDK 3LDK ~ 4LDK | Units sold 販売戸数 | | 2 units 2戸 | Land area 土地面積 | | 114.9 sq m ~ 120.33 sq m (measured) 114.9m2 ~ 120.33m2(実測) | Building area 建物面積 | | 101.32 sq m ~ 119.03 sq m (measured) 101.32m2 ~ 119.03m2(実測) | Driveway burden-road 私道負担・道路 | | Road width: 7m, Asphaltic pavement 道路幅:7m、アスファルト舗装 | Completion date 完成時期(築年月) | | September 2013 2013年9月 | Address 住所 | | Ota-ku, Tokyo Den'enchofuhon cho 東京都大田区田園調布本町 | Traffic 交通 | | Tokyu Ikegami Line "Ontakesan" walk 9 minutes Tamagawa Tokyu "Numabe" walk 7 minutes 東急池上線「御嶽山」歩9分 東急多摩川線「沼部」歩7分
| Related links 関連リンク | | [Related Sites of this company] 【この会社の関連サイト】 | Person in charge 担当者より | | Person in charge of real-estate and building FP mature trees Kensuke Age: 30s residential design ・ Building Produce ・ Since it has been loaded with real estate brokerage and experience, Over all from the land purchase until the construction is finished, Please let me support. 担当者宅建FP成木 健介年齢:30代住宅設計・建築プロデュース・不動産仲介と経験を積んできましたので、土地購入から建築が終わるまでの全てに渡り、サポートさせて頂きます。 | Contact お問い合せ先 | | TEL: 0800-603-7091 [Toll free] mobile phone ・ Also available from PHS Caller ID is not notified Please contact the "saw SUUMO (Sumo)" If it does not lead, If the real estate company TEL:0800-603-7091【通話料無料】携帯電話・PHSからもご利用いただけます 発信者番号は通知されません 「SUUMO(スーモ)を見た」と問い合わせください つながらない方、不動産会社の方は
| Building coverage, floor area ratio 建ぺい率・容積率 | | Kenpei rate: 50%, Volume ratio: 100% 建ペい率:50%、容積率:100% | Land of the right form 土地の権利形態 | | Ownership 所有権 | Use district 用途地域 | | One low-rise 1種低層 | Land category 地目 | | Residential land 宅地 | Overview and notices その他概要・特記事項 | | Contact Person: mature trees Kensuke 担当者:成木 健介 | Company profile 会社概要 | | <Mediation> Governor of Tokyo (2) No. 086581 (Ltd.) ad cast Yubinbango150-0022 Shibuya-ku, Tokyo Ebisuminami 1-25-1 <仲介>東京都知事(2)第086581号(株)アドキャスト〒150-0022 東京都渋谷区恵比寿南1-25-1 |
Local appearance photo現地外観写真  Local (11 May 2013) Shooting
現地(2013年11月)撮影
Otherその他  D Building Floor plan
D号棟 間取図
Livingリビング  Local (11 May 2013) Shooting
現地(2013年11月)撮影
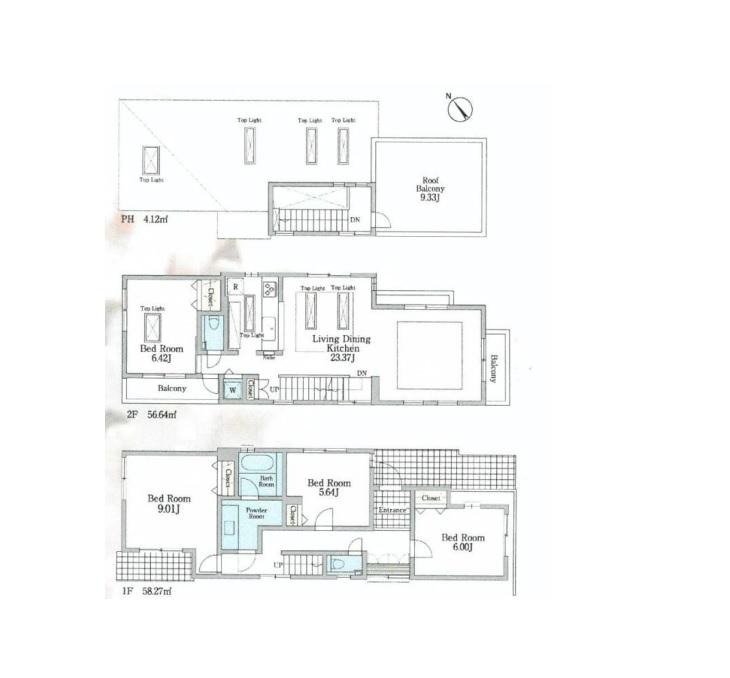
Floor plan間取り図  (D Building), Price 95,800,000 yen, 4LDK, Land area 120.33 sq m , Building area 119.03 sq m
(D号棟)、価格9580万円、4LDK、土地面積120.33m2、建物面積119.03m2
Bathroom浴室  Indoor (11 May 2013) Shooting
室内(2013年11月)撮影
Kitchenキッチン  Indoor (11 May 2013) Shooting
室内(2013年11月)撮影
Non-living roomリビング以外の居室  Indoor (11 May 2013) Shooting
室内(2013年11月)撮影
Wash basin, toilet洗面台・洗面所  View from the site (November 2013) Shooting
現地からの眺望(2013年11月)撮影
Balconyバルコニー  Local (11 May 2013) Shooting
現地(2013年11月)撮影
Streets around周辺の街並み  Until Sakurazaka 100m
桜坂まで100m
View photos from the dwelling unit住戸からの眺望写真  View from the site (November 2013) Shooting
現地からの眺望(2013年11月)撮影
Floor plan間取り図  (C Building), Price 75,800,000 yen, 3LDK, Land area 114.9 sq m , Building area 101.32 sq m
(C号棟)、価格7580万円、3LDK、土地面積114.9m2、建物面積101.32m2
Wash basin, toilet洗面台・洗面所  Indoor (11 May 2013) Shooting
室内(2013年11月)撮影
Primary school小学校  Municipal Higashi Chofu to elementary school 320m
区立東調布小学校まで320m
Station駅  Tokyu Ikegami Line "Ontakesan" 700m to the station
東急池上線「御嶽山」駅まで700m
Supermarketスーパー  700m until ion Ontakesan Ekimae
イオン御嶽山駅前店まで700m
Location
|