|
|
Ota-ku, Tokyo
東京都大田区
|
|
Tamagawa Tokyu "Numabe" walk 7 minutes
東急多摩川線「沼部」歩7分
|
|
System Kitchen dishwasher floor heating bathroom dryer water purifier W closet each room storage space a quiet residential area
システムキッチン 食器洗機 床暖房 浴室乾燥機 浄水器 Wクローゼット 各室収納スペース 閑静な住宅街
|
|
Property Documentation ・ Please do not hesitate to contact us if the local visit of hope
物件資料・現地ご見学希望の方はお気軽にお問い合わせしてください
|
Features pickup 特徴ピックアップ | | Corresponding to the flat-35S / 2 along the line more accessible / LDK20 tatami mats or more / System kitchen / Bathroom Dryer / All room storage / A quiet residential area / Or more before road 6m / All living room flooring / Dish washing dryer / Walk-in closet / All room 6 tatami mats or more / Floor heating フラット35Sに対応 /2沿線以上利用可 /LDK20畳以上 /システムキッチン /浴室乾燥機 /全居室収納 /閑静な住宅地 /前道6m以上 /全居室フローリング /食器洗乾燥機 /ウォークインクロゼット /全居室6畳以上 /床暖房 |
Price 価格 | | 75,800,000 yen 7580万円 |
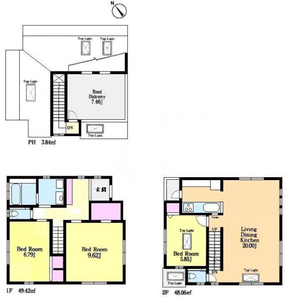
Floor plan 間取り | | 3LDK 3LDK |
Units sold 販売戸数 | | 1 units 1戸 |
Total units 総戸数 | | 4 units 4戸 |
Land area 土地面積 | | 114.9 sq m (registration) 114.9m2(登記) |
Building area 建物面積 | | 101.32 sq m (registration) 101.32m2(登記) |
Driveway burden-road 私道負担・道路 | | Nothing, Southeast 7m width 無、南東7m幅 |
Completion date 完成時期(築年月) | | September 2013 2013年9月 |
Address 住所 | | Ota-ku, Tokyo Den'enchofuhon cho 東京都大田区田園調布本町 |
Traffic 交通 | | Tamagawa Tokyu "Numabe" walk 7 minutes Tokyu Ikegami Line "Ontakesan" walk 9 minutes 東急多摩川線「沼部」歩7分 東急池上線「御嶽山」歩9分
|
Related links 関連リンク | | [Related Sites of this company] 【この会社の関連サイト】 |
Person in charge 担当者より | | Rep Aoki Kuni維 Age: 30 Daigyokai experience: let me strive cordial to get used to you the power of looking five years you live. 担当者青木 國維年齢:30代業界経験:5年お住まい探しのお力になれるように誠心誠意努めさせて頂きます。 |
Contact お問い合せ先 | | TEL: 0800-603-0560 [Toll free] mobile phone ・ Also available from PHS Caller ID is not notified Please contact the "saw SUUMO (Sumo)" If it does not lead, If the real estate company TEL:0800-603-0560【通話料無料】携帯電話・PHSからもご利用いただけます 発信者番号は通知されません 「SUUMO(スーモ)を見た」と問い合わせください つながらない方、不動産会社の方は
|
Building coverage, floor area ratio 建ぺい率・容積率 | | Fifty percent ・ Hundred percent 50%・100% |
Time residents 入居時期 | | Immediate available 即入居可 |
Land of the right form 土地の権利形態 | | Ownership 所有権 |
Structure and method of construction 構造・工法 | | Wooden 2-story 木造2階建 |
Use district 用途地域 | | One low-rise 1種低層 |
Overview and notices その他概要・特記事項 | | Contact: Aoki Kuni維, Facilities: Public Water Supply, This sewage, City gas, Parking: car space 担当者:青木 國維、設備:公営水道、本下水、都市ガス、駐車場:カースペース |
Company profile 会社概要 | | <Mediation> Minister of Land, Infrastructure and Transport (3) No. 006,185 (one company) National Housing Industry Association (Corporation) metropolitan area real estate Fair Trade Council member Asahi housing (stock) new downtown shop 160-0023 Tokyo Nishi-Shinjuku, Shinjuku-ku, 1-19-6 Shinjuku Yamate building 7th floor <仲介>国土交通大臣(3)第006185号(一社)全国住宅産業協会会員 (公社)首都圏不動産公正取引協議会加盟朝日住宅(株)新都心店〒160-0023 東京都新宿区西新宿1-19-6 山手新宿ビル7階 |