New Homes » Kanto » Tokyo » Ota City
 
| | Ota-ku, Tokyo 東京都大田区 |
| Keikyu main line "Umeyashiki" walk 16 minutes 京急本線「梅屋敷」歩16分 |
| Front road 8m, There is a sense of openness is positive per good location. Minute walk 3 to supercomputers, "Life", I'm happy living environment for day-to-day shopping 前面道路8m、開放感があり陽当り良好な立地です。スーパー「ライフ」まで徒歩3分と、日々のお買い物に嬉しい住環境です |
| 2 along the line more accessible, Super close, Or more before road 6m, City gas, Corresponding to the flat-35S, System kitchen, Bathroom Dryer, All room storage, LDK15 tatami mats or more, Washbasin with shower, Face-to-face kitchen, Toilet 2 places, Warm water washing toilet seat, The window in the bathroom, TV monitor interphone, Dish washing dryer, All room 6 tatami mats or more, Water filter, Attic storage 2沿線以上利用可、スーパーが近い、前道6m以上、都市ガス、フラット35Sに対応、システムキッチン、浴室乾燥機、全居室収納、LDK15畳以上、シャワー付洗面台、対面式キッチン、トイレ2ヶ所、温水洗浄便座、浴室に窓、TVモニタ付インターホン、食器洗乾燥機、全居室6畳以上、浄水器、屋根裏収納 |
Features pickup 特徴ピックアップ | | Corresponding to the flat-35S / 2 along the line more accessible / Super close / System kitchen / Bathroom Dryer / All room storage / LDK15 tatami mats or more / Or more before road 6m / Washbasin with shower / Face-to-face kitchen / Toilet 2 places / Warm water washing toilet seat / The window in the bathroom / TV monitor interphone / Dish washing dryer / All room 6 tatami mats or more / Water filter / City gas / Attic storage フラット35Sに対応 /2沿線以上利用可 /スーパーが近い /システムキッチン /浴室乾燥機 /全居室収納 /LDK15畳以上 /前道6m以上 /シャワー付洗面台 /対面式キッチン /トイレ2ヶ所 /温水洗浄便座 /浴室に窓 /TVモニタ付インターホン /食器洗乾燥機 /全居室6畳以上 /浄水器 /都市ガス /屋根裏収納 | Property name 物件名 | | [Grace Wood Blanche] 4LDK dated attic storage Omori 3 (Umeyashiki Station) 47,800,000 yen 【グレイスウッドブランシェ】小屋裏収納付の4LDK 大森南3(梅屋敷駅) 4780万円 | Price 価格 | | 47,800,000 yen 4780万円 | Floor plan 間取り | | 3LDK + S (storeroom) 3LDK+S(納戸) | Units sold 販売戸数 | | 1 units 1戸 | Total units 総戸数 | | 1 units 1戸 | Land area 土地面積 | | 60.27 sq m (measured) 60.27m2(実測) | Building area 建物面積 | | 118.29 sq m (measured), Among the first floor garage 13.52 sq m 118.29m2(実測)、うち1階車庫13.52m2 | Driveway burden-road 私道負担・道路 | | Nothing, West 8.1m width 無、西8.1m幅 | Completion date 完成時期(築年月) | | March 2014 2014年3月 | Address 住所 | | Ota-ku, Tokyo Omori 3 東京都大田区大森南3 | Traffic 交通 | | Keikyu main line "Umeyashiki" walk 16 minutes Tokyo Monorail "Showajima" walk 18 minutes JR Keihin Tohoku Line "Kamata" 12 minutes before the Urafu 2 minutes by bus 京急本線「梅屋敷」歩16分 東京モノレール「昭和島」歩18分 JR京浜東北線「蒲田」バス12分前の浦歩2分
| Related links 関連リンク | | [Related Sites of this company] 【この会社の関連サイト】 | Person in charge 担当者より | | Responsible Shataku Kenichi will correspond age in the team for the people of our customers: 30 Daigyokai experience: For one of the customers in the 11 years our company, Sales staff ・ team leader ・ Contract Division ・ Constitute a team of four people at the lowest loan Division, Each making full use of professional knowledge, In order to do our best to meet the needs of our customers 担当者宅建一人のお客様に対してチームで対応致します年齢:30代業界経験:11年当社では一人のお客様に対し、営業スタッフ・チームリーダー・契約課・ローン課の最低でも4名によるチームを構成し、それぞれプロフェッショナルな知識を駆使し、お客様のご要望にお応えすべく全力を尽くします | Contact お問い合せ先 | | TEL: 0800-603-1505 [Toll free] mobile phone ・ Also available from PHS Caller ID is not notified Please contact the "saw SUUMO (Sumo)" If it does not lead, If the real estate company TEL:0800-603-1505【通話料無料】携帯電話・PHSからもご利用いただけます 発信者番号は通知されません 「SUUMO(スーモ)を見た」と問い合わせください つながらない方、不動産会社の方は
| Building coverage, floor area ratio 建ぺい率・容積率 | | 80% ・ 300% 80%・300% | Time residents 入居時期 | | March 2014 schedule 2014年3月予定 | Land of the right form 土地の権利形態 | | Ownership 所有権 | Structure and method of construction 構造・工法 | | Wooden three-story 木造3階建 | Use district 用途地域 | | Residential 近隣商業 | Other limitations その他制限事項 | | Height district, Quasi-fire zones 高度地区、準防火地域 | Overview and notices その他概要・特記事項 | | Contact: we will correspond team against one of the customers, Facilities: Public Water Supply, This sewage, City gas, Building confirmation number: No. H25A-JK.eX01007-01, Parking: Garage 担当者:一人のお客様に対してチームで対応致します、設備:公営水道、本下水、都市ガス、建築確認番号:第H25A-JK.eX01007-01号、駐車場:車庫 | Company profile 会社概要 | | <Mediation> Minister of Land, Infrastructure and Transport (2) No. 007124 (Corporation) All Japan Real Estate Association (Corporation) metropolitan area real estate Fair Trade Council member (Ltd.) living life Kamata branch Yubinbango144-0051 Ota-ku, Tokyo Nishikamata 8-11-11 <仲介>国土交通大臣(2)第007124号(公社)全日本不動産協会会員 (公社)首都圏不動産公正取引協議会加盟(株)リビングライフ蒲田支店〒144-0051 東京都大田区西蒲田8-11-11 |
Exhibition hall / Showroom展示場/ショウルーム  showroom
ショールーム
Rendering (appearance)完成予想図(外観)  Exterior Perth
外観完成予想パース
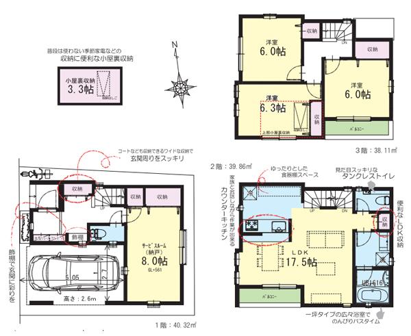
Floor plan間取り図  47,800,000 yen, 3LDK + S (storeroom), Land area 60.27 sq m , Building area 118.29 sq m
4780万円、3LDK+S(納戸)、土地面積60.27m2、建物面積118.29m2
Compartment figure区画図  47,800,000 yen, 3LDK + S (storeroom), Land area 60.27 sq m , Building area 118.29 sq m west 8.18m public road surface, It is the location that can be out of the peace of mind to your car.
4780万円、3LDK+S(納戸)、土地面積60.27m2、建物面積118.29m2 西8.18m公道面、安心してお車の出し入れが出来る立地です。
Primary school小学校  Ota 300m to stand Omori fourth elementary school
大田区立大森第四小学校まで300m
Supermarketスーパー  Until Life Omori shop 240m
ライフ大森南店まで240m
Kindergarten ・ Nursery幼稚園・保育園  230m forest until Saki nursery
森が崎保育園まで230m
Library図書館  80m to Ota Ward Omori Library
大田区立大森南図書館まで80m
Hospital病院  340m until the new Keihin hospital
新京浜病院まで340m
Park公園  1170m to the beach park of Omori Furusato
大森ふるさとの浜辺公園まで1170m
Location
|