|
|
Ota-ku, Tokyo
東京都大田区
|
|
Tokyu Ikegami Line "Hasunuma" walk 5 minutes
東急池上線「蓮沼」歩5分
|
|
Contact road public road Corner lot Nishikamata nursery school about 450m Onazuka elementary school about 870m Hasunuma junior high school about 450m
接道公道 角地 西蒲田保育園約450m おなづか小学校約870m 蓮沼中学校約450m
|
|
Including 11.75 square meters car space in the building area
建物面積にカースペース11.75平米含む
|
Features pickup 特徴ピックアップ | | System kitchen / Or more before road 6m / Toilet 2 places / Three-story or more システムキッチン /前道6m以上 /トイレ2ヶ所 /3階建以上 |
Price 価格 | | 49,800,000 yen 4980万円 |
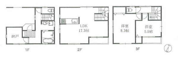
Floor plan 間取り | | 2LDK + S (storeroom) 2LDK+S(納戸) |
Units sold 販売戸数 | | 1 units 1戸 |
Land area 土地面積 | | 48.29 sq m (measured) 48.29m2(実測) |
Building area 建物面積 | | 95.37 sq m (measured) 95.37m2(実測) |
Driveway burden-road 私道負担・道路 | | Nothing, West 8.2m width, North 5m width 無、西8.2m幅、北5m幅 |
Completion date 完成時期(築年月) | | December 2013 2013年12月 |
Address 住所 | | Ota-ku, Tokyo Nishikamata 3 東京都大田区西蒲田3 |
Traffic 交通 | | Tokyu Ikegami Line "Hasunuma" walk 5 minutes 東急池上線「蓮沼」歩5分
|
Related links 関連リンク | | [Related Sites of this company] 【この会社の関連サイト】 |
Person in charge 担当者より | | Rep Nakayama Mitsutoshi industry experience: is the sincerity of that in mind from 10 years my daily life. I want to be a good guide to you live for our customers. 担当者仲山 充敏業界経験:10年常日頃から心がけているのは誠実さです。お客様にとってお住まいへの良き案内人でありたいです。 |
Contact お問い合せ先 | | TEL: 0800-603-1869 [Toll free] mobile phone ・ Also available from PHS Caller ID is not notified Please contact the "saw SUUMO (Sumo)" If it does not lead, If the real estate company TEL:0800-603-1869【通話料無料】携帯電話・PHSからもご利用いただけます 発信者番号は通知されません 「SUUMO(スーモ)を見た」と問い合わせください つながらない方、不動産会社の方は
|
Building coverage, floor area ratio 建ぺい率・容積率 | | 70% ・ 200% 70%・200% |
Time residents 入居時期 | | Consultation 相談 |
Land of the right form 土地の権利形態 | | Ownership 所有権 |
Structure and method of construction 構造・工法 | | Wooden three-story 木造3階建 |
Use district 用途地域 | | One dwelling 1種住居 |
Overview and notices その他概要・特記事項 | | Contact: Nakayama Mitsutoshi, Building confirmation number: No. 12T Ken 00408 担当者:仲山 充敏、建築確認番号:第12T建00408号 |
Company profile 会社概要 | | <Mediation> Governor of Tokyo (5) No. 060733 (Corporation) All Japan Real Estate Association (Corporation) metropolitan area real estate Fair Trade Council member Century 21 (Ltd.) Tokio run Dix Yubinbango144-0051 Ota-ku, Tokyo Nishikamata 7-18-4 <仲介>東京都知事(5)第060733号(公社)全日本不動産協会会員 (公社)首都圏不動産公正取引協議会加盟センチュリー21(株)トキオランディックス〒144-0051 東京都大田区西蒲田7-18-4 |