New Homes » Kanto » Tokyo » Ota City


Ota-ku, Tokyo
Keikyu main line "Umeyashiki" walk 10 minutes
◆ On television CM there a familiar "Century 21" * pick you up in the guidance possible * Prius ◆ (800-246-8357) Contact, Feel free to 0120-878-011
■ Payment example of mortgage monthly 142,810 yen ■ * Partner banks: Interest rate 0.775% (change) * Down payment of 1 million yen: borrowing 5,080 yen * 35 years: no bonus * There are additional expenses ※ Interest rates, Your borrowing contents of your Ya It depends on the examination results ※ ━ ◆ Free FP simulation Consultation carried out in! ◆ ━ Why do not you "visualize" the vague anxiety? ・ Carefree is rent ・ ・ ・ ? ・ From accumulating your down payment ・ ・ ・ ? ・ What 10-year bonus? Life largest shopping is not a "house". ◎ will tell the wisdom of confidential ◎ ◆ ━ ◇ ━ ◇ ━ ◆ ━ ◇ ◆ ◆ ◇ ━ ◆ ━ ◇ ━ ◇ ━ ◆
Features pickup
Super close / System kitchen / Washbasin with shower / Toilet 2 places / Warm water washing toilet seat / TV monitor interphone / All living room flooring / Three-story or more / Living stairs / City gas
Price
51,800,000 yen
Floor plan
6LDK
Units sold
1 units
Total units
1 units
Land area
69.73 sq m (21.09 square meters)
Building area
112.98 sq m (34.17 square meters), Among the first floor garage 9.45 sq m
Driveway burden-road
Nothing, Southwest 5.4m width
Completion date
April 2014
Address
Ota-ku, Tokyo Kitakojiya 2
Traffic
Keikyu main line "Umeyashiki" walk 10 minutes
Keikyu main line "Keikyukamata" walk 11 minutes
Keikyu Airport Line "Kojiya" walk 14 minutes
Related links
[Related Sites of this company]
Person in charge
Person in charge of real-estate and building FP is a staff Century 21 Premium Life. Please feel free to contact us anything if it is a thing of real estate. The floor plan will deliver the thrill that does not ride.
Contact
TEL: 0120-878011 [Toll free] Please contact the "saw SUUMO (Sumo)"
Building coverage, floor area ratio
60% ・ 200%
Time residents
April 2014 schedule
Land of the right form
Ownership
Structure and method of construction
Wooden three-story
Overview and notices
Contact: staff, Facilities: Public Water Supply, This sewage, City gas, Building confirmation number: No. 13UDI2S Ken 02307, Parking: Garage
Company profile
<Mediation> Governor of Tokyo (2) the first 089,712 No. Century 21 (Ltd.) Premium Life Yubinbango108-0014 Shiba, Minato-ku, Tokyo 4-11-1 TB Tamachi Building fourth floor


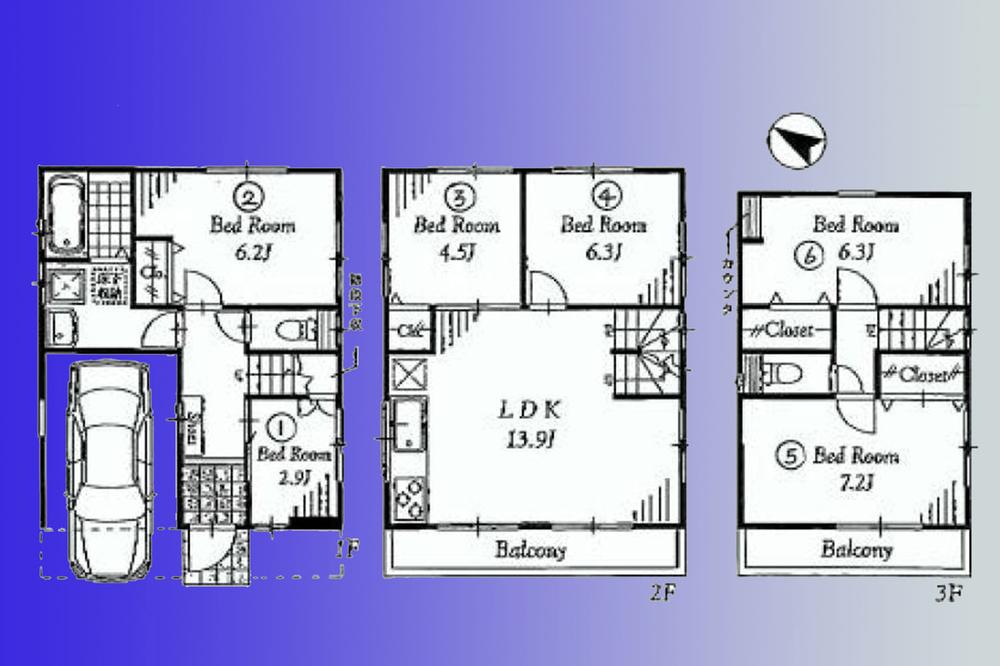
Floor plan

Floor plan. 51,800,000 yen, 6LDK, Land area 69.73 sq m , Recommended for building area 112.98 sq m large family! Large 6LDK appearance! !
51,800,000 yen, 6LDK, Land area 69.73 sq m , Recommended for building area 112.98 sq m large family! Large 6LDK appearance! !

Other

Other.  [Umeyashiki Station] Walk available in about 10 minutes
[Umeyashiki Station] Walk available in about 10 minutes

Other.  [Keikyukamata Station] Walk available in about 11 minutes
[Keikyukamata Station] Walk available in about 11 minutes

Present

Present. December 2012 or later !! started your limited !! customers preferential treatment services "PREMIUMLIFE CLUB" I received ourselves and our dealings ● special preferential service contents ● ◆ Utilization NO.1! Money accommodation is about 2000 places!  ◆ Play spot nationwide about 100 locations in the membership discount!  ◆ Good for travel to all over the world in the member preferential price!  ◆ A day spa and spa across the country about 50 locations in the membership discount!  ◆ Nationwide babysitting services in the member preferential price!
December 2012 or later !! started your limited !! customers preferential treatment services "PREMIUMLIFE CLUB" I received ourselves and our dealings ● special preferential service contents ● ◆ Utilization NO.1! Money accommodation is about 2000 places! ◆ Play spot nationwide about 100 locations in the membership discount! ◆ Good for travel to all over the world in the member preferential price! ◆ A day spa and spa across the country about 50 locations in the membership discount! ◆ Nationwide babysitting services in the member preferential price!



Location