New Homes » Kanto » Tokyo » Ota City
 
| | Ota-ku, Tokyo 東京都大田区 |
| Tamagawa Tokyu "Musashi Nitta" walk 5 minutes 東急多摩川線「武蔵新田」歩5分 |
| Tamagawa Tokyu "Musashi Nitta" station walk 5 minutes, Bright location facing the southeast side 6.55m public road! small ・ Junior high school and park, Super is the living environment surrounding environment was also enhanced, such as. 東急多摩川線「武蔵新田」駅徒歩5分、南東側6.55m公道に面した明るい立地です!小・中学校や公園、スーパーなど周辺環境も充実した住環境です。 |
| 2 along the line more accessible, Or more before road 6m, City gas, Vibration Control ・ Seismic isolation ・ Earthquake resistant, Energy-saving water heaters, System kitchen, Bathroom Dryer, Washbasin with shower, Face-to-face kitchen, Southeast direction, Warm water washing toilet seat, The window in the bathroom, TV monitor interphone, Dish washing dryer, Water filter, 24-hour ventilation system, Super close 2沿線以上利用可、前道6m以上、都市ガス、制震・免震・耐震、省エネ給湯器、システムキッチン、浴室乾燥機、シャワー付洗面台、対面式キッチン、東南向き、温水洗浄便座、浴室に窓、TVモニタ付インターホン、食器洗乾燥機、浄水器、24時間換気システム、スーパーが近い |
Features pickup 特徴ピックアップ | | Vibration Control ・ Seismic isolation ・ Earthquake resistant / 2 along the line more accessible / Energy-saving water heaters / Super close / System kitchen / Bathroom Dryer / Or more before road 6m / Washbasin with shower / Face-to-face kitchen / Southeast direction / Warm water washing toilet seat / The window in the bathroom / TV monitor interphone / Dish washing dryer / Water filter / City gas 制震・免震・耐震 /2沿線以上利用可 /省エネ給湯器 /スーパーが近い /システムキッチン /浴室乾燥機 /前道6m以上 /シャワー付洗面台 /対面式キッチン /東南向き /温水洗浄便座 /浴室に窓 /TVモニタ付インターホン /食器洗乾燥機 /浄水器 /都市ガス | Property name 物件名 | | Bright southeast 6.55m public road surface, Housing that spacious use the room with attic storage. 明るい南東6.55m公道面、小屋裏収納付きでお部屋を広々と使える住まい。 | Price 価格 | | 40,800,000 yen 4080万円 | Floor plan 間取り | | 1LDK + 2S (storeroom) 1LDK+2S(納戸) | Units sold 販売戸数 | | 1 units 1戸 | Total units 総戸数 | | 1 units 1戸 | Land area 土地面積 | | 42.69 sq m (measured) 42.69m2(実測) | Building area 建物面積 | | 76.11 sq m (measured), Among the first floor garage 11.08 sq m 76.11m2(実測)、うち1階車庫11.08m2 | Driveway burden-road 私道負担・道路 | | Nothing, Southeast 6.5m width 無、南東6.5m幅 | Completion date 完成時期(築年月) | | April 2014 2014年4月 | Address 住所 | | Ota-ku, Tokyo Shimomaruko 1 東京都大田区下丸子1 | Traffic 交通 | | Tamagawa Tokyu "Musashi Nitta" walk 5 minutes Tamagawa Tokyu "Shimomaruko" walk 9 minutes Tokyu Ikegami Line "Chidoricho" walk 13 minutes 東急多摩川線「武蔵新田」歩5分 東急多摩川線「下丸子」歩9分 東急池上線「千鳥町」歩13分
| Related links 関連リンク | | [Related Sites of this company] 【この会社の関連サイト】 | Person in charge 担当者より | | Responsible Shataku Kenichi will correspond age in the team for the people of our customers: 30 Daigyokai experience: For one of the customers in the 11 years our company, Sales staff ・ team leader ・ Contract Division ・ Constitute a team of four people at the lowest loan Division, Each making full use of professional knowledge, In order to do our best to meet the needs of our customers 担当者宅建一人のお客様に対してチームで対応致します年齢:30代業界経験:11年当社では一人のお客様に対し、営業スタッフ・チームリーダー・契約課・ローン課の最低でも4名によるチームを構成し、それぞれプロフェッショナルな知識を駆使し、お客様のご要望にお応えすべく全力を尽くします | Contact お問い合せ先 | | TEL: 0800-603-1505 [Toll free] mobile phone ・ Also available from PHS Caller ID is not notified Please contact the "saw SUUMO (Sumo)" If it does not lead, If the real estate company TEL:0800-603-1505【通話料無料】携帯電話・PHSからもご利用いただけます 発信者番号は通知されません 「SUUMO(スーモ)を見た」と問い合わせください つながらない方、不動産会社の方は
| Building coverage, floor area ratio 建ぺい率・容積率 | | 60% ・ 200% 60%・200% | Time residents 入居時期 | | April 2014 schedule 2014年4月予定 | Land of the right form 土地の権利形態 | | Ownership 所有権 | Structure and method of construction 構造・工法 | | Wooden three-story 木造3階建 | Use district 用途地域 | | One dwelling 1種住居 | Other limitations その他制限事項 | | Height district, Quasi-fire zones 高度地区、準防火地域 | Overview and notices その他概要・特記事項 | | Contact: we will correspond team against one of the customers, Facilities: Public Water Supply, This sewage, City gas, Building confirmation number: No. H25A-JK.eX01378-01 担当者:一人のお客様に対してチームで対応致します、設備:公営水道、本下水、都市ガス、建築確認番号:第H25A-JK.eX01378-01号 | Company profile 会社概要 | | <Mediation> Minister of Land, Infrastructure and Transport (2) No. 007124 (Corporation) All Japan Real Estate Association (Corporation) metropolitan area real estate Fair Trade Council member (Ltd.) living life Kamata branch Yubinbango144-0051 Ota-ku, Tokyo Nishikamata 8-11-11 <仲介>国土交通大臣(2)第007124号(公社)全日本不動産協会会員 (公社)首都圏不動産公正取引協議会加盟(株)リビングライフ蒲田支店〒144-0051 東京都大田区西蒲田8-11-11 |
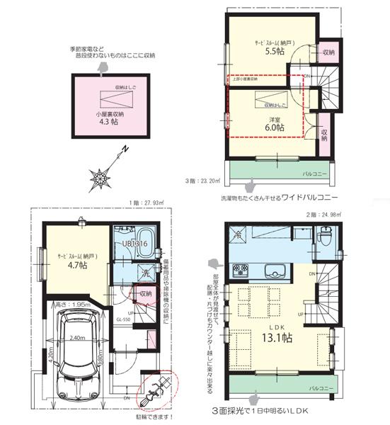
Floor plan間取り図  40,800,000 yen, 1LDK + 2S (storeroom), Land area 42.69 sq m , With attic storage of building area 76.11 sq m 4.3 Pledge, It can be stored, such as home appliances seasonal, You can use a wide room.
4080万円、1LDK+2S(納戸)、土地面積42.69m2、建物面積76.11m2 4.3帖の小屋裏収納付きで、季節ものの家電などを収納でき、お部屋を広く使えます。
Compartment figure区画図  40,800,000 yen, 1LDK + 2S (storeroom), Land area 42.69 sq m , Bright location facing the building area 76.11 sq m southeast side 6.55m road
4080万円、1LDK+2S(納戸)、土地面積42.69m2、建物面積76.11m2 南東側6.55m道路に面した明るい立地
Primary school小学校  Ota Ward Yaguchi to Nishi Elementary School 280m
大田区立矢口西小学校まで280m
Junior high school中学校  420m to Ota Ward Yaguchi Junior High School
大田区立矢口中学校まで420m
Kindergarten ・ Nursery幼稚園・保育園  Maruko 430m to kindergarten
丸子幼稚園まで430m
Library図書館  130m to Ota Ward Shimomaruko Library
大田区立下丸子図書館まで130m
Park公園  900m until Shimomaruko park
下丸子公園まで900m
Supermarketスーパー  710m until Seiyu Shimomaruko shop
西友下丸子店まで710m
 900m until the Summit store Daejeon Chidoricho shop
サミットストア大田千鳥町店まで900m
 Maruetsu 340m until Nitta shop
マルエツ新田店まで340m
Shopping centreショッピングセンター  1100m until the Olympic Shimomaruko shop
オリンピック下丸子店まで1100m
Location
|