New Homes » Kanto » Tokyo » Ota City
 
| | Ota-ku, Tokyo 東京都大田区 |
| Keikyu Airport Line "torii" walk 15 minutes 京急空港線「大鳥居」歩15分 |
| [Major sense of security! ] [Century 21 Professional net City] Copula. New Property ・ Stocks many information to become a non-public property care. Whether Please feel free to contact us. 【大手の安心感!】【センチュリー21 プロネットシティ】 でございます。新物件・未公開物件 気になる情報を多数取り揃えております。どうかお気軽にお問合せ下さい。 |
| ◆ Housing loan ・ Assembly of funds and budget plans, etc., Available upon consultation by expert staff. ◆ Tokyo's 23 wards It is also available corresponding limit property. ◆ Your conditions applicable Listing to efficiently speedy All will guide. Including 14.46 square meters built-in garage area to the building area, All one building, Idasangyo construction, 3LDK + built-in garage, Construction housing performance with evaluation, Design house performance with evaluation, Corresponding to the flat-35S, 2 along the line more accessible, Energy-saving water heaters, Facing south, System kitchen, Yang per good, All room storage, Siemens south road, Washbasin with shower, Face-to-face kitchen, 3 face lighting, Toilet 2 places, South balcony, Warm water washing toilet seat, Underfloor Storage, The window in the bathroom, TV monitor interphone ◆住宅ローン・資金やご予算の組み立て計画等、専門スタッフによりご相談承ります。◆東京23区 対応する限定物件も取り揃えております。◆ご条件該当物件を効率よくスピーディに 全てご案内致します。建物面積にビルトイン車庫面積14.46平米含む、全1棟、飯田産業施工、3LDK+ビルトイン車庫、建設住宅性能評価付、設計住宅性能評価付、フラット35Sに対応、2沿線以上利用可、省エネ給湯器、南向き、システムキッチン、陽当り良好、全居室収納、南側道路面す、シャワー付洗面台、対面式キッチン、3面採光、トイレ2ヶ所、南面バルコニー、温水洗浄便座、床下収納、浴室に窓、TVモニタ付インターホン |
Features pickup 特徴ピックアップ | | Construction housing performance with evaluation / Design house performance with evaluation / Corresponding to the flat-35S / 2 along the line more accessible / Energy-saving water heaters / Facing south / System kitchen / Yang per good / All room storage / Siemens south road / Washbasin with shower / Face-to-face kitchen / 3 face lighting / Toilet 2 places / South balcony / Warm water washing toilet seat / Underfloor Storage / The window in the bathroom / TV monitor interphone / Walk-in closet / Three-story or more 建設住宅性能評価付 /設計住宅性能評価付 /フラット35Sに対応 /2沿線以上利用可 /省エネ給湯器 /南向き /システムキッチン /陽当り良好 /全居室収納 /南側道路面す /シャワー付洗面台 /対面式キッチン /3面採光 /トイレ2ヶ所 /南面バルコニー /温水洗浄便座 /床下収納 /浴室に窓 /TVモニタ付インターホン /ウォークインクロゼット /3階建以上 | Event information イベント情報 | | Local guide Board (Please be sure to ask in advance) schedule / During the public time / 9:30 ~ 21:00 ◆ Please tell us you're looking for your condition ◆ On the review of the property to be appropriate for your condition you are looking for I heard, We will send you all. ◆ Mortgage and financial planning, Such as a tax on real estate ◆ Reasonable suggestions to suit your, And we will carry out appropriate advice. ◆ Local of your tour ・ Your description ◆ Property corresponding to the property and your conditions to be worried about, Also the comparison can you property in the vicinity of efficiently speedy All will guide. Unfinished newly built properties, If you are looking for in the land it will be an appropriate description in the example of construction. Looking for house ・ Regard to a variety of questions, We have held a "consultation fair of you live.". Such as consultation Nikanshimasu you live, Whether please feel free to contact. Saturdays, Sundays, and holidays, Regardless of the weekday The good is convenient for you date and time in advance please feel free to contact! We look forward to the professional staff. "Major sense of security" Century 21 Professional net City toll-free Until 0120-577-827, Whether Please feel free to contact us. 現地案内会(事前に必ずお問い合わせください)日程/公開中時間/9:30 ~ 21:00◆お探しのご条件をお教え下さい◆伺いましたお探しのご条件に該当する物件を精査の上、全てお送り致します。◆住宅ローンや資金計画、不動産に係る税金など◆お客様に合った無理のないご提案、そして適切なアドバイスをさせて頂きます。◆現地のご見学・ご説明◆気になる物件やご条件に該当する物件、また付近の比較できます物件を効率よくスピーディに 全てご案内致します。 未完成新築物件、土地でお探しの場合は施工例にて適切な説明をさせて頂きます。お住まい探し・種々の疑問に関しまして、「お住まいの相談フェアー」を開催しております。お住まいに関しますご相談など、どうかお気軽にご連絡下さい。土日祝日、平日を問わず ご都合の良い日時を事前にお気軽にご連絡下さい!専門のスタッフがお待ちしております。「大手の安心感」センチュリー21 プロネットシティフリーダイヤル 0120-577-827まで、どうかお気軽にお問合せ下さい。 | Price 価格 | | 40,800,000 yen 4080万円 | Floor plan 間取り | | 3LDK 3LDK | Units sold 販売戸数 | | 1 units 1戸 | Total units 総戸数 | | 1 units 1戸 | Land area 土地面積 | | 56.11 sq m 56.11m2 | Building area 建物面積 | | 79.91 sq m 79.91m2 | Driveway burden-road 私道負担・道路 | | Nothing, South 6.4m width 無、南6.4m幅 | Completion date 完成時期(築年月) | | February 2014 2014年2月 | Address 住所 | | Ota-ku, Tokyo Omori 2 東京都大田区大森南2 | Traffic 交通 | | Keikyu Airport Line "torii" walk 15 minutes JR Keihin Tohoku Line "Omori" bus 16 minutes the fourth elementary school walk 4 minutes Keikyu main line "Keikyukamata" bus 16 minutes the fourth elementary school walk 4 minutes 京急空港線「大鳥居」歩15分 JR京浜東北線「大森」バス16分第四小学校歩4分 京急本線「京急蒲田」バス16分第四小学校歩4分
| Related links 関連リンク | | [Related Sites of this company] 【この会社の関連サイト】 | Person in charge 担当者より | | Person in charge of real-estate and building tubule Naoyuki Age: 40 Daigyokai experience: I cage since I was 25 years bubble in this industry. Based on the so far gained experience, I would appreciate to customers is the best advice. Whether Please feel free to contact us. 担当者宅建小管 直之年齢:40代業界経験:25年バブルの頃からこの業界に居りました。今迄培った経験を踏まえて、お客様に最適なアドバイスをさせて頂ければ幸いです。どうかお気軽にお問い合わせ下さい。 | Contact お問い合せ先 | | TEL: 0800-603-3582 [Toll free] mobile phone ・ Also available from PHS Caller ID is not notified Please contact the "saw SUUMO (Sumo)" If it does not lead, If the real estate company TEL:0800-603-3582【通話料無料】携帯電話・PHSからもご利用いただけます 発信者番号は通知されません 「SUUMO(スーモ)を見た」と問い合わせください つながらない方、不動産会社の方は
| Building coverage, floor area ratio 建ぺい率・容積率 | | 60% ・ 200% 60%・200% | Time residents 入居時期 | | February 2014 schedule 2014年2月予定 | Land of the right form 土地の権利形態 | | Ownership 所有権 | Structure and method of construction 構造・工法 | | Wooden three-story 木造3階建 | Construction 施工 | | (Ltd.) Idasangyo (株)飯田産業 | Use district 用途地域 | | Semi-industrial 準工業 | Other limitations その他制限事項 | | Regulations have by the Landscape Act, Height district, Quasi-fire zones 景観法による規制有、高度地区、準防火地域 | Overview and notices その他概要・特記事項 | | Contact: tubule Naoyuki, Facilities: Public Water Supply, This sewage, City gas, Building confirmation number: HPA-13-08333-1 担当者:小管 直之、設備:公営水道、本下水、都市ガス、建築確認番号:HPA-13-08333-1 | Company profile 会社概要 | | <Mediation> Governor of Tokyo (2) No. 083471 (Corporation) All Japan Real Estate Association (Corporation) metropolitan area real estate Fair Trade Council member Century 21 (Ltd.) pro-net City 150-0002 Shibuya, Shibuya-ku, Tokyo 2-12-9 Estee Aoyama Building 7th floor <仲介>東京都知事(2)第083471号(公社)全日本不動産協会会員 (公社)首都圏不動産公正取引協議会加盟センチュリー21(株)プロネットシティ〒150-0002 東京都渋谷区渋谷2-12-9 エスティ青山ビル7階 |
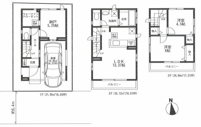
Floor plan間取り図  40,800,000 yen, 3LDK, Land area 56.11 sq m , Building area 79.91 sq m
4080万円、3LDK、土地面積56.11m2、建物面積79.91m2
 Local appearance photo
現地外観写真
Compartment figure区画図  40,800,000 yen, 3LDK, Land area 56.11 sq m , Building area 79.91 sq m
4080万円、3LDK、土地面積56.11m2、建物面積79.91m2
 Local appearance photo
現地外観写真
Same specifications photos (appearance)同仕様写真(外観)  Appearance construction cases
外観施工例
Same specifications photos (living)同仕様写真(リビング)  Living example of construction
リビング施工例
Same specifications photo (kitchen)同仕様写真(キッチン)  Kitchen construction cases
キッチン施工例
Same specifications photo (bathroom)同仕様写真(浴室)  Bathroom construction cases
浴室施工例
Same specifications photos (Other introspection)同仕様写真(その他内観)  Washroom construction cases
洗面所施工例
 Western-style construction cases
洋室施工例
 Entrance construction cases
玄関施工例
 Local photos, including front road
前面道路含む現地写真
 Local photos, including front road
前面道路含む現地写真
Supermarketスーパー  Until Life Omori shop 144m
ライフ大森南店まで144m
Kindergarten ・ Nursery幼稚園・保育園  213m Ota Tatsumori until Saki nursery
大田区立森が崎保育園まで213m
Drug storeドラッグストア  Tsuruha 83m to drag Omori store
ツルハドラッグ大森南店まで83m
Location
|