2013November
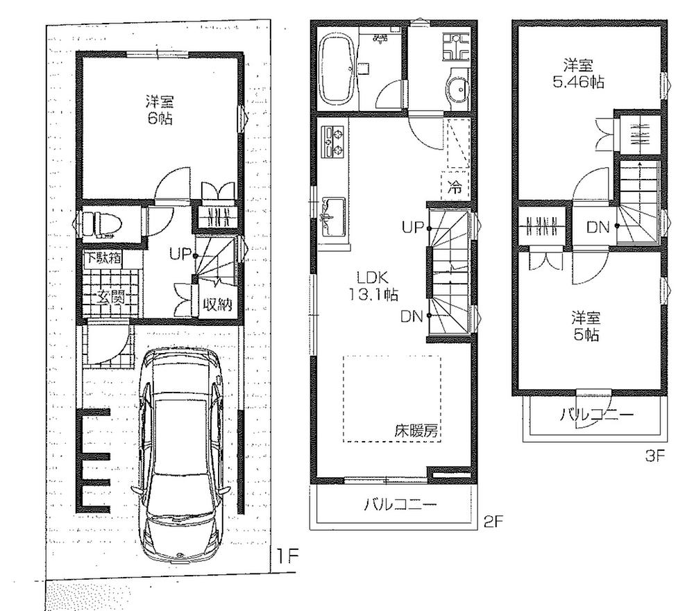
59,800,000 yen, 3LDK, 82.61 sq m
New Homes » Kanto » Tokyo » Shibuya Ward
 
| | Shibuya-ku, Tokyo 東京都渋谷区 |
| Tokyo Metro Chiyoda Line "Yoyogi Park" walk 7 minutes 東京メトロ千代田線「代々木公園」歩7分 |
Features pickup 特徴ピックアップ | | 2 along the line more accessible / Facing south / System kitchen / Siemens south road / Shaping land / Bathroom 1 tsubo or more / All living room flooring / Dish washing dryer / Water filter / Three-story or more / Flat terrain / Floor heating 2沿線以上利用可 /南向き /システムキッチン /南側道路面す /整形地 /浴室1坪以上 /全居室フローリング /食器洗乾燥機 /浄水器 /3階建以上 /平坦地 /床暖房 | Price 価格 | | 59,800,000 yen 5980万円 | Floor plan 間取り | | 3LDK 3LDK | Units sold 販売戸数 | | 1 units 1戸 | Total units 総戸数 | | 1 units 1戸 | Land area 土地面積 | | 50.64 sq m (registration) 50.64m2(登記) | Building area 建物面積 | | 82.61 sq m , Among the first floor garage 7.52 sq m 82.61m2、うち1階車庫7.52m2 | Driveway burden-road 私道負担・道路 | | 8.86 sq m , South 3.5m width 8.86m2、南3.5m幅 | Completion date 完成時期(築年月) | | November 2013 2013年11月 | Address 住所 | | Shibuya-ku, Tokyo Tomigaya 2 東京都渋谷区富ヶ谷2 | Traffic 交通 | | Tokyo Metro Chiyoda Line "Yoyogi Park" walk 7 minutes Odakyu line "Yoyogi-Uehara" walk 10 minutes 東京メトロ千代田線「代々木公園」歩7分 小田急線「代々木上原」歩10分
| Related links 関連リンク | | [Related Sites of this company] 【この会社の関連サイト】 | Contact お問い合せ先 | | (Ltd.) Internet Real Estate TEL: 0800-603-3265 [Toll free] mobile phone ・ Also available from PHS Caller ID is not notified Please contact the "saw SUUMO (Sumo)" If it does not lead, If the real estate company (株)インターネット不動産TEL:0800-603-3265【通話料無料】携帯電話・PHSからもご利用いただけます 発信者番号は通知されません 「SUUMO(スーモ)を見た」と問い合わせください つながらない方、不動産会社の方は
| Building coverage, floor area ratio 建ぺい率・容積率 | | 60% ・ 150% 60%・150% | Time residents 入居時期 | | Consultation 相談 | Land of the right form 土地の権利形態 | | Ownership 所有権 | Structure and method of construction 構造・工法 | | Wooden three-story 木造3階建 | Other limitations その他制限事項 | | Set-back: already セットバック:済 | Overview and notices その他概要・特記事項 | | Facilities: Public Water Supply, This sewage, City gas, Building confirmation number: No. 12, Parking: Garage 設備:公営水道、本下水、都市ガス、建築確認番号:第12号、駐車場:車庫 | Company profile 会社概要 | | <Seller> Governor of Tokyo (2) No. 080754 (Corporation) All Japan Real Estate Association (Corporation) metropolitan area real estate Fair Trade Council member (Ltd.) Internet real estate Yubinbango188-0012 Tokyo Nishitokyo Minamicho 4-1-2 <売主>東京都知事(2)第080754号(公社)全日本不動産協会会員 (公社)首都圏不動産公正取引協議会加盟(株)インターネット不動産〒188-0012 東京都西東京市南町4-1-2 |
 Local appearance photo
現地外観写真
Floor plan間取り図  59,800,000 yen, 3LDK, Land area 50.64 sq m , Building area 82.61 sq m
5980万円、3LDK、土地面積50.64m2、建物面積82.61m2
 Living
リビング
 Bathroom
浴室
 Kitchen
キッチン
 Wash basin, toilet
洗面台・洗面所
Location
|