New Homes » Kanto » Tokyo » Shinagawa
 
| | Shinagawa-ku, Tokyo 東京都品川区 |
| Oimachi Line Tokyu "Shimo Shimmei" walk 4 minutes 東急大井町線「下神明」歩4分 |
| Rinkai "Oi-cho Station (a 13-minute walk).", Toei Asakusa Line "Togoshi Station (a 13-minute walk)," such as 5 station 5 line Available! Housing that feeling well laundry Hoseru in a sunny day is 6.5 Pledge roof balcony of! りんかい線「大井町駅(徒歩13分)」、都営浅草線「戸越駅(徒歩13分)」など5駅5路線利用可!晴れた日は6.5帖のルーフバルコニーで気持よく洗濯物が干せる住まい! |
| Corresponding to the flat-35S, System kitchen, Bathroom Dryer, LDK15 tatami mats or more, Face-to-face kitchen, 3 face lighting, Toilet 2 places, Bathroom 1 tsubo or more, Double-glazing, Otobasu, Warm water washing toilet seat, The window in the bathroom, TV monitor interphone, Three-story or more, All rooms are two-sided lighting, roof balcony, 24-hour ventilation system フラット35Sに対応、システムキッチン、浴室乾燥機、LDK15畳以上、対面式キッチン、3面採光、トイレ2ヶ所、浴室1坪以上、複層ガラス、オートバス、温水洗浄便座、浴室に窓、TVモニタ付インターホン、3階建以上、全室2面採光、ルーフバルコニー、24時間換気システム |
Features pickup 特徴ピックアップ | | Corresponding to the flat-35S / System kitchen / Bathroom Dryer / LDK15 tatami mats or more / Face-to-face kitchen / 3 face lighting / Toilet 2 places / Bathroom 1 tsubo or more / Double-glazing / Otobasu / Warm water washing toilet seat / The window in the bathroom / TV monitor interphone / Three-story or more / All rooms are two-sided lighting / roof balcony フラット35Sに対応 /システムキッチン /浴室乾燥機 /LDK15畳以上 /対面式キッチン /3面採光 /トイレ2ヶ所 /浴室1坪以上 /複層ガラス /オートバス /温水洗浄便座 /浴室に窓 /TVモニタ付インターホン /3階建以上 /全室2面採光 /ルーフバルコニー | Property name 物件名 | | Large 3LDK + 2S residential feeling well laundry in the roof balcony Hoseru. ルーフバルコニーで気持よく洗濯物が干せる大型3LDK+2S住宅。 | Price 価格 | | 65,800,000 yen 6580万円 | Floor plan 間取り | | 3LDK + 2S (storeroom) 3LDK+2S(納戸) | Units sold 販売戸数 | | 1 units 1戸 | Total units 総戸数 | | 1 units 1戸 | Land area 土地面積 | | 77.1 sq m (measured) 77.1m2(実測) | Building area 建物面積 | | 119.05 sq m (measured) 119.05m2(実測) | Driveway burden-road 私道負担・道路 | | Nothing, North 5.2m width 無、北5.2m幅 | Completion date 完成時期(築年月) | | May 2014 2014年5月 | Address 住所 | | Shinagawa-ku, Tokyo Yutaka-cho, 2 東京都品川区豊町2 | Traffic 交通 | | Oimachi Line Tokyu "Shimo Shimmei" walk 4 minutes JR Keihin Tohoku Line "Oimachi" walk 13 minutes JR Yamanote Line "Osaki" walk 13 minutes 東急大井町線「下神明」歩4分 JR京浜東北線「大井町」歩13分 JR山手線「大崎」歩13分
| Related links 関連リンク | | [Related Sites of this company] 【この会社の関連サイト】 | Person in charge 担当者より | | To charge Shataku Kenichi people of our customers will respond in a team Age: 20 Daigyokai experience: For one of the customers in the eight years the Company, Sales staff ・ team leader ・ Contract Division ・ Constitute a team of four people at the lowest loan Division, Each making full use of professional knowledge, In order to do our best to meet the needs of our customers 担当者宅建一人のお客様に対してチームで対応致します年齢:20代業界経験:8年当社では一人のお客様に対し、営業スタッフ・チームリーダー・契約課・ローン課の最低でも4名によるチームを構成し、それぞれプロフェッショナルな知識を駆使し、お客様のご要望にお応えすべく全力を尽くします | Contact お問い合せ先 | | TEL: 0800-603-1505 [Toll free] mobile phone ・ Also available from PHS Caller ID is not notified Please contact the "saw SUUMO (Sumo)" If it does not lead, If the real estate company TEL:0800-603-1505【通話料無料】携帯電話・PHSからもご利用いただけます 発信者番号は通知されません 「SUUMO(スーモ)を見た」と問い合わせください つながらない方、不動産会社の方は
| Building coverage, floor area ratio 建ぺい率・容積率 | | 60% ・ 200% 60%・200% | Time residents 入居時期 | | June 2014 schedule 2014年6月予定 | Land of the right form 土地の権利形態 | | Ownership 所有権 | Structure and method of construction 構造・工法 | | Wooden three-story 木造3階建 | Use district 用途地域 | | One dwelling 1種住居 | Other limitations その他制限事項 | | Height district, Quasi-fire zones 高度地区、準防火地域 | Overview and notices その他概要・特記事項 | | Contact: we will correspond team against one of the customers, Facilities: Public Water Supply, This sewage, City gas, Building confirmation number: No. 13UDI3S Ken 01324, Parking: Garage 担当者:一人のお客様に対してチームで対応致します、設備:公営水道、本下水、都市ガス、建築確認番号:第13UDI3S建01324号、駐車場:車庫 | Company profile 会社概要 | | <Mediation> Minister of Land, Infrastructure and Transport (2) No. 007124 (Corporation) All Japan Real Estate Association (Corporation) metropolitan area real estate Fair Trade Council member (Ltd.) living life Kamata branch Yubinbango144-0051 Ota-ku, Tokyo Nishikamata 8-11-11 <仲介>国土交通大臣(2)第007124号(公社)全日本不動産協会会員 (公社)首都圏不動産公正取引協議会加盟(株)リビングライフ蒲田支店〒144-0051 東京都大田区西蒲田8-11-11 |
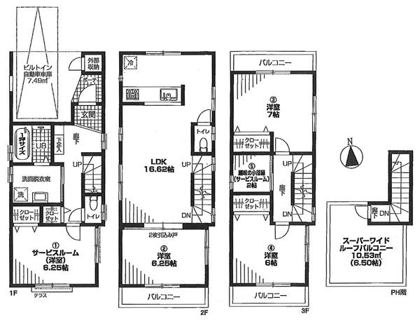
Floor plan間取り図  65,800,000 yen, 3LDK + 2S (storeroom), Land area 77.1 sq m , Building area 119.05 sq m leisurely relax 6 Pledge or more of the living room is the main. Family of communication is momentum in the face-to-face kitchen & living room stairs.
6580万円、3LDK+2S(納戸)、土地面積77.1m2、建物面積119.05m2 ゆったり寛げる6帖以上の居室がメイン。対面式キッチン&リビング階段で家族のコミュニケーションが弾みます。
Primary school小学校  600m to Shinagawa Ward Togoshi Elementary School
品川区立戸越小学校まで600m
Junior high school中学校  700m until Du junior high school of Toyoha
豊葉の杜中学校まで700m
Kindergarten ・ Nursery幼稚園・保育園  Yutaka 400m to nursery school
ゆたか保育園まで400m
Park公園  400m until Togoshi park
戸越公園まで400m
Supermarketスーパー  Super Ozeki Togoshi to the park shop 850m
スーパーオオゼキ戸越公園店まで850m
Location
|