New Homes » Kanto » Tokyo » Shinjuku ward
 
| | Shinjuku-ku, Tokyo 東京都新宿区 |
| Toei Oedo Line "Nakai" walk 9 minutes 都営大江戸線「中井」歩9分 |
| Day in shaping areas of the south slope ・ Ventilation good. Loft with two-story 3LDK + P. Zenshitsuminami orientation plan. Gathered living and water around on the first floor. A quiet residential area of a 9-minute walk from Nakai Station. Flat 35S corresponding. Preview Allowed. 南傾斜の整形地で日当り・通風良好。ロフト付き2階建て3LDK+P。全室南向きプラン。1階にリビングと水周りが集結。中井駅まで徒歩9分の閑静な住宅街。フラット35S対応。内覧可。 |
| Design house performance with evaluation, Corresponding to the flat-35S, Year Available, 2 along the line more accessible, System kitchen, Yang per good, Immediate Available, All room storage, A quiet residential area, Shaping land, Washbasin with shower, Face-to-face kitchen, Toilet 2 places, 2-story, Double-glazing, Zenshitsuminami direction, Warm water washing toilet seat, loft, The window in the bathroom, Atrium, TV monitor interphone, Mu front building, Ventilation good, All living room flooring, Dish washing dryer, Water filter, City gas 設計住宅性能評価付、フラット35Sに対応、年内入居可、2沿線以上利用可、システムキッチン、陽当り良好、即入居可、全居室収納、閑静な住宅地、整形地、シャワー付洗面台、対面式キッチン、トイレ2ヶ所、2階建、複層ガラス、全室南向き、温水洗浄便座、ロフト、浴室に窓、吹抜け、TVモニタ付インターホン、前面棟無、通風良好、全居室フローリング、食器洗乾燥機、浄水器、都市ガス |
Features pickup 特徴ピックアップ | | Design house performance with evaluation / Corresponding to the flat-35S / Year Available / Immediate Available / 2 along the line more accessible / System kitchen / Yang per good / All room storage / A quiet residential area / Shaping land / Washbasin with shower / Face-to-face kitchen / Toilet 2 places / 2-story / Double-glazing / Zenshitsuminami direction / Warm water washing toilet seat / loft / The window in the bathroom / Atrium / TV monitor interphone / Mu front building / Ventilation good / All living room flooring / Dish washing dryer / Water filter / City gas 設計住宅性能評価付 /フラット35Sに対応 /年内入居可 /即入居可 /2沿線以上利用可 /システムキッチン /陽当り良好 /全居室収納 /閑静な住宅地 /整形地 /シャワー付洗面台 /対面式キッチン /トイレ2ヶ所 /2階建 /複層ガラス /全室南向き /温水洗浄便座 /ロフト /浴室に窓 /吹抜け /TVモニタ付インターホン /前面棟無 /通風良好 /全居室フローリング /食器洗乾燥機 /浄水器 /都市ガス | Price 価格 | | 53,800,000 yen 5380万円 | Floor plan 間取り | | 3LDK 3LDK | Units sold 販売戸数 | | 1 units 1戸 | Total units 総戸数 | | 2 units 2戸 | Land area 土地面積 | | 76.05 sq m 76.05m2 | Building area 建物面積 | | 75.5 sq m 75.5m2 | Driveway burden-road 私道負担・道路 | | Road width: west about 3.8m on public roads Setback equity: each building 1.56 sq m × 1 / 2 道路幅:西側約3.8m公道 セットバック持分:各棟1.56m2×1/2 | Completion date 完成時期(築年月) | | August 2013 2013年8月 | Address 住所 | | Shinjuku-ku, Tokyo Nakai 2 東京都新宿区中井2 | Traffic 交通 | | Toei Oedo Line "Nakai" walk 9 minutes Seibu Shinjuku Line "Araiyakushimae" walk 9 minutes Toei Oedo Line "Ochiaiminami Nagasaki" walk 13 minutes 都営大江戸線「中井」歩9分 西武新宿線「新井薬師前」歩9分 都営大江戸線「落合南長崎」歩13分
| Related links 関連リンク | | [Related Sites of this company] 【この会社の関連サイト】 | Person in charge 担当者より | | Person in charge of real-estate and building FP Nakamura Tetsuya Age: 30 Daigyokai experience: You try your suggestions of total house hunting in 10 years smile and compassion. We are looking for your one-of-a-kind house! Real-estate and building chief ・ Grade 2 Financial ・ As a planning professional skills, We've got a wealth of information in earnest! 担当者宅建FP中村 哲也年齢:30代業界経験:10年笑顔と思いやりでトータルな家探しのご提案を心掛けます。お客様のオンリーワンの家お探しいたします!宅建主任者・2級ファイナンシャル・プランニング技能士として、豊富な情報を本気でお伝えします! | Contact お問い合せ先 | | TEL: 0800-603-3141 [Toll free] mobile phone ・ Also available from PHS Caller ID is not notified Please contact the "saw SUUMO (Sumo)" If it does not lead, If the real estate company TEL:0800-603-3141【通話料無料】携帯電話・PHSからもご利用いただけます 発信者番号は通知されません 「SUUMO(スーモ)を見た」と問い合わせください つながらない方、不動産会社の方は
| Building coverage, floor area ratio 建ぺい率・容積率 | | Kenpei rate: 50%, Volume ratio: 100% 建ペい率:50%、容積率:100% | Time residents 入居時期 | | Immediate available 即入居可 | Land of the right form 土地の権利形態 | | Ownership 所有権 | Structure and method of construction 構造・工法 | | Wooden 2-story 木造2階建 | Use district 用途地域 | | One low-rise 1種低層 | Land category 地目 | | Residential land 宅地 | Other limitations その他制限事項 | | Quasi-fire zones 準防火地域 | Overview and notices その他概要・特記事項 | | Contact: Nakamura Tetsuya 担当者:中村 哲也 | Company profile 会社概要 | | <Mediation> Governor of Tokyo (3) No. 079417 (stock) assist home Yubinbango165-0032 Nakano-ku, Tokyo Saginomiya 2-1-3 <仲介>東京都知事(3)第079417号(株)アシストホーム〒165-0032 東京都中野区鷺宮2-1-3 |
Rendering (appearance)完成予想図(外観)  Rendering
完成予想図
Same specifications photos (living)同仕様写真(リビング)  Living example of construction
リビング施工例
Same specifications photo (kitchen)同仕様写真(キッチン)  Kitchen construction cases
キッチン施工例
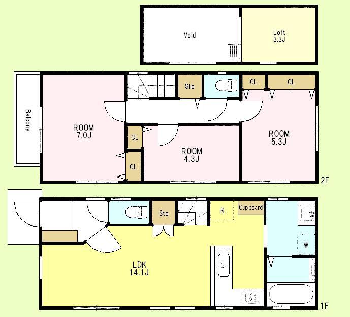
Floor plan間取り図  (B Building), Price 53,800,000 yen, 3LDK, Land area 76.05 sq m , Building area 75.5 sq m
(B号棟)、価格5380万円、3LDK、土地面積76.05m2、建物面積75.5m2
Same specifications photo (bathroom)同仕様写真(浴室)  Bathroom construction cases
浴室施工例
Station駅  720m until Nakai Station
中井駅まで720m
 720m until Araiyakushimae
新井薬師前駅まで720m
Location
|