New Homes » Kanto » Tokyo » Sumida
 
| | Sumida-ku, Tokyo 東京都墨田区 |
| Keisei Oshiage Line "Yahiro" walk 3 minutes 京成押上線「八広」歩3分 |
Features pickup 特徴ピックアップ | | Measures to conserve energy / Corresponding to the flat-35S / Pre-ground survey / Energy-saving water heaters / Facing south / System kitchen / Bathroom Dryer / All room storage / Flat to the station / Siemens south road / Corner lot / Japanese-style room / Mist sauna / Washbasin with shower / 3 face lighting / Toilet 2 places / Bathroom 1 tsubo or more / Double-glazing / Otobasu / Warm water washing toilet seat / Underfloor Storage / The window in the bathroom / Atrium / TV monitor interphone / Built garage / Dish washing dryer / Water filter / Three-story or more / City gas / All rooms are two-sided lighting 省エネルギー対策 /フラット35Sに対応 /地盤調査済 /省エネ給湯器 /南向き /システムキッチン /浴室乾燥機 /全居室収納 /駅まで平坦 /南側道路面す /角地 /和室 /ミストサウナ /シャワー付洗面台 /3面採光 /トイレ2ヶ所 /浴室1坪以上 /複層ガラス /オートバス /温水洗浄便座 /床下収納 /浴室に窓 /吹抜け /TVモニタ付インターホン /ビルトガレージ /食器洗乾燥機 /浄水器 /3階建以上 /都市ガス /全室2面採光 | Event information イベント情報 | | Local tours (please make a reservation beforehand) schedule / Every week you can visit on Saturdays, Sundays, and holidays local. Please contact us in advance. 現地見学会(事前に必ず予約してください)日程/毎週土日祝現地見学できます。事前にお問合せください。 | Property name 物件名 | | Libertad Yahiro II (in the first-come-first-served basis accepted) リベルタ八広II(先着順受付中) | Price 価格 | | 39,900,000 yen ~ 43,900,000 yen 3990万円 ~ 4390万円 | Floor plan 間取り | | 4LDK 4LDK | Units sold 販売戸数 | | 3 units 3戸 | Total units 総戸数 | | 3 units 3戸 | Land area 土地面積 | | 61.02 sq m ~ 64 sq m 61.02m2 ~ 64m2 | Building area 建物面積 | | 106.88 sq m ~ 110.12 sq m 106.88m2 ~ 110.12m2 | Driveway burden-road 私道負担・道路 | | South road 4.0m East side road 3.1m 南側公道4.0m 東側公道3.1m | Completion date 完成時期(築年月) | | January 2014 late schedule 2014年1月下旬予定 | Address 住所 | | Sumida-ku, Tokyo Yahiro 6-37 東京都墨田区八広6-37 | Traffic 交通 | | Keisei Oshiage Line "Yahiro" walk 3 minutes Keisei Oshiage Line "Yotsugi" walk 15 minutes Isesaki Tobu "Higashimukojima" walk 15 minutes 京成押上線「八広」歩3分 京成押上線「四ツ木」歩15分 東武伊勢崎線「東向島」歩15分
| Related links 関連リンク | | [Related Sites of this company] 【この会社の関連サイト】 | Contact お問い合せ先 | | (Ltd.) Hausetto TEL: 0120-406111 [Toll free] Please contact the "saw SUUMO (Sumo)" (株)ハウセットTEL:0120-406111【通話料無料】「SUUMO(スーモ)を見た」と問い合わせください | Building coverage, floor area ratio 建ぺい率・容積率 | | Building coverage: 80%, Volume ratio: 200% 建ぺい率:80%、容積率:200% | Time residents 入居時期 | | 2 months after the contract 契約後2ヶ月 | Land of the right form 土地の権利形態 | | Ownership 所有権 | Structure and method of construction 構造・工法 | | Wooden three-story 2X4 construction method 木造3階建 2X4工法 | Construction 施工 | | Ltd. Hausetto Hausetto primary architect office 株式会社ハウセット ハウセット一級建築士事務所 | Use district 用途地域 | | Semi-industrial 準工業 | Land category 地目 | | Residential land 宅地 | Other limitations その他制限事項 | | Height district, Quasi-fire zones, Shade limit Yes, Corner-cutting Yes 高度地区、準防火地域、日影制限有、隅切り有 | Overview and notices その他概要・特記事項 | | Building confirmation number: JCIA confirmed 13 Nos. 00642, other 建築確認番号:JCIA確認13号00642号、他 | Company profile 会社概要 | | <Seller> Governor of Tokyo (3) No. 081323 (Corporation) Tokyo Metropolitan Government Building Lots and Buildings Transaction Business Association (Corporation) metropolitan area real estate Fair Trade Council member (Ltd.) Hausetto Yubinbango130-0002 Sumida-ku, Tokyo Narihira 4-9-3 push Station Building <売主>東京都知事(3)第081323号(公社)東京都宅地建物取引業協会会員 (公社)首都圏不動産公正取引協議会加盟(株)ハウセット〒130-0002 東京都墨田区業平4-9-3 押上駅前ビルディング |
Rendering (appearance)完成予想図(外観)  (1 Building, 2 Building) Rendering
(1号棟、2号棟)完成予想図
 (1 Building, 3 Building) Rendering
(1号棟、3号棟)完成予想図
Floor plan間取り図  (1 Building), Price 43,900,000 yen, 4LDK, Land area 64 sq m , Building area 106.88 sq m
(1号棟)、価格4390万円、4LDK、土地面積64m2、建物面積106.88m2
Cooling and heating ・ Air conditioning冷暖房・空調設備  In combination with the "radiation" from the floor to "heat conduction", "natural convection", By the synergistic effect, The entire room not only the floor will warm up.
床からの「ふく射」と「熱伝導」「自然対流」を組み合わせ、その相乗効果により、床だけでなく部屋全体が暖まります。
The entire compartment Figure全体区画図  Libertad Yahiro II compartment view
リベルタ八広II 区画図
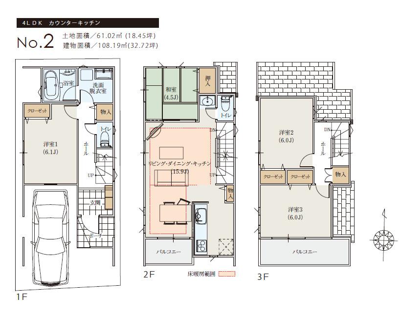
Floor plan間取り図  (Building 2), Price 41,900,000 yen, 4LDK, Land area 61.02 sq m , Building area 108.19 sq m
(2号棟)、価格4190万円、4LDK、土地面積61.02m2、建物面積108.19m2
Other Equipmentその他設備  high temperature ・ Little low temperature of the burden on the body compared to the dry sauna of low humidity ・ We encourage sweating by the mist of the high humidity.
高温・低湿度のドライサウナに比べ身体に負担の少ない低温・高湿度のミストにより発汗を促します。
Floor plan間取り図  (3 Building), Price 39,900,000 yen, 4LDK, Land area 61.02 sq m , Building area 110.12 sq m
(3号棟)、価格3990万円、4LDK、土地面積61.02m2、建物面積110.12m2
Other Equipmentその他設備  Hard to escape the room of heat, Also by reducing the chilly feeling of the window surface, And a comfortable indoor environment.
室内の熱を逃げにくくし、また窓面の冷え冷え感を減らして、快適な室内環境にします。
Security equipment防犯設備  Press the button "hold up" the card only key 2 lock can be manipulated in the style. There is no hassle of locking and unlocking by the key.
ボタンを押してカードを”かざす”だけで2ロックが操作できるキースタイル。鍵によって施解錠のわずらわしさがありません。
 It is also a color monitor phone that can be seen at the clearly clean the face of the visitors at night. With automatic recording function.
夜間でも来客の顔をはっきりキレイに確認できるカラーモニターホンです。自動録画機能付。
Other Equipmentその他設備  Durable, Your easy-care enamel top.
耐久性に優れ、お手入れしやすいホーロートップ。
Location
|