New Homes » Kanto » Tokyo » Sumida
 
| | Sumida-ku, Tokyo 東京都墨田区 |
| Isesaki Tobu "Higashimukojima" walk 5 minutes 東武伊勢崎線「東向島」歩5分 |
| 2 along the line more accessible, LDK18 tatami mats or more, System kitchen, Shaping land, Three-story or more, City gas, Flat terrain, Floor heating 2沿線以上利用可、LDK18畳以上、システムキッチン、整形地、3階建以上、都市ガス、平坦地、床暖房 |
Features pickup 特徴ピックアップ | | 2 along the line more accessible / LDK18 tatami mats or more / System kitchen / Shaping land / Three-story or more / City gas / Flat terrain / Floor heating 2沿線以上利用可 /LDK18畳以上 /システムキッチン /整形地 /3階建以上 /都市ガス /平坦地 /床暖房 | Price 価格 | | 49,800,000 yen 4980万円 | Floor plan 間取り | | 5LDK 5LDK | Units sold 販売戸数 | | 2 units 2戸 | Total units 総戸数 | | 2 units 2戸 | Land area 土地面積 | | 74.49 sq m (measured) 74.49m2(実測) | Building area 建物面積 | | 104.97 sq m ~ 110.58 sq m (registration) 104.97m2 ~ 110.58m2(登記) | Driveway burden-road 私道負担・道路 | | Road width: east 4m (public road) 道路幅:東側4m(公道) | Completion date 完成時期(築年月) | | March 2014 early schedule 2014年3月上旬予定 | Address 住所 | | Sumida-ku, Tokyo Higashimukojima 5-14-8 東京都墨田区東向島5-14-8 | Traffic 交通 | | Isesaki Tobu "Higashimukojima" walk 5 minutes Keisei Oshiage Line "Yahiro" walk 11 minutes Isesaki Tobu "Kanekefuchi" walk 13 minutes 東武伊勢崎線「東向島」歩5分 京成押上線「八広」歩11分 東武伊勢崎線「鐘ヶ淵」歩13分
| Related links 関連リンク | | [Related Sites of this company] 【この会社の関連サイト】 | Contact お問い合せ先 | | TEL: 0800-603-3429 [Toll free] mobile phone ・ Also available from PHS Caller ID is not notified Please contact the "saw SUUMO (Sumo)" If it does not lead, If the real estate company TEL:0800-603-3429【通話料無料】携帯電話・PHSからもご利用いただけます 発信者番号は通知されません 「SUUMO(スーモ)を見た」と問い合わせください つながらない方、不動産会社の方は
| Expenses 諸費用 | | Other expenses: residential land within the facility contribution: 650,000 yen (tax included) その他諸費用:宅地内施設負担金:65万円(税込) | Building coverage, floor area ratio 建ぺい率・容積率 | | Kenpei rate: 80%, Volume ratio: 300% 建ペい率:80%、容積率:300% | Time residents 入居時期 | | March 2014 mid-scheduled 2014年3月中旬予定 | Land of the right form 土地の権利形態 | | Ownership 所有権 | Use district 用途地域 | | Semi-industrial 準工業 | Land category 地目 | | Residential land 宅地 | Overview and notices その他概要・特記事項 | | Building confirmation number: GEA1311-11035 other 建築確認番号:GEA1311-11035他 | Company profile 会社概要 | | <Mediation> Governor of Tokyo (2) No. 082902 (Corporation) All Japan Real Estate Association (Corporation) metropolitan area real estate Fair Trade Council member (Ltd.) Oedo real estate Yubinbango135-0024 Koto-ku, Tokyo fining 3-4-12 <仲介>東京都知事(2)第082902号(公社)全日本不動産協会会員 (公社)首都圏不動産公正取引協議会加盟(株)大江戸不動産〒135-0024 東京都江東区清澄3-4-12 |
Rendering (introspection)完成予想図(内観)  Rendering
完成予想図
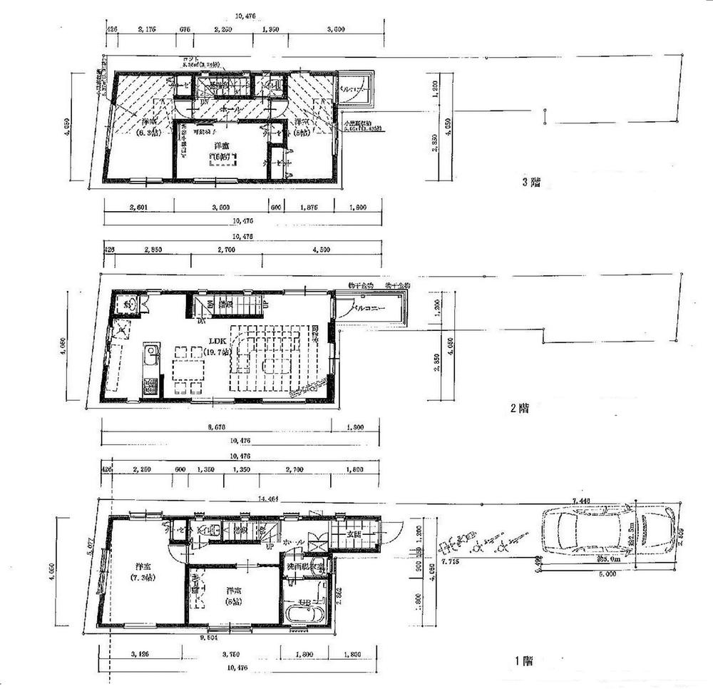
Floor plan間取り図  (B Building), Price 49,800,000 yen, 5LDK, Land area 74.49 sq m , Building area 104.97 sq m
(B棟)、価格4980万円、5LDK、土地面積74.49m2、建物面積104.97m2
 (C Building), Price 49,800,000 yen, 5LDK, Land area 74.49 sq m , Building area 110.58 sq m
(C棟)、価格4980万円、5LDK、土地面積74.49m2、建物面積110.58m2
Location
|