New Homes » Kanto » Tokyo » Toshima ward
 
| | Toshima-ku, Tokyo 東京都豊島区 |
| Seibu Ikebukuro Line "Higashi Nagasaki" walk 10 minutes 西武池袋線「東長崎」歩10分 |
| Seibu Ikebukuro Line "Higashi Nagasaki" station A 10-minute walk 3LDK + loft of Shintei 西武池袋線「東長崎」駅 徒歩10分3LDK+ロフトのある新邸 |
| Yes Flat 35 corresponding housing 〇フラット35対応住宅 |
Features pickup 特徴ピックアップ | | Pre-ground survey / 2 along the line more accessible / Super close / Facing south / Bathroom Dryer / Yang per good / Flat to the station / A quiet residential area / LDK15 tatami mats or more / Around traffic fewer / Face-to-face kitchen / Wide balcony / Bathroom 1 tsubo or more / 2-story / Double-glazing / loft / The window in the bathroom / Leafy residential area / Ventilation good / Living stairs / City gas / All rooms are two-sided lighting / A large gap between the neighboring house / Flat terrain / Attic storage 地盤調査済 /2沿線以上利用可 /スーパーが近い /南向き /浴室乾燥機 /陽当り良好 /駅まで平坦 /閑静な住宅地 /LDK15畳以上 /周辺交通量少なめ /対面式キッチン /ワイドバルコニー /浴室1坪以上 /2階建 /複層ガラス /ロフト /浴室に窓 /緑豊かな住宅地 /通風良好 /リビング階段 /都市ガス /全室2面採光 /隣家との間隔が大きい /平坦地 /屋根裏収納 | Price 価格 | | 48,800,000 yen 4880万円 | Floor plan 間取り | | 3LDK 3LDK | Units sold 販売戸数 | | 1 units 1戸 | Land area 土地面積 | | 81.64 sq m (24.69 tsubo) (Registration) 81.64m2(24.69坪)(登記) | Building area 建物面積 | | 84.65 sq m (25.60 tsubo) (Registration) 84.65m2(25.60坪)(登記) | Driveway burden-road 私道負担・道路 | | Share equity 62.78 sq m × (905 / 6618), East 4m width 共有持分62.78m2×(905/6618)、東4m幅 | Completion date 完成時期(築年月) | | March 2014 2014年3月 | Address 住所 | | Toshima-ku, Tokyo Chihaya 3 東京都豊島区千早3 | Traffic 交通 | | Seibu Ikebukuro Line "Higashi Nagasaki" walk 10 minutes Tokyo Metro Yurakucho Line "Senkawa" walk 12 minutes Seibu Ikebukuro Line "Shiinamachi" walk 16 minutes 西武池袋線「東長崎」歩10分 東京メトロ有楽町線「千川」歩12分 西武池袋線「椎名町」歩16分
| Person in charge 担当者より | | Rep Takami Kurokawa 担当者黒川孝海 | Contact お問い合せ先 | | TEL: 0800-603-3448 [Toll free] mobile phone ・ Also available from PHS Caller ID is not notified Please contact the "saw SUUMO (Sumo)" If it does not lead, If the real estate company TEL:0800-603-3448【通話料無料】携帯電話・PHSからもご利用いただけます 発信者番号は通知されません 「SUUMO(スーモ)を見た」と問い合わせください つながらない方、不動産会社の方は
| Building coverage, floor area ratio 建ぺい率・容積率 | | 60% ・ 150% 60%・150% | Land of the right form 土地の権利形態 | | Ownership 所有権 | Structure and method of construction 構造・工法 | | Wooden 2-story 木造2階建 | Use district 用途地域 | | One low-rise 1種低層 | Overview and notices その他概要・特記事項 | | Contact: Takami Kurokawa, Facilities: Public Water Supply, This sewage, City gas, Building confirmation number: GEA1311-10337, Parking: car space 担当者:黒川孝海、設備:公営水道、本下水、都市ガス、建築確認番号:GEA1311-10337、駐車場:カースペース | Company profile 会社概要 | | <Mediation> Governor of Tokyo (2) No. 082920 (Corporation) Tokyo Metropolitan Government Building Lots and Buildings Transaction Business Association (Corporation) metropolitan area real estate Fair Trade Council member am tick (Ltd.) Kichijoji headquarters sales department Yubinbango180-0002 Musashino-shi, Tokyo Kichijojihigashi cho 1-19-21 <仲介>東京都知事(2)第082920号(公社)東京都宅地建物取引業協会会員 (公社)首都圏不動産公正取引協議会加盟アムティック(株)吉祥寺本社営業部〒180-0002 東京都武蔵野市吉祥寺東町1-19-21 |
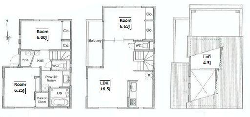
Floor plan間取り図  48,800,000 yen, 3LDK, Land area 81.64 sq m , Building area 84.65 sq m
4880万円、3LDK、土地面積81.64m2、建物面積84.65m2
Kindergarten ・ Nursery幼稚園・保育園  328m to Nagasaki kindergarten
長崎幼稚園まで328m
Primary school小学校  Municipal Shiinamachi to elementary school 740m
区立椎名町小学校まで740m
 1027m to Toshima Ward Sakura Elementary School
豊島区立さくら小学校まで1027m
Hospital病院  1158m to Tokyo Metropolitan Medical Health Association Nerimasogobyoin
東京都医療保健協会 練馬総合病院まで1158m
Post office郵便局  409m to Toshima Nagasaki post office
豊島長崎郵便局まで409m
Location
|