New Homes » Koshinetsu » Yamanashi Prefecture » Minamitsuru-gun


Yamanashi Prefecture Minamitsuru-gun Fujikawaguchiko
Fuji Kyuko "Kawaguchiko" car 5km
□ New construction Finland log house □ 4SLDK □ Shopping mall 800M □ With a wood-burning stove 25 Pledge of living
Municipal Katsuyama Small ・ Up to about junior high school 1.6km ・ Tempest about 1km to elementary school ・ Forest Mall 800m to Fujikawaguchiko ・ National Highway 139 Highway "Katsuyama" 250m to the intersection Newly built log house is located in a good location (Finland log) ・ With a wood-burning stove 25 Pledge of living ・ Deck of the two places in the south-facing ・ To be permanent and rural life.
Features pickup
Parking three or more possible / LDK20 tatami mats or more / It is close to ski resorts / It is close to golf course / Summer resort / Facing south / System kitchen / Flat terrain / terrace / Log house
Price
27 million yen
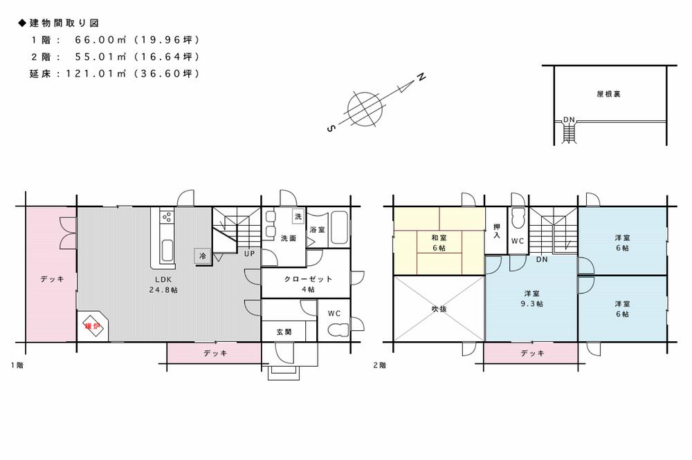
Floor plan
4LDK + S (storeroom)
Units sold
1 units
Land area
266.53 sq m (80.62 tsubo) (Registration)
Building area
121.01 sq m (36.60 tsubo) (Registration)
Driveway burden-road
Nothing, Southeast 9m width (contact the road width 4m)
Completion date
October 2012
Address
Yamanashi Prefecture Minamitsuru-gun Fujikawaguchiko Katsuyama
Traffic
Fuji Kyuko "Kawaguchiko" car 5km
Related links
[Related Sites of this company]
Contact
TEL: 0800-600-6435 [Toll free] mobile phone ・ Also available from PHS
Caller ID is not notified
Please contact the "saw SUUMO (Sumo)"
If it does not lead, If the real estate company
Building coverage, floor area ratio
Fifty percent ・ 200%
Time residents
Immediate available
Land of the right form
Ownership
Structure and method of construction
Log house 2-story (log set method)
Overview and notices
Facilities: Public Water Supply, This sewage, Individual LPG, Parking: car space
Company profile
<Mediation> Yamanashi Governor (3) No. 001970 (the company), Yamanashi Prefecture Building Lots and Buildings Transaction Business Association (Corporation) metropolitan area real estate Fair Trade Council member (with) Agent ・ Em ・ Japan Yubinbango401-0502 Yamanashi Prefecture Minamitsuru-gun Yamanakako-mura Hirano 1981-1


Local appearance photo

Local appearance photo. Building appearance
Building appearance

Floor plan

Floor plan. 27 million yen, 4LDK + S (storeroom), Land area 266.53 sq m , Building area 121.01 sq m building floor plan
27 million yen, 4LDK + S (storeroom), Land area 266.53 sq m , Building area 121.01 sq m building floor plan

Living
Living

Living
Living

Bathroom
Bathroom

Kitchen
Kitchen

Local appearance photo

Local appearance photo. Building appearance
Building appearance

Local appearance photo. Terrace Partial
Terrace Partial

Non-living room

Non-living room. Western style room
Western style room

Cooling and heating ・ Air conditioning

Cooling and heating ・ Air conditioning. Wood-burning stove
Wood-burning stove

Wash basin, toilet

Wash basin, toilet. Vanity room
Vanity room

Non-living room

Non-living room. Grenier
Grenier

Toilet
Toilet



Location